不動産 賃貸 マンション等の住宅情報:埼玉住まい情報


大阪府大阪市中央区島之内1丁目(長堀橋駅)の賃貸:物件詳細

  • 物件詳細
  • 情報の見方
  • 印刷用画面
交通
所在地
駅徒歩 賃料
管理費等
敷金/保証金
礼金
間取り
面積
物件種目
築年月

地下鉄長堀鶴見緑地線/長堀橋 新着

大阪府大阪市中央区島之内1丁目

1分

11.5万円

10,000円

1ヶ月 / なし

なし

1LDK

40.51m²

賃貸マンション

2009年2月(築16年11ヶ月)

おすすめPOINT分譲タイプ、常時ゴミ出し可能、24時間換気システム、閑静な住宅街、外観タイル張り

おすすめコメント  スタッフ: 平岡 恵治

他社様のインターネット掲載物件はどの物件でもまとめてご案内可能です。もちろん割引サービス適用可能です。【当日ご内覧・オンライン案内・クレジット決済】などどんなことでもご相談下さい。

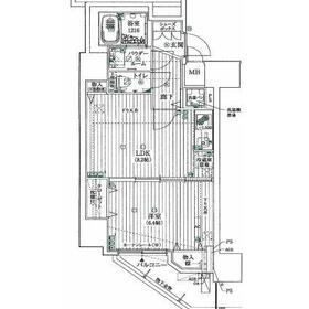
間取図

間取図

アドバンス心斎橋グランガーデン

外観

外観

アドバンス心斎橋グランガーデン

<
その他の画像
  • リビング
  • リビング
  • 室内
  • 室内
  • 室内
  • 室内
  • 収納
  • 収納
  • キッチン
  • キッチン
  • キッチン
  • バス/シャワー
  • バス/シャワー
  • 洗面
  • 洗面
  • 設備
  • トイレ
  • 玄関
  • 玄関
  • 収納
  • 収納
  • バルコニー
  • 眺望
  • その他
  • 設備
  • 共有部分
  • 共有部分
  • 外観
  • 販売店
  • 販売店
  • 販売店
  • ショッピング施設
  • 販売店
  • コンビニ
  • 販売店
  • 公園
>
    • とりあえず保存
    • お問い合わせ
    交通

    地下鉄長堀鶴見緑地線 長堀橋駅 徒歩1分

    その他の交通

    地下鉄千日前線 日本橋駅 徒歩6分

    地下鉄御堂筋線 心斎橋駅 徒歩7分

    所在地 大阪府大阪市中央区島之内1丁目
    物件種目 賃貸マンション
    賃料 11.5万円 管理費等 10,000円
    敷金 / 保証金 1ヶ月 / なし 礼金 なし
    敷引 保証金償却
    その他一時金 鍵交換代:27,500円、ハウスクリーニング:44,000円 保険等 要 2年 18,000円
    維持費等 クレジットカード決済 初期費用可
    間取り 1LDK(LDK8.2、洋6.4) 専有面積 40.51m²
    築年月 2009年2月(築16年11ヶ月) 階建 / 階 15階建 / 5階
    建物構造 RC 総戸数
    主要採光面 駐車場 近有 38,500円/月
    バイク置き場 駐輪場
    建物名・部屋番号 アドバンス心斎橋グランガーデン ペット
    リフォーム履歴
    リノベーション履歴
    備考
    賃貸保証等:加入要(初回保証料:月額総賃料の50%)
    管理形態/管理員の勤務形態:-/巡回
    バルコニー:5m²
    管理人巡回
    共用部には敷地内ごみ置き場・エレベータなど様々な設備やサービスが揃っているので便利です。室内設備はBS・CS・照明付き・システムキッチンなど大変充実しております。リビングダイニングキッチンがあるので楽しい生活ができます。駐車できるスペースも近隣に確保できます。よくお出かけをする方にも便利な、2駅利用可能なマンションです。初期費用はカードで決済いただけます。全居室フローリングなので跡を気にせずに物を置くことができます。このマンションはバルコニー付きで、用途に合わせて利用できます。駐輪場付きのマンションです。
    エネルギー消費性能
    断熱性能
    目安光熱費
    バス・トイレ TV付浴室、ミストサウナ、バス・トイレ別、浴室乾燥機、シャワー付洗面化粧台、洗面所独立、洗面所、洗面台、シャワールーム、シャワー、温水洗浄便座、トイレ
    キッチン システムキッチン、2口コンロ、ガスコンロ可、グリル
    セキュリティー モニター付オートロック、オートロック、モニター付インターホン、ディンプルキー、ダブルロックドア、防犯カメラ
    収納 全居室収納、収納スペース、クローゼット、シューズボックス
    設備・サービス 全居室エアコン、室内洗濯機置場、洗濯機置場、都市ガス給湯、給湯、全居室フローリング、フローリング、都市ガス、エアコン、冷房、人感センサー付照明、照明器具
    TV・通信 インターネット対応、光ファイバー、CATVインターネット、ケーブルTV、CS、BS端子
    その他 宅配BOX、バルコニー、駐輪場、エレベーター
    契約期間 1年 現況 空家
    条件等 入居可能時期 即時
    更新料 物件番号 1191842816
    情報公開日 2025年12月21日 次回更新予定日 2026年1月4日
    ケータイ用バーコード

    QRコード

    スマートフォンでこの物件を見る
    スマートフォンからもこの物件をご覧になれます。
    ※「-」と表示されている項目については、情報提供会社にご確認ください。

    この物件の周辺情報

    周辺施設 大丸心斎橋店
    距離 619m
    周辺施設 近鉄百貨店 上本町店
    距離 2175m
    周辺施設 スーパー玉出 空堀店
    距離 735m
    周辺施設 心斎橋オーパ
    距離 727m
    周辺施設 ドン・キホーテ道頓堀北館
    距離 658m
    周辺施設 ファミリーマート 東心斎橋店
    距離 69m
    周辺施設 スギドラッグ 道頓堀東店
    距離 524m
    周辺施設 高津公園
    距離 1012m

    クイックお問い合わせ

    ここから簡単にお問い合わせをすることができます。
    (SSLでの暗号化での送信を希望されるお客さまは こちら よりお問い合わせください)

    お問い合わせ内容(必須)
    お名前(必須) 姓  名 
    メールアドレス(必須)
    ※携帯電話のメールアドレスをご入力される方はこちらをご確認ください
    電話番号(必須)
    - -

    ※入力いただいた電話番号へSMSまたは音声でパスワードをご連絡します。

    携帯電話の番号をご入力の方へ

    携帯電話の番号をご入力の方へ
    確認画面にて送信ボタンをクリックするとSMSが携帯電話に届きます。
    そのSMSに記載のパスワード(認証番号)を入力し、お問い合わせを完了してください。
    尚、SMSの送信者番号は 0005 202 760 となります。
    これはアットホームの固定番号です。

    備考欄 希望条件、物件案内希望日、質問などがございましたらご記入ください。
    お問い合わせを行う前に「個人情報の取り扱いについて」を必ずお読みください。
    「個人情報の取り扱いについて」に同意いただいた場合は「上記にご同意の上 確認画面へ進む」のボタンをクリックしてください。

    個人情報の取り扱いについて

    皆さまが送付された個人情報はアットホーム(株)のサーバを経由し、お問い合わせ先の不動産会社にメールまたはFAXにて転送されるためアットホーム(株)にも保管されます。アットホーム(株)で保管された個人情報の取り扱いについては、【こちら】をご覧ください。
    また、本画面でご記入いただいた個人情報は、お問い合わせ先の不動産会社でも保管します。 お問い合わせ先の不動産会社が保管する個人情報の取り扱いについては、不動産会社に直接お問い合わせください。

    情報提供会社

    情報提供会社

    (株)エーポジション 中崎町店 エーポジション

    大阪府知事免許(2)第58754号

    交通:
    地下鉄谷町線/中崎町駅 徒歩1分
    大阪府大阪市北区中崎1丁目5-21 
    TEL:
    06-6372-5666
    FAX:
    06-6372-5667
    所属団体:
    (公社)全日本不動産協会会員
    (公社)近畿地区不動産公正取引協議会加盟

    取引態様:仲介

    • 会社情報
    • 50107726
    スマートフォンで
    この不動産会社を見る
    QRコード
    • とりあえず保存
    • お問い合わせ
    • 提携サイト等より掲載されている物件情報につきましては、不動産会社詳細情報にリンクされていないものがあります。
    • 物件に関するお問合せは、物件詳細ページの「情報提供会社」に表示されている不動産会社へ直接お願いいたします。
    • 間取図は、現況を優先させていただきます。
    • 映像は物件の一部を撮影したものです。物件の契約にあたっての最終判断はご自身の判断に基づいて行ってください。
    • 仲介手数料について仲介手数料

    アットホームは物件情報の適正化に努めております。 内容に誤りがある場合にはこちらへご連絡ください。

    【埼玉住まい情報】では、日本全国の物件から賃貸マンションや賃貸アパート・賃貸一戸建て等の賃貸住宅情報、新築マンション・分譲マンションや中古マンション等の売買マンション情報、新築一戸建てや中古一戸建てなどの戸建住宅、 土地など、総合的な不動産住宅情報検索サービスを提供致します。
    【埼玉住まい情報】から、選りすぐりの不動産物件を探してみましょう。

    【免責事項】
    このコーナーの運営はアットホーム株式会社(https://www.athome.co.jp/)が行っています。
    このコーナーに掲載している物件情報は、「アットホーム不動産情報ネットワーク」に加盟する不動産会社等(情報提供元)から提供されています。信頼性の高い情報提供が行えるよう、最大限の努力をしておりますが、その内容を保証するものではありません。 利用者のみなさまと各情報提供元との取引に起因する損害および情報が掲載されたことに起因する損害等については、株式会社イーシティ埼玉、およびアットホームは一切責任を負いません。
    各物件情報の内容や画像等はすべて現況を優先させていただきます。
    お取引等(お取引の準備、資金調達等を含みます)の際には、内容や契約条件等について、各情報提供元より十分な説明を受け、ご自身でご確認の上、判断してください。
    このコーナーへの物件情報のご掲載、その他不動産業務ソリューション等についての不動産会社様のお問合せはこちらからお願いいたします。

    物件画像: