東京都江戸川区中葛西5丁目(葛西駅)の賃貸:物件詳細
交通 所在地 |
駅徒歩 |
賃料 管理費等 |
敷金/保証金 礼金 |
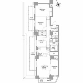
間取り 面積 |
物件種目 築年月 |
|
東京メトロ東西線/葛西
東京都江戸川区中葛西5丁目
|
4分
|
35万円
30,000円
|
1ヶ月 / なし
なし
|
4LDK
91.97m²
|
賃貸マンション
2026年2月
|
ペット相談、分譲タイプ、常時ゴミ出し可能、角部屋、二人入居可、24時間換気システム、IT重説対応物件、保証人不要
|
|
間取図
|
外観
|
<
その他の画像
>
|
| 交通 | 東京メトロ東西線 葛西駅 徒歩4分 |
| 所在地 |
東京都江戸川区中葛西5丁目
|
| 物件種目 |
賃貸マンション |
| 賃料 |
35万円 |
管理費等 |
30,000円 |
| 敷金 / 保証金 |
1ヶ月 / なし |
礼金 |
なし |
| 敷引 |
- |
保証金償却 |
- |
| その他一時金 |
なし |
保険等 |
要 |
| 維持費等 |
- |
クレジットカード決済 |
初期費用可 |
| 間取り |
4LDK(LDK15.7帖 洋室7.3帖 洋室6.0帖 洋室4.1帖…) |
専有面積 |
91.97m² |
| 築年月 |
2026年2月
|
階建 / 階 |
7階建 / 6階 |
| 建物構造 |
RC |
総戸数 |
27戸 |
| 主要採光面 |
南西 |
駐車場 |
無 |
| バイク置き場 |
有 |
駐輪場 |
有 |
| 建物名・部屋番号 |
コンフォリア中葛西 603 |
ペット |
小型犬可・ 猫可 |
| アピールポイント |
ハウスパートナー葛西店では江戸川区全域・東京メトロ東西線・都営新宿線沿線の物件を幅広くご紹介しております。
旭化成ヘーベルメゾン・大和リビング・セキスイハイム等のハウスメーカーの特約代理店でもありますので、数多くのお部屋をご提案が可能です。初期費用や賃料交渉等、気になることは何でもお気軽にお問い合わせください。お客様のご要望を詳しくお伺いして、良いお部屋をご紹介させていただきます。 |
| リフォーム履歴 |
- |
| リノベーション履歴 |
- |
| 備考 |
賃貸保証等:加入要(初回総賃料の50% 毎月1%)
管理形態/管理員の勤務形態:-/-
IT重説対応物件
火災保険:16550円/2年。ペット飼育時敷金1ヶ月積増+退去時に消臭消毒費用16500円(小型犬1匹or猫2匹まで)。退去時清掃費用:室内94490円、エアコン55000円。1年未満の解約は総賃料1ヶ月分の違約金あり。指定引越会社あり。
|
| エネルギー消費性能 |
- |
| 断熱性能 |
- |
| 目安光熱費 |
- |
| バス・トイレ |
バス・トイレ別、浴室乾燥機、追焚機能、洗面所独立、温水洗浄便座 |
| キッチン |
カウンターキッチン、システムキッチン、食器洗浄乾燥機、3口以上コンロ、2口コンロ |
| セキュリティー |
モニター付オートロック、オートロック、モニター付インターホン、ディンプルキー、防犯カメラ |
| 収納 |
全居室収納、ウォークインクローゼット、収納スペース、クローゼット、シューズボックス |
| 設備・サービス |
エアコン2台以上、床暖房、室内洗濯機置場、フローリング、都市ガス、エアコン、照明器具 |
| TV・通信 |
インターネット対応、インターネット使用料無料、CS、BS端子 |
| その他 |
宅配BOX、バイク置き場、ルーフバルコニー、二面バルコニー、バルコニー、駐輪場、エレベーター |
| 契約期間 |
2年 |
現況 |
未完成 |
| 条件等 |
- |
入居可能時期 |
2026年3月上旬予定 |
| 更新料 |
新賃料 1ヶ月 |
物件番号 |
1191935618 |
| 情報公開日 |
2026年1月26日 |
次回更新予定日 |
2026年2月9日 |
| ケータイ用バーコード |
- スマートフォンでこの物件を見る
- スマートフォンからもこの物件をご覧になれます。
|
※「-」と表示されている項目については、情報提供会社にご確認ください。
| 周辺施設 |
セブンイレブン江戸川葛西駅南店 |
| 距離 |
140m |
写真を見る |
| 周辺施設 |
ワイズマート葛西店 |
| 距離 |
190m |
写真を見る |
| 周辺施設 |
江戸川区立第四葛西小学校 |
| 距離 |
590m |
写真を見る |
| 周辺施設 |
葛西昌医会病院 |
| 距離 |
880m |
写真を見る |
| 周辺施設 |
ポピンズナーサリースクール中葛西 |
| 距離 |
140m |
写真を見る |
| 周辺施設 |
葛西駅前交番 |
| 距離 |
310m |
写真を見る |
| 周辺施設 |
宇喜田公園 |
| 距離 |
2010m |
写真を見る |
| 周辺施設 |
サニーモール西葛西 |
| 距離 |
1040m |
写真を見る |
ここから簡単にお問い合わせをすることができます。
(SSLでの暗号化での送信を希望されるお客さまは
こちら
よりお問い合わせください)
お問い合わせを行う前に
「個人情報の取り扱いについて」を必ずお読みください。
「個人情報の取り扱いについて」に同意いただいた場合は「上記にご同意の上 確認画面へ進む」のボタンをクリックしてください。
個人情報の取り扱いについて
皆さまが送付された個人情報はアットホーム(株)のサーバを経由し、お問い合わせ先の不動産会社にメールまたはFAXにて転送されるためアットホーム(株)にも保管されます。アットホーム(株)で保管された個人情報の取り扱いについては、【こちら】をご覧ください。
また、本画面でご記入いただいた個人情報は、お問い合わせ先の不動産会社でも保管します。 お問い合わせ先の不動産会社が保管する個人情報の取り扱いについては、不動産会社に直接お問い合わせください。
国土交通大臣免許(2)第9556号 |
|---|
- 交通:
- 東京メトロ東西線/葛西駅 徒歩1分
- 東京都江戸川区中葛西3丁目35-1 MKT葛西101
- TEL:
- 03-5676-7770
- FAX:
- 03-5676-7888
- 所属団体:
- (公社)全日本不動産協会会員(公社)首都圏不動産公正取引協議会加盟
取引態様:仲介  - 00268956
|
- スマートフォンで
この不動産会社を見る

|
- 提携サイト等より掲載されている物件情報につきましては、不動産会社詳細情報にリンクされていないものがあります。
- 物件に関するお問合せは、物件詳細ページの「情報提供会社」に表示されている不動産会社へ直接お願いいたします。
- 間取図は、現況を優先させていただきます。
- 映像は物件の一部を撮影したものです。物件の契約にあたっての最終判断はご自身の判断に基づいて行ってください。
- 仲介手数料について

アットホームは物件情報の適正化に努めております。
内容に誤りがある場合にはこちらへご連絡ください。