京都府京都市中京区油小路通四条上る藤本町(四条駅)の賃貸:物件詳細
交通 所在地 |
駅徒歩 |
賃料 管理費等 |
敷金/保証金 礼金 |
間取り 面積 |
物件種目 築年月 |
|
地下鉄烏丸線/四条
京都府京都市中京区油小路通四条上る藤本町
|
9分
|
6.7万円
7,000円
|
なし / なし
7.4万円
|
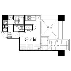
1K
25.75m²
|
賃貸マンション
2004年12月(築20年11ヶ月)
|
分譲タイプ、角部屋、閑静な住宅街
|
|
間取図
|
外観
|
<
その他の画像
>
|
|
|
| 交通 | 地下鉄烏丸線 四条駅 徒歩9分 |
|---|
| その他の交通 | 阪急京都線 大宮駅 徒歩5分 地下鉄烏丸線 烏丸御池駅 徒歩15分 |
| 所在地 |
京都府京都市中京区油小路通四条上る藤本町
|
| 物件種目 |
賃貸マンション |
| 賃料 |
6.7万円 |
管理費等 |
7,000円 |
| 敷金 / 保証金 |
なし / なし |
礼金 |
7.4万円 |
| 敷引 |
- |
保証金償却 |
- |
| その他一時金 |
ハウスクリーニング代(退去時):33,000円、鍵交換代金(退去時):27,500円 |
保険等 |
要 2年 20,000円 |
| 維持費等 |
口座振替手数料:330円/月 |
| 間取り |
1K(洋7×K2.2) |
専有面積 |
25.75m² |
| 築年月 |
2004年12月(築20年11ヶ月)
|
階建 / 階 |
地上11階地下1階建 / 6階 |
| 建物構造 |
RC |
総戸数 |
58戸 |
| 主要採光面 |
西 |
駐車場 |
空無 |
| バイク置き場 |
無 |
駐輪場 |
有 200円/月 |
| 建物名・部屋番号 |
|
ペット |
-
|
| アピールポイント |
設備充実分譲マンション 地下鉄烏丸線、阪急ダブルアクセス!安全性も配慮。地下鉄四条駅まで徒歩9分の分譲賃貸マンションです。京福、阪急、地下鉄のトリプルアクセス。敷金、更新料ナシです。嬉しい3点セパレートに浴室乾燥機、システムキッチン、温水洗浄便座など充実の設備。オートロックでセキュリティも安心です。コンビニ、スーパーなど近くにあって便利ですよ。インターネットは光対応、無料でご利用いただけます。 |
| リフォーム履歴 |
- |
| リノベーション履歴 |
- |
| 備考 |
賃貸保証等:加入要(初回:月額賃料等の50%、更新時:1.5万円/1年)
管理形態/管理員の勤務形態:-/巡回
管理人巡回
|
| エネルギー消費性能 |
- |
| 断熱性能 |
- |
| 目安光熱費 |
- |
| バス・トイレ |
バス・トイレ別、浴室乾燥機、シャワー付洗面化粧台、洗面所独立、シャワー、温水洗浄便座、トイレ |
| キッチン |
システムキッチン、2口コンロ、ガスコンロ付、ガスコンロ可 |
| セキュリティー |
オートロック、モニター付インターホン、防犯カメラ |
| 収納 |
収納スペース |
| 設備・サービス |
室内洗濯機置場、給湯、フローリング、都市ガス、エアコン、衣類乾燥機 |
| TV・通信 |
光ファイバー、ケーブルTV、CS、BS端子 |
| その他 |
宅配BOX、バルコニー、駐輪場、エレベーター |
| 契約期間 |
2年 |
現況 |
居住中 |
| 条件等 |
- |
入居可能時期 |
2025年11月中旬予定 |
| 更新料 |
なし |
物件番号 |
1192250012 |
| 情報公開日 |
2025年10月4日 |
次回更新予定日 |
2025年11月10日 |
| ケータイ用バーコード |
- スマートフォンでこの物件を見る
- スマートフォンからもこの物件をご覧になれます。
|
※「-」と表示されている項目については、情報提供会社にご確認ください。
| 周辺施設 |
京都中央信用金庫堀川支店 |
| 距離 |
132m |
写真を見る |
| 周辺施設 |
セブンイブン京都四条西洞院通り店 |
| 距離 |
136m |
写真を見る |
| 周辺施設 |
京都西洞院綾小路郵便局 |
| 距離 |
235m |
写真を見る |
| 周辺施設 |
京都逓信病院 |
| 距離 |
293m |
写真を見る |
| 周辺施設 |
フレスコ大宮店 |
| 距離 |
489m |
写真を見る |
| 周辺施設 |
東急ハンズ 京都店 |
| 距離 |
620m |
写真を見る |
ここから簡単にお問い合わせをすることができます。
(SSLでの暗号化での送信を希望されるお客さまは
こちら
よりお問い合わせください)
お問い合わせを行う前に
「個人情報の取り扱いについて」を必ずお読みください。
「個人情報の取り扱いについて」に同意いただいた場合は「上記にご同意の上 確認画面へ進む」のボタンをクリックしてください。
個人情報の取り扱いについて
皆さまが送付された個人情報はアットホーム(株)のサーバを経由し、お問い合わせ先の不動産会社にメールまたはFAXにて転送されるためアットホーム(株)にも保管されます。アットホーム(株)で保管された個人情報の取り扱いについては、【こちら】をご覧ください。
また、本画面でご記入いただいた個人情報は、お問い合わせ先の不動産会社でも保管します。 お問い合わせ先の不動産会社が保管する個人情報の取り扱いについては、不動産会社に直接お問い合わせください。
京都府知事免許(11)第6353号 |
|---|
- 交通:
- 地下鉄烏丸線/五条駅
- 京都府京都市下京区烏丸通五条下る大坂町377 Gloire烏丸五条 1階
- TEL:
- 075-354-0050
- 所属団体:
- (公社)京都府宅地建物取引業協会会員(公社)近畿地区不動産公正取引協議会加盟
取引態様:仲介  - 50027555
|
- スマートフォンで
この不動産会社を見る

|
- 提携サイト等より掲載されている物件情報につきましては、不動産会社詳細情報にリンクされていないものがあります。
- 物件に関するお問合せは、物件詳細ページの「情報提供会社」に表示されている不動産会社へ直接お願いいたします。
- 間取図は、現況を優先させていただきます。
- 映像は物件の一部を撮影したものです。物件の契約にあたっての最終判断はご自身の判断に基づいて行ってください。
- 仲介手数料について

アットホームは物件情報の適正化に努めております。
内容に誤りがある場合にはこちらへご連絡ください。