東京都杉並区高円寺北2丁目(高円寺駅)の賃貸:物件詳細
交通 所在地 |
駅徒歩 |
賃料 管理費等 |
敷金/保証金 礼金 |
間取り 面積 |
物件種目 築年月 |
|
JR中央線/高円寺
東京都杉並区高円寺北2丁目
|
7分
|
11.8万円
10,000円
|
1ヶ月 / なし
1ヶ月
|
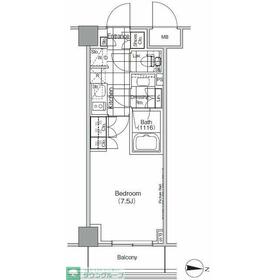
1K
25.01m²
|
賃貸マンション
2015年8月(築10年7ヶ月)
|
ペット相談、楽器相談
|
|
間取図
F2タイプ
|
外観
2015年9月撮影
|
<
その他の画像
>
|
| 交通 | JR中央線 高円寺駅 徒歩7分 |
|---|
| その他の交通 | JR中央線 中野駅 徒歩19分 東京メトロ丸ノ内線 新高円寺駅 徒歩18分 |
| 所在地 |
東京都杉並区高円寺北2丁目
|
| 物件種目 |
賃貸マンション |
| 賃料 |
11.8万円 |
管理費等 |
10,000円 |
| 敷金 / 保証金 |
1ヶ月 / なし |
礼金 |
1ヶ月 |
| 敷引 |
- |
保証金償却 |
- |
| その他一時金 |
入居時鍵交換費用:33,000円、M-REALプレミアム会費2年:19,800円 |
保険等 |
要 2年 32,000円 |
| 維持費等 |
- |
| 間取り |
1K(洋室7.5帖) |
専有面積 |
25.01m² |
| 築年月 |
2015年8月(築10年7ヶ月)
|
階建 / 階 |
5階建 / 2階 |
| 建物構造 |
RC |
総戸数 |
108戸 |
| 主要採光面 |
東 |
駐車場 |
無 |
| バイク置き場 |
- |
駐輪場 |
- |
| 建物名・部屋番号 |
ザ・パークハビオ高円寺 224 |
ペット |
相談 |
| アピールポイント |
他社様で掲載中のお部屋もまとめてご紹介可能です。 |
| リフォーム履歴 |
- |
| リノベーション履歴 |
- |
| 備考 |
賃貸保証等:加入要(当社指定:初期費用は賃料等の50%、月次保証料は賃料等の1%。その他保証会社条件有)
管理形態/管理員の勤務形態:-/日勤
管理人日勤
インターネット上の物件はほぼ全てご紹介可能♪まとめてご紹介致します♪お気軽にお問合せください!お部屋探しはタウンハウジングまで☆新着情報毎日更新☆経験豊富なスタッフがお待ちしております♪
|
| エネルギー消費性能 |
- |
| 断熱性能 |
- |
| 目安光熱費 |
- |
| バス・トイレ |
バス・トイレ別、浴室乾燥機、追焚機能、洗面所独立、温水洗浄便座、トイレ |
| キッチン |
システムキッチン、2口コンロ、ガスコンロ付 |
| セキュリティー |
オートロック、モニター付インターホン、防犯カメラ |
| 収納 |
クローゼット、シューズボックス |
| 設備・サービス |
室内洗濯機置場、フローリング、都市ガス、エアコン |
| TV・通信 |
インターネット対応、インターネット使用料無料、光ファイバー、BS端子 |
| その他 |
宅配BOX、バルコニー、エレベーター |
| 契約期間 |
2年 |
現況 |
居住中 |
| 条件等 |
- |
入居可能時期 |
2026年4月上旬予定 |
| 更新料 |
新賃料 1ヶ月 |
物件番号 |
1193464518 |
| 情報公開日 |
2026年1月29日 |
次回更新予定日 |
2026年2月12日 |
| ケータイ用バーコード |
- スマートフォンでこの物件を見る
- スマートフォンからもこの物件をご覧になれます。
|
※「-」と表示されている項目については、情報提供会社にご確認ください。
| 周辺施設 |
ココカラファイン高円寺店 |
| 距離 |
320m |
写真を見る |
| 周辺施設 |
サンドラッグ高円寺店 |
| 距離 |
410m |
写真を見る |
| 周辺施設 |
高円寺中央通郵便局 |
| 距離 |
690m |
写真を見る |
| 周辺施設 |
セブンイレブン杉並高円寺北2丁目店 |
| 距離 |
210m |
写真を見る |
| 周辺施設 |
まいばすけっと高円寺駅北店 |
| 距離 |
220m |
写真を見る |
| 周辺施設 |
マルエツプチ大和町店 |
| 距離 |
440m |
写真を見る |
ここから簡単にお問い合わせをすることができます。
(SSLでの暗号化での送信を希望されるお客さまは
こちら
よりお問い合わせください)
お問い合わせを行う前に
「個人情報の取り扱いについて」を必ずお読みください。
「個人情報の取り扱いについて」に同意いただいた場合は「上記にご同意の上 確認画面へ進む」のボタンをクリックしてください。
個人情報の取り扱いについて
皆さまが送付された個人情報はアットホーム(株)のサーバを経由し、お問い合わせ先の不動産会社にメールまたはFAXにて転送されるためアットホーム(株)にも保管されます。アットホーム(株)で保管された個人情報の取り扱いについては、【こちら】をご覧ください。
また、本画面でご記入いただいた個人情報は、お問い合わせ先の不動産会社でも保管します。 お問い合わせ先の不動産会社が保管する個人情報の取り扱いについては、不動産会社に直接お問い合わせください。
国土交通大臣免許(1)第9926号 |
|---|
- 交通:
- JR中央線/三鷹駅 徒歩2分
- 東京都武蔵野市西久保1丁目1-1 井野ビル1F
- TEL:
- 0422-53-9070
- FAX:
- 0422-53-9071
取引態様:仲介  - 00264457
|
- スマートフォンで
この不動産会社を見る

|
- 提携サイト等より掲載されている物件情報につきましては、不動産会社詳細情報にリンクされていないものがあります。
- 物件に関するお問合せは、物件詳細ページの「情報提供会社」に表示されている不動産会社へ直接お願いいたします。
- 間取図は、現況を優先させていただきます。
- 映像は物件の一部を撮影したものです。物件の契約にあたっての最終判断はご自身の判断に基づいて行ってください。
- 仲介手数料について

アットホームは物件情報の適正化に努めております。
内容に誤りがある場合にはこちらへご連絡ください。