東京都北区神谷3丁目(王子神谷駅)の賃貸:物件詳細
交通 所在地 |
駅徒歩 |
賃料 管理費等 |
敷金/保証金 礼金 |
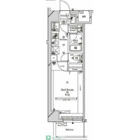
間取り 面積 |
物件種目 築年月 |
|
東京メトロ南北線/王子神谷
東京都北区神谷3丁目
|
9分
|
9.5万円
15,000円
|
なし / なし
9.5万円
|
1K
25.65m²
|
賃貸マンション
2015年11月(築10年4ヶ月)
|
ペット相談、分譲タイプ、角部屋、24時間換気システム
|
|
間取図
|
外観
|
<
その他の画像
>
|
| 交通 | 東京メトロ南北線 王子神谷駅 徒歩9分 |
|---|
| その他の交通 | JR京浜東北線 東十条駅 徒歩16分 JR埼京線 赤羽駅 徒歩22分 |
| 所在地 |
東京都北区神谷3丁目
|
| 物件種目 |
賃貸マンション |
| 賃料 |
9.5万円 |
管理費等 |
15,000円 |
| 敷金 / 保証金 |
なし / なし |
礼金 |
9.5万円 |
| 敷引 |
- |
保証金償却 |
- |
| その他一時金 |
契約事務手数料:11,000円、室内抗菌処理代:17,600円、入居中サポート:21,450円、鍵交換代等:22,000円~ |
保険等 |
要 2年 23,000円 |
| 維持費等 |
- |
| 間取り |
1K |
専有面積 |
25.65m² |
| 築年月 |
2015年11月(築10年4ヶ月)
|
階建 / 階 |
9階建 / 6階 |
| 建物構造 |
RC |
総戸数 |
- |
| 主要採光面 |
北 |
駐車場 |
- |
| バイク置き場 |
- |
駐輪場 |
有 |
| 建物名・部屋番号 |
606 |
ペット |
相談 |
| アピールポイント |
初期費用一部クレジット決済可/オンライン相談・内見可/IT重説対応 |
| リフォーム履歴 |
- |
| リノベーション履歴 |
- |
| 備考 |
賃貸保証等:加入要(賃貸保証料:0.50ヶ月)
管理形態/管理員の勤務形態:-/-
【赤羽店周辺のお部屋探しはタウンハウジング赤羽店にお任せください】
信用と実績の創業45周年!
赤羽駅北改札東口徒歩3分のLalaガーデン商店街沿いにございます。
赤羽駅を中心に1都3県140店舗100,000件以上の情報量とお客様のニーズにお応えするお部屋探しはタウンハウジング赤羽店へ!!
|
| エネルギー消費性能 |
- |
| 断熱性能 |
- |
| 目安光熱費 |
- |
| バス・トイレ |
バス・トイレ別、洗面台、温水洗浄便座、トイレ |
| キッチン |
システムキッチン、2口コンロ |
| セキュリティー |
モニター付オートロック、オートロック、モニター付インターホン |
| 収納 |
シューズボックス |
| 設備・サービス |
室内洗濯機置場、都市ガス給湯、フローリング、都市ガス、エアコン |
| TV・通信 |
インターネット対応、ケーブルTV、CS、BS端子 |
| その他 |
宅配BOX、バルコニー、駐輪場、エレベーター |
| 契約期間 |
2年 |
現況 |
空家 |
| 条件等 |
- |
入居可能時期 |
2026年2月上旬予定 |
| 仲介手数料 |
1.1ヶ月 |
|
|
| 更新料 |
142,500円 |
物件番号 |
1193866718 |
| 情報公開日 |
2026年1月30日 |
次回更新予定日 |
2026年2月13日 |
| ケータイ用バーコード |
- スマートフォンでこの物件を見る
- スマートフォンからもこの物件をご覧になれます。
|
※「-」と表示されている項目については、情報提供会社にご確認ください。
| 周辺施設 |
コモディイイダ東十条店 |
| 距離 |
682m |
写真を見る |
| 周辺施設 |
サンドラッグ東十条店 |
| 距離 |
655m |
写真を見る |
| 周辺施設 |
ニトリ赤羽店 |
| 距離 |
209m |
写真を見る |
| 周辺施設 |
TSUTAYA東十条店 |
| 距離 |
924m |
写真を見る |
| 周辺施設 |
ローソン足立新田1丁目店 |
| 距離 |
639m |
写真を見る |
| 周辺施設 |
ファミリーマート東京成徳学園前店 |
| 距離 |
756m |
写真を見る |
ここから簡単にお問い合わせをすることができます。
(SSLでの暗号化での送信を希望されるお客さまは
こちら
よりお問い合わせください)
お問い合わせを行う前に
「個人情報の取り扱いについて」を必ずお読みください。
「個人情報の取り扱いについて」に同意いただいた場合は「上記にご同意の上 確認画面へ進む」のボタンをクリックしてください。
個人情報の取り扱いについて
皆さまが送付された個人情報はアットホーム(株)のサーバを経由し、お問い合わせ先の不動産会社にメールまたはFAXにて転送されるためアットホーム(株)にも保管されます。アットホーム(株)で保管された個人情報の取り扱いについては、【こちら】をご覧ください。
また、本画面でご記入いただいた個人情報は、お問い合わせ先の不動産会社でも保管します。 お問い合わせ先の不動産会社が保管する個人情報の取り扱いについては、不動産会社に直接お問い合わせください。
国土交通大臣免許(1)第9926号 |
|---|
- 交通:
- JR京浜東北線/赤羽駅 徒歩3分
- 東京都北区赤羽2丁目1-19 青柳エンパイヤビル1階
- TEL:
- 03-3903-4433
- FAX:
- 03-3903-4440
取引態様:仲介  - 00313155
|
- スマートフォンで
この不動産会社を見る

|
- 提携サイト等より掲載されている物件情報につきましては、不動産会社詳細情報にリンクされていないものがあります。
- 物件に関するお問合せは、物件詳細ページの「情報提供会社」に表示されている不動産会社へ直接お願いいたします。
- 間取図は、現況を優先させていただきます。
- 映像は物件の一部を撮影したものです。物件の契約にあたっての最終判断はご自身の判断に基づいて行ってください。
- 仲介手数料について

アットホームは物件情報の適正化に努めております。
内容に誤りがある場合にはこちらへご連絡ください。