東京都墨田区八広1丁目(京成曳舟駅)の賃貸:物件詳細
交通 所在地 |
駅徒歩 |
賃料 管理費等 |
敷金/保証金 礼金 |
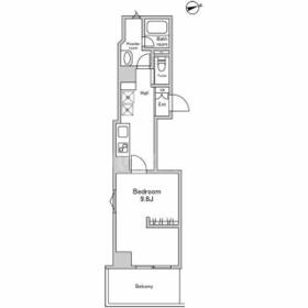
間取り 面積 |
物件種目 築年月 |
|
京成押上線/京成曳舟
東京都墨田区八広1丁目
|
7分
|
12.5万円
10,000円
|
1ヶ月 / なし
なし
|
1DK
30.40m²
|
賃貸マンション
2025年9月
|
デザイナーズ、角部屋、IT重説対応物件、保証人不要
|
|
間取図
|
外観
|
<
その他の画像
>
|
| 交通 | 京成押上線 京成曳舟駅 徒歩7分 |
|---|
| その他の交通 | 京成押上線 八広駅 徒歩11分 東武伊勢崎線 曳舟駅 徒歩14分 |
| 所在地 |
東京都墨田区八広1丁目
|
| 物件種目 |
賃貸マンション |
| 賃料 |
12.5万円 |
管理費等 |
10,000円 |
| 敷金 / 保証金 |
1ヶ月 / なし |
礼金 |
なし |
| 敷引 |
- |
保証金償却 |
- |
| その他一時金 |
なし |
保険等 |
要 2年 20,000円 |
| 維持費等 |
- |
クレジットカード決済 |
初期費用可 |
| 間取り |
1DK |
専有面積 |
30.40m² |
| 築年月 |
2025年9月
|
階建 / 階 |
8階建 / 2階 |
| 建物構造 |
RC |
総戸数 |
15戸 |
| 主要採光面 |
東 |
駐車場 |
- |
| バイク置き場 |
有 |
駐輪場 |
有 |
| 建物名・部屋番号 |
ALIKA曳舟II 201 |
ペット |
-
|
| アピールポイント |
この度は物件詳細をご覧いただきまして誠にありがとうございます。ハウスパートナー青戸店では、京成線の青砥駅を中心に葛飾区・足立区・墨田区・江戸川区の物件を幅広くご紹介しております。また、当社は旭化成のヘーベルメゾンの代理店でもございます。また積水ハウス・パナソニックホームズ・大東建託・大和ハウス・セキスイハイム・等ハウスメーカーの特約代理店でもありますので、数多くのお部屋をご提供できます。単身の方や、新婚さんにカップルさん、ファミリーさんなど幅広くご紹介させていただいております。また賃料交渉や、初期費用などもお気軽にご相談下さい。 |
| リフォーム履歴 |
- |
| リノベーション履歴 |
- |
| 備考 |
賃貸保証等:加入要(必須 初回保証委託料総賃料の50% 1年毎に1万円の更新保証料有 毎月550円の決済手数料有)
管理形態/管理員の勤務形態:-/-
IT重説対応物件
火災保険20000円。
|
| エネルギー消費性能 |
- |
| 断熱性能 |
- |
| 目安光熱費 |
- |
| バス・トイレ |
バス・トイレ別、洗面所独立、温水洗浄便座 |
| キッチン |
システムキッチン、2口コンロ、ガスコンロ付 |
| セキュリティー |
モニター付オートロック、オートロック、モニター付インターホン、防犯カメラ |
| 収納 |
収納スペース、シューズボックス |
| 設備・サービス |
室内洗濯機置場、フローリング、都市ガス、エアコン |
| TV・通信 |
インターネット対応、インターネット使用料無料 |
| その他 |
宅配BOX、バイク置き場、バルコニー、駐輪場、エレベーター |
| 契約期間 |
2年 |
現況 |
空家 |
| 条件等 |
- |
入居可能時期 |
即時 |
| 更新料 |
新賃料 1ヶ月 |
物件番号 |
1195573218 |
| 情報公開日 |
2026年2月2日 |
次回更新予定日 |
2026年2月16日 |
| ケータイ用バーコード |
- スマートフォンでこの物件を見る
- スマートフォンからもこの物件をご覧になれます。
|
※「-」と表示されている項目については、情報提供会社にご確認ください。
| 周辺施設 |
ビック・エー墨田八広一丁目店 |
| 距離 |
70m |
写真を見る |
| 周辺施設 |
セブンイレブン墨田八広5丁目店 |
| 距離 |
310m |
写真を見る |
| 周辺施設 |
サンジェルマン曳舟店 |
| 距離 |
990m |
写真を見る |
| 周辺施設 |
八広4丁目交番 |
| 距離 |
200m |
写真を見る |
| 周辺施設 |
サイゼリヤ東向島駅前店 |
| 距離 |
880m |
写真を見る |
| 周辺施設 |
くすりの福太郎/東向島店 |
| 距離 |
950m |
写真を見る |
| 周辺施設 |
ニトリ 押上駅前店 |
| 距離 |
1740m |
写真を見る |
ここから簡単にお問い合わせをすることができます。
(SSLでの暗号化での送信を希望されるお客さまは
こちら
よりお問い合わせください)
お問い合わせを行う前に
「個人情報の取り扱いについて」を必ずお読みください。
「個人情報の取り扱いについて」に同意いただいた場合は「上記にご同意の上 確認画面へ進む」のボタンをクリックしてください。
個人情報の取り扱いについて
皆さまが送付された個人情報はアットホーム(株)のサーバを経由し、お問い合わせ先の不動産会社にメールまたはFAXにて転送されるためアットホーム(株)にも保管されます。アットホーム(株)で保管された個人情報の取り扱いについては、【こちら】をご覧ください。
また、本画面でご記入いただいた個人情報は、お問い合わせ先の不動産会社でも保管します。 お問い合わせ先の不動産会社が保管する個人情報の取り扱いについては、不動産会社に直接お問い合わせください。
国土交通大臣免許(2)第9556号 |
|---|
- 交通:
- 京成押上線/青砥駅 徒歩1分
- 東京都葛飾区青戸3丁目32-20 伊勢元ビル 1階
- TEL:
- 03-5629-4300
- 所属団体:
- (公社)全日本不動産協会会員(公社)首都圏不動産公正取引協議会加盟
取引態様:仲介  - 00274571
|
- スマートフォンで
この不動産会社を見る

|
- 提携サイト等より掲載されている物件情報につきましては、不動産会社詳細情報にリンクされていないものがあります。
- 物件に関するお問合せは、物件詳細ページの「情報提供会社」に表示されている不動産会社へ直接お願いいたします。
- 間取図は、現況を優先させていただきます。
- 映像は物件の一部を撮影したものです。物件の契約にあたっての最終判断はご自身の判断に基づいて行ってください。
- 仲介手数料について

アットホームは物件情報の適正化に努めております。
内容に誤りがある場合にはこちらへご連絡ください。