東京都目黒区祐天寺2丁目(祐天寺駅)の賃貸:物件詳細
交通 所在地 |
駅徒歩 |
賃料 管理費等 |
敷金/保証金 礼金 |
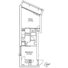
間取り 面積 |
物件種目 築年月 |
|
東急東横線/祐天寺
東京都目黒区祐天寺2丁目
|
1分
|
16.5万円
8,000円
|
1ヶ月 / なし
なし
|
1SK
33.12m²
|
賃貸マンション
2006年3月(築20年1ヶ月)
|
デザイナーズ、常時ゴミ出し可能、角部屋、二人入居可、24時間セキュリティー、2面採光、IT重説対応物件、保証人不要
|
|
間取図
|
外観
外観
|
<
その他の画像
>
|
| 交通 | 東急東横線 祐天寺駅 徒歩1分 |
|---|
| その他の交通 | 東急東横線 中目黒駅 徒歩13分 東京メトロ日比谷線 中目黒駅 徒歩13分 |
| 所在地 |
東京都目黒区祐天寺2丁目
|
| 物件種目 |
賃貸マンション |
| 賃料 |
16.5万円 |
管理費等 |
8,000円 |
| 敷金 / 保証金 |
1ヶ月 / なし |
礼金 |
なし |
| 敷引 |
- |
保証金償却 |
- |
| その他一時金 |
なし、鍵交換代等:27,500円~ |
保険等 |
要 2年 18,000円 |
| 維持費等 |
- |
クレジットカード決済 |
初期費用可 |
| 間取り |
1SK(洋室6.9・S5.4・K2.8) |
専有面積 |
33.12m² |
| 築年月 |
2006年3月(築20年1ヶ月)
|
階建 / 階 |
7階建 / 4階 |
| 建物構造 |
RC |
総戸数 |
27戸 |
| 主要採光面 |
西 |
駐車場 |
無 |
| バイク置き場 |
無 |
駐輪場 |
無 |
| 建物名・部屋番号 |
カスタリア祐天寺 401 |
ペット |
-
|
| アピールポイント |
★当社貸主のため仲介手数料無料★
デザイナーズマンションやグッドデザイン賞受賞物件、
ブランドレジデンスの賃貸を多数ご紹介しております。
当社ホームページ「モリモトレント」もぜひご覧ください。
■オンライン内見、IT重要事項説明にも対応可能。
■初期費用のクレジットカード決済もご相談いただけます。
皆さまからのお問い合わせを、心よりお待ちしております。 |
| リフォーム履歴 |
- |
| リノベーション履歴 |
- |
| 備考 |
賃貸保証等:加入要(初回契約時:50%、月額:1%)
管理形態/管理員の勤務形態:-/-
IT重説対応物件、外壁コンクリート
退去時室内清掃費:居室専有面積30平米未満は一律33,000円(税込)・30平米以上は1平米あたり1,100円(税込)、エアコン清掃費:壁掛け・床置き式1台あたり11,000円(税込)・天井カセット型エアコン1台あたり27,500円(税込)
■デザイナーズ■401号室Aタイプ 1K+マルチルーム■浴室暖房乾燥機■インターネット無料(要登録):フレッツ光ネクスト ギガマンション・スマートタイプ(0120-116-116)※設定状況によりNTTの配線工事が必要になる場合がございます。■宅配ボックス※利用任意・要別途申込 ■床暖房無(床暖房撤去、床暖房操作パネルは開閉できなくなります。)
|
| エネルギー消費性能 |
- |
| 断熱性能 |
- |
| 目安光熱費 |
- |
| バス・トイレ |
バス・トイレ別、浴室乾燥機、追焚機能、洗面所独立、洗面所、洗面台、温水洗浄便座、タンクレストイレ、トイレ |
| キッチン |
システムキッチン、2口コンロ |
| セキュリティー |
オートロック、モニター付インターホン、ディンプルキー、防犯カメラ |
| 収納 |
収納スペース、クローゼット、シューズボックス |
| 設備・サービス |
室内洗濯機置場、洗濯機置場、給湯、都市ガス、エアコン |
| TV・通信 |
インターネット使用料無料、CS、BS端子 |
| その他 |
宅配BOX、バルコニー、エレベーター |
| 契約期間 |
2年 |
現況 |
空家 |
| 条件等 |
- |
入居可能時期 |
即時 |
| 更新料 |
新賃料 1ヶ月 |
物件番号 |
1196300814 |
| 情報公開日 |
2026年3月23日 |
次回更新予定日 |
2026年4月6日 |
| ケータイ用バーコード |
- スマートフォンでこの物件を見る
- スマートフォンからもこの物件をご覧になれます。
|
※「-」と表示されている項目については、情報提供会社にご確認ください。
| 周辺施設 |
セブンイレブン目黒祐天寺店 |
| 距離 |
16m |
写真を見る |
| 周辺施設 |
ローソン祐天寺駅前店 |
| 距離 |
55m |
写真を見る |
| 周辺施設 |
東急ストア祐天寺店 |
| 距離 |
19m |
写真を見る |
| 周辺施設 |
まいばすけっと祐天寺駅前店 |
| 距離 |
31m |
写真を見る |
| 周辺施設 |
ココカラファイン祐天寺駅前店 |
| 距離 |
16m |
写真を見る |
| 周辺施設 |
トモズエトモ祐天寺店 |
| 距離 |
61m |
写真を見る |
| 周辺施設 |
スターバックスコーヒーエトモ祐天寺店 |
| 距離 |
61m |
写真を見る |
| 周辺施設 |
ドトールコーヒーショップ祐天寺店 |
| 距離 |
150m |
写真を見る |
ここから簡単にお問い合わせをすることができます。
(SSLでの暗号化での送信を希望されるお客さまは
こちら
よりお問い合わせください)
お問い合わせを行う前に
「個人情報の取り扱いについて」を必ずお読みください。
「個人情報の取り扱いについて」に同意いただいた場合は「上記にご同意の上 確認画面へ進む」のボタンをクリックしてください。
個人情報の取り扱いについて
皆さまが送付された個人情報はアットホーム(株)のサーバを経由し、お問い合わせ先の不動産会社にメールまたはFAXにて転送されるためアットホーム(株)にも保管されます。アットホーム(株)で保管された個人情報の取り扱いについては、【こちら】をご覧ください。
また、本画面でご記入いただいた個人情報は、お問い合わせ先の不動産会社でも保管します。 お問い合わせ先の不動産会社が保管する個人情報の取り扱いについては、不動産会社に直接お問い合わせください。
東京都知事免許(9)第55984号 |
|---|
- 交通:
- 東急東横線/代官山駅 徒歩3分
- 東京都渋谷区恵比寿南3丁目7-4
- TEL:
- 03-5724-1395
- FAX:
- 03-5724-1369
- 所属団体:
- (一社)マンション管理業協会会員(一社)全国住宅産業協会会員
取引態様:貸主  - 00101102
|
- スマートフォンで
この不動産会社を見る

|
- 提携サイト等より掲載されている物件情報につきましては、不動産会社詳細情報にリンクされていないものがあります。
- 物件に関するお問合せは、物件詳細ページの「情報提供会社」に表示されている不動産会社へ直接お願いいたします。
- 間取図は、現況を優先させていただきます。
- 映像は物件の一部を撮影したものです。物件の契約にあたっての最終判断はご自身の判断に基づいて行ってください。
- 仲介手数料について

アットホームは物件情報の適正化に努めております。
内容に誤りがある場合にはこちらへご連絡ください。