東京都品川区東大井3丁目(立会川駅)の賃貸:物件詳細
交通 所在地 |
駅徒歩 |
賃料 管理費等 |
敷金/保証金 礼金 |
間取り 面積 |
物件種目 築年月 |
|
京急本線/立会川
東京都品川区東大井3丁目
|
2分
|
8.4万円
なし
|
なし / なし
なし
|
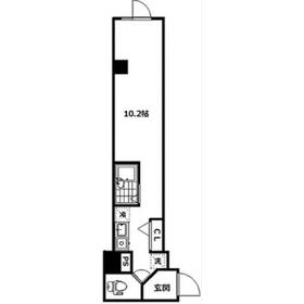
ワンルーム
19.42m²
|
賃貸マンション
2009年3月(築17年)
|
デザイナーズ、分譲タイプ、常時ゴミ出し可能、最上階、24時間セキュリティー、24時間換気システム、閑静な住宅街、外観タイル張り、保証人不要
|
|
間取図
|
外観
|
<
その他の画像
>
|
| 交通 | 京急本線 立会川駅 徒歩2分 |
|---|
| その他の交通 | 京急本線 鮫洲駅 徒歩13分 東京モノレール 大井競馬場前駅 徒歩17分 |
| 所在地 |
東京都品川区東大井3丁目
|
| 物件種目 |
賃貸マンション |
| 賃料 |
8.4万円 |
管理費等 |
なし |
| 敷金 / 保証金 |
なし / なし |
礼金 |
なし |
| 敷引 |
- |
保証金償却 |
- |
| その他一時金 |
24時間サポート料:16,500円、ハウスクリーニング:55,000円 |
保険等 |
要 2年 20,000円 |
| 維持費等 |
- |
| 間取り |
ワンルーム(洋室10.2) |
専有面積 |
19.42m² |
| 築年月 |
2009年3月(築17年)
|
階建 / 階 |
地上3階地下1階建 / 3階 |
| 建物構造 |
RC |
総戸数 |
- |
| 主要採光面 |
南東 |
駐車場 |
近有 30,000円/月 |
| バイク置き場 |
無 |
駐輪場 |
有 |
| 建物名・部屋番号 |
アイディ品川Ⅲ |
ペット |
-
|
| リフォーム履歴 |
- |
| リノベーション履歴 |
- |
| 備考 |
管理形態/管理員の勤務形態:-/巡回
管理人巡回
★すぐに空室情報をお調べいたしますので、電話かメールでお気軽にご連絡ください★___★お部屋の写真・お図面の送付・入居時期のご相談・ご契約金のクレジットカード払い、分割払いも、お客様のご要望を喜んでお受けいたします★___★なんでもお気軽にご相談ください!保証人様不要プランもございます解約違約金1年未満は1か月分有!!
|
| エネルギー消費性能 |
- |
| 断熱性能 |
- |
| 目安光熱費 |
- |
| バス・トイレ |
バス・トイレ別、浴室乾燥機、オートバス、シャワー、温水洗浄便座、トイレ |
| キッチン |
ガスコンロ付 |
| セキュリティー |
モニター付オートロック、オートロック、モニター付インターホン、ディンプルキー、防犯カメラ、火災警報器(報知機) |
| 収納 |
全居室収納、収納スペース、クローゼット |
| 設備・サービス |
室内洗濯機置場、洗濯機置場、給湯、全居室フローリング、フローリング、都市ガス、エアコン、人感センサー付照明、照明器具 |
| TV・通信 |
インターネット使用料無料、光ファイバー、CATVインターネット、ケーブルTV、CS、BS端子 |
| その他 |
宅配BOX、駐輪場、エレベーター |
| 契約期間 |
2年 |
現況 |
空家 |
| 条件等 |
- |
入居可能時期 |
即時 |
| 更新料 |
新賃料 1.25ヶ月 |
物件番号 |
1197075814 |
| 情報公開日 |
2026年1月17日 |
次回更新予定日 |
2026年2月15日 |
| ケータイ用バーコード |
- スマートフォンでこの物件を見る
- スマートフォンからもこの物件をご覧になれます。
|
※「-」と表示されている項目については、情報提供会社にご確認ください。
| 周辺施設 |
まいばすけっと立会川駅西店 |
| 距離 |
183m |
写真を見る |
| 周辺施設 |
スターバックス 阪急大井町ガーデン店 |
| 距離 |
987m |
写真を見る |
| 周辺施設 |
松屋 大井町店 |
| 距離 |
1173m |
写真を見る |
| 周辺施設 |
大森ベルポート |
| 距離 |
1498m |
写真を見る |
| 周辺施設 |
イトーヨーカドー 大森店 |
| 距離 |
1586m |
写真を見る |
ここから簡単にお問い合わせをすることができます。
(SSLでの暗号化での送信を希望されるお客さまは
こちら
よりお問い合わせください)
お問い合わせを行う前に
「個人情報の取り扱いについて」を必ずお読みください。
「個人情報の取り扱いについて」に同意いただいた場合は「上記にご同意の上 確認画面へ進む」のボタンをクリックしてください。
個人情報の取り扱いについて
皆さまが送付された個人情報はアットホーム(株)のサーバを経由し、お問い合わせ先の不動産会社にメールまたはFAXにて転送されるためアットホーム(株)にも保管されます。アットホーム(株)で保管された個人情報の取り扱いについては、【こちら】をご覧ください。
また、本画面でご記入いただいた個人情報は、お問い合わせ先の不動産会社でも保管します。 お問い合わせ先の不動産会社が保管する個人情報の取り扱いについては、不動産会社に直接お問い合わせください。
東京都知事免許(3)第96877号 |
|---|
- 交通:
- JR山手線/五反田駅 徒歩2分
- 東京都品川区東五反田2丁目3-4-9F
- TEL:
- 03-6447-7373
- FAX:
- 03-6447-7372
- 所属団体:
- (公社)全日本不動産協会会員不動産公正取引協議会加盟
取引態様:仲介  - 00161501
|
- スマートフォンで
この不動産会社を見る

|
- 提携サイト等より掲載されている物件情報につきましては、不動産会社詳細情報にリンクされていないものがあります。
- 物件に関するお問合せは、物件詳細ページの「情報提供会社」に表示されている不動産会社へ直接お願いいたします。
- 間取図は、現況を優先させていただきます。
- 映像は物件の一部を撮影したものです。物件の契約にあたっての最終判断はご自身の判断に基づいて行ってください。
- 仲介手数料について

アットホームは物件情報の適正化に努めております。
内容に誤りがある場合にはこちらへご連絡ください。