広島県広島市中区大手町1丁目(原爆ドーム前駅)の賃貸:物件詳細
交通 所在地 |
駅徒歩 |
賃料 管理費等 |
敷金/保証金 礼金 |
間取り 面積 |
物件種目 築年月 |
|
広島電鉄本線/原爆ドーム前
広島県広島市中区大手町1丁目
|
3分
|
7.5万円
4,000円
|
1ヶ月 / なし
なし
|
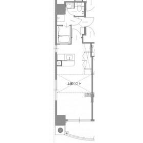
ワンルーム
30.83m²
|
賃貸マンション
2004年3月(築22年3ヶ月)
|
常時ゴミ出し可能、角部屋、二人入居可
|
|
間取図
|
外観
|
<
その他の画像
>
|
| 交通 | 広島電鉄本線 原爆ドーム前駅 徒歩3分 |
|---|
| その他の交通 | 広島電鉄本線 紙屋町西駅 徒歩4分 広島高速交通アストラムライン 本通駅 徒歩6分 |
| 所在地 |
広島県広島市中区大手町1丁目
|
| 物件種目 |
賃貸マンション |
| 賃料 |
7.5万円 |
管理費等 |
4,000円 |
| 敷金 / 保証金 |
1ヶ月 / なし |
礼金 |
なし |
| 敷引 |
- |
保証金償却 |
- |
| その他一時金 |
カギ交換代:13,200円 |
保険等 |
要 |
| 維持費等 |
- |
クレジットカード決済 |
初期費用可 |
| 間取り |
ワンルーム(洋13) |
専有面積 |
30.83m² |
| 築年月 |
2004年3月(築22年3ヶ月)
|
階建 / 階 |
10階建 / 8階 |
| 建物構造 |
RC |
総戸数 |
- |
| 主要採光面 |
東 |
駐車場 |
無 |
| バイク置き場 |
- |
駐輪場 |
- |
| 建物名・部屋番号 |
Lion大手町 |
ペット |
-
|
| リフォーム履歴 |
- |
| リノベーション履歴 |
- |
| 備考 |
賃貸保証等:加入要(要確認)
管理形態/管理員の勤務形態:-/-
☆地域情報に詳しい良和ハウスがサポート♪
◆広島電鉄「原爆ドーム前」駅まで徒歩3分◆最寄りのコンビニまで徒歩1分!◆うれしいロフト付き◆追焚機
|
| エネルギー消費性能 |
- |
| 断熱性能 |
- |
| 目安光熱費 |
- |
| バス・トイレ |
バス・トイレ別、浴室乾燥機、追焚機能、洗面所独立、洗面所、シャワー、温水洗浄便座、トイレ |
| キッチン |
カウンターキッチン、オープンキッチン、ガスコンロ可 |
| セキュリティー |
オートロック、モニター付インターホン、防犯カメラ |
| 収納 |
クローゼット、シューズボックス |
| 設備・サービス |
室内洗濯機置場、ロフト、プロパンガス、エアコン |
| TV・通信 |
光ファイバー |
| その他 |
宅配BOX、バルコニー、エレベーター |
| 契約期間 |
2年 |
現況 |
居住中 |
| 条件等 |
- |
入居可能時期 |
2026年5月20日予定 |
| 更新料 |
なし |
物件番号 |
1197760622 |
| 情報公開日 |
2026年5月8日 |
次回更新予定日 |
2026年5月22日 |
| ケータイ用バーコード |
- スマートフォンでこの物件を見る
- スマートフォンからもこの物件をご覧になれます。
|
※「-」と表示されている項目については、情報提供会社にご確認ください。
| 周辺施設 |
そごう広島店 |
| 距離 |
418m |
写真を見る |
| 周辺施設 |
ゆめマートサンモール |
| 距離 |
253m |
写真を見る |
| 周辺施設 |
セブンイレブン広島大手町1丁目店 |
| 距離 |
114m |
写真を見る |
| 周辺施設 |
サンドラッグ紙屋町サンモール店 |
| 距離 |
252m |
| 周辺施設 |
広島市立本川小学校 |
| 距離 |
549m |
写真を見る |
| 周辺施設 |
国家公務員共済組合連合会広島記念 |
| 距離 |
732m |
写真を見る |
ここから簡単にお問い合わせをすることができます。
(SSLでの暗号化での送信を希望されるお客さまは
こちら
よりお問い合わせください)
お問い合わせを行う前に
「個人情報の取り扱いについて」を必ずお読みください。
「個人情報の取り扱いについて」に同意いただいた場合は「上記にご同意の上 確認画面へ進む」のボタンをクリックしてください。
個人情報の取り扱いについて
皆さまが送付された個人情報はアットホーム(株)のサーバを経由し、お問い合わせ先の不動産会社にメールまたはFAXにて転送されるためアットホーム(株)にも保管されます。アットホーム(株)で保管された個人情報の取り扱いについては、【こちら】をご覧ください。
また、本画面でご記入いただいた個人情報は、お問い合わせ先の不動産会社でも保管します。 お問い合わせ先の不動産会社が保管する個人情報の取り扱いについては、不動産会社に直接お問い合わせください。
国土交通大臣免許(2)第9113号 |
|---|
- 交通:
- JR山陽本線/広島駅 徒歩7分 【バス】 広島駅新幹線口 停歩5分
- 広島県広島市東区光町2丁目6-12 杉屋ビル102号室
- TEL:
- 082-553-9579
- FAX:
- 082-553-0447
- 所属団体:
- (公社)広島県宅地建物取引業協会会員(公財)日本賃貸住宅管理協会会員全国賃貸管理ビジネス協会会員中国地区不動産公正取引協議会加盟
取引態様:仲介  - 50111237
|
- スマートフォンで
この不動産会社を見る

|
- 提携サイト等より掲載されている物件情報につきましては、不動産会社詳細情報にリンクされていないものがあります。
- 物件に関するお問合せは、物件詳細ページの「情報提供会社」に表示されている不動産会社へ直接お願いいたします。
- 間取図は、現況を優先させていただきます。
- 映像は物件の一部を撮影したものです。物件の契約にあたっての最終判断はご自身の判断に基づいて行ってください。
- 仲介手数料について

アットホームは物件情報の適正化に努めております。
内容に誤りがある場合にはこちらへご連絡ください。