東京都大田区大森中1丁目(大森町駅)の賃貸:物件詳細
交通 所在地 |
駅徒歩 |
賃料 管理費等 |
敷金/保証金 礼金 |
間取り 面積 |
物件種目 築年月 |
|
京急本線/大森町
東京都大田区大森中1丁目
|
2分
|
14.8万円
20,000円
|
14.8万円 / なし
なし
|
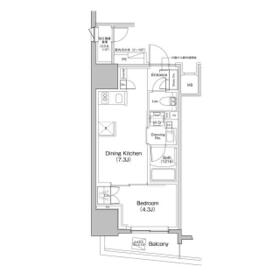
1DK
30.02m²
|
賃貸マンション
2025年5月
|
ペット相談、楽器相談
|
|
間取図
|
外観
|
<
その他の画像
>
|
| 交通 | 京急本線 大森町駅 徒歩2分 |
|---|
| その他の交通 | 京急本線 平和島駅 徒歩10分 京急本線 梅屋敷駅 徒歩10分 |
| 所在地 |
東京都大田区大森中1丁目
|
| 物件種目 |
賃貸マンション |
| 賃料 |
14.8万円 |
管理費等 |
20,000円 |
| 敷金 / 保証金 |
14.8万円 / なし |
礼金 |
なし |
| 敷引 |
実費 |
保証金償却 |
- |
| その他一時金 |
- |
保険等 |
要 2年 |
| 維持費等 |
- |
| 間取り |
1DK(DK7.3 洋4.3) |
専有面積 |
30.02m² |
| 築年月 |
2025年5月
|
階建 / 階 |
15階建 / 6階 |
| 建物構造 |
RC |
総戸数 |
84戸 |
| 主要採光面 |
南東 |
駐車場 |
有 39,600円/月 |
| バイク置き場 |
無 |
駐輪場 |
無 |
| 建物名・部屋番号 |
ザ・パークハビオ大森町 604 |
ペット |
相談 |
| リフォーム履歴 |
- |
| リノベーション履歴 |
- |
| 備考 |
賃貸保証等:加入要(日本セーフティー 初年度保証料:賃料等合計額の50%(最低保証料2万円)2年目以降:1年毎1万円)
管理形態/管理員の勤務形態:-/-
バルコニー:4.16m²
[退去時費用 退去費用実費精算※故意・過失等別途実費] 礼金無(1年未満解約時、賃料1か月分の違約金有) ダイニングへのエアコン設置不可 引越日は引越幹事会社へ要相談 駆付けサポート24借主加入 保証会社未使用時敷金2か月 ペット・楽器相談(諸条件弊社募集図面要確認) SOHO使用応相談(敷金1か月積増/保証料 NO:110746988
|
| エネルギー消費性能 |
- |
| 断熱性能 |
- |
| 目安光熱費 |
- |
| バス・トイレ |
バス・トイレ別、浴室乾燥機、追焚機能、洗面所独立、洗面台、シャワー、温水洗浄便座 |
| キッチン |
システムキッチン、2口コンロ |
| セキュリティー |
オートロック、モニター付インターホン、防犯カメラ |
| 収納 |
収納スペース、クローゼット |
| 設備・サービス |
室内洗濯機置場、給湯、フローリング、エアコン |
| TV・通信 |
インターネット使用料無料、光ファイバー |
| その他 |
宅配BOX、バルコニー、エレベーター |
| 契約期間 |
2年 |
現況 |
完成済 |
| 条件等 |
- |
入居可能時期 |
即時 |
| 更新料 |
- |
物件番号 |
1198149709 |
| 情報公開日 |
2025年10月17日 |
次回更新予定日 |
2025年11月23日 |
| ケータイ用バーコード |
- スマートフォンでこの物件を見る
- スマートフォンからもこの物件をご覧になれます。
|
※「-」と表示されている項目については、情報提供会社にご確認ください。
| 周辺施設 |
大田西糀谷郵便局 |
| 距離 |
1866m |
写真を見る |
| 周辺施設 |
プラザ大師 |
| 距離 |
5752m |
写真を見る |
| 周辺施設 |
オーケー川崎大師店 |
| 距離 |
4862m |
写真を見る |
| 周辺施設 |
ミニストップ川崎大師前店 |
| 距離 |
5433m |
写真を見る |
| 周辺施設 |
ファミリーマート |
| 距離 |
4522m |
写真を見る |
| 周辺施設 |
ファミリーマート川崎大師駅前店 |
| 距離 |
5600m |
写真を見る |
| 周辺施設 |
まいばすけっと 東門前3丁目 |
| 距離 |
4938m |
写真を見る |
ここから簡単にお問い合わせをすることができます。
(SSLでの暗号化での送信を希望されるお客さまは
こちら
よりお問い合わせください)
お問い合わせを行う前に
「個人情報の取り扱いについて」を必ずお読みください。
「個人情報の取り扱いについて」に同意いただいた場合は「上記にご同意の上 確認画面へ進む」のボタンをクリックしてください。
個人情報の取り扱いについて
皆さまが送付された個人情報はアットホーム(株)のサーバを経由し、お問い合わせ先の不動産会社にメールまたはFAXにて転送されるためアットホーム(株)にも保管されます。アットホーム(株)で保管された個人情報の取り扱いについては、【こちら】をご覧ください。
また、本画面でご記入いただいた個人情報は、お問い合わせ先の不動産会社でも保管します。 お問い合わせ先の不動産会社が保管する個人情報の取り扱いについては、不動産会社に直接お問い合わせください。
神奈川県知事免許(10)第13668号 |
|---|
- 交通:
- JR京浜東北線/川崎駅
- 神奈川県川崎市川崎区駅前本町12-1 リバークビル1F
- TEL:
- 044-245-1111
- FAX:
- 044-244-8899
- 所属団体:
- (公社)神奈川県宅地建物取引業協会会員全国賃貸管理ビジネス協会会員(公財)日本賃貸住宅管理協会会員(公社)首都圏不動産公正取引協議会加盟
取引態様:仲介  - 99021132
|
- スマートフォンで
この不動産会社を見る

|
- 提携サイト等より掲載されている物件情報につきましては、不動産会社詳細情報にリンクされていないものがあります。
- 物件に関するお問合せは、物件詳細ページの「情報提供会社」に表示されている不動産会社へ直接お願いいたします。
- 間取図は、現況を優先させていただきます。
- 映像は物件の一部を撮影したものです。物件の契約にあたっての最終判断はご自身の判断に基づいて行ってください。
- 仲介手数料について

アットホームは物件情報の適正化に努めております。
内容に誤りがある場合にはこちらへご連絡ください。