千葉県市川市市川2丁目(国府台駅)の賃貸:物件詳細
交通 所在地 |
駅徒歩 |
賃料 管理費等 |
敷金/保証金 礼金 |
間取り 面積 |
物件種目 築年月 |
|
京成本線/国府台
千葉県市川市市川2丁目
|
5分
|
8.8万円
4,500円
|
なし / なし
1ヶ月
|
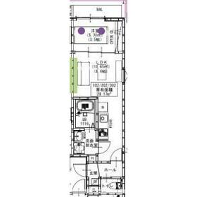
1LDK
28.17m²
|
賃貸アパート
2025年11月
|
角部屋、法人契約希望、24時間セキュリティー、2面採光、24時間換気システム、閑静な住宅街、外観タイル張り
|
|
間取図
|
外観
|
その他の画像
|
| 交通 | 京成本線 国府台駅 徒歩5分 |
|---|
| その他の交通 | JR総武本線 市川駅 徒歩11分 京成本線 市川真間駅 徒歩11分 |
| 所在地 |
千葉県市川市市川2丁目
|
| 物件種目 |
賃貸アパート |
| 賃料 |
8.8万円 |
管理費等 |
4,500円 |
| 敷金 / 保証金 |
なし / なし |
礼金 |
1ヶ月 |
| 敷引 |
実費 |
保証金償却 |
- |
| その他一時金 |
清掃費:66,000円、エアコン洗浄費用:16,500円 |
保険等 |
要 2年 20,400円 |
| 維持費等 |
- |
| 間取り |
1LDK |
専有面積 |
28.17m² |
| 築年月 |
2025年11月
|
階建 / 階 |
3階建 / 2階 |
| 建物構造 |
木造 |
総戸数 |
- |
| 主要採光面 |
北 |
駐車場 |
無 |
| バイク置き場 |
無 |
駐輪場 |
有 |
| 建物名・部屋番号 |
GRADUS市川 202 |
ペット |
-
|
| リフォーム履歴 |
- |
| リノベーション履歴 |
- |
| 備考 |
賃貸保証等:加入要(①全保連:初回保証料50%、更新料10,000/年、口座振替手数料550円/月 ②エポス:初回保証料50%、月額保証料1.5%、年間保証料10,000円)
管理形態/管理員の勤務形態:-/-
[退去時費用 短期解約違約金有り:1年未満賃料1カ月 退去時実費精算※故意・過失等別途実費] NO:111164088
|
| エネルギー消費性能 |
- |
| 断熱性能 |
- |
| 目安光熱費 |
- |
| バス・トイレ |
バス・トイレ別、浴室暖房、浴室乾燥機、追焚機能、洗面所独立、洗面所、洗面台、シャワー、温水洗浄便座、トイレ |
| キッチン |
システムキッチン、2口コンロ、ガスコンロ可 |
| セキュリティー |
モニター付オートロック、オートロック、モニター付インターホン、火災警報器(報知機) |
| 収納 |
全居室収納、収納スペース、クローゼット、シューズボックス |
| 設備・サービス |
室内洗濯機置場、給湯、全居室フローリング、フローリング、都市ガス、エアコン、暖房、冷房 |
| TV・通信 |
インターネット対応、インターネット使用料無料 |
| その他 |
宅配BOX、バルコニー、駐輪場 |
| 契約期間 |
2年 |
現況 |
未完成 |
| 条件等 |
- |
入居可能時期 |
2025年11月上旬予定 |
| 更新料 |
新賃料 1ヶ月 |
物件番号 |
1198164209 |
| 情報公開日 |
2025年10月17日 |
次回更新予定日 |
2025年10月31日 |
| ケータイ用バーコード |
- スマートフォンでこの物件を見る
- スマートフォンからもこの物件をご覧になれます。
|
※「-」と表示されている項目については、情報提供会社にご確認ください。
ここから簡単にお問い合わせをすることができます。
(SSLでの暗号化での送信を希望されるお客さまは
こちら
よりお問い合わせください)
お問い合わせを行う前に
「個人情報の取り扱いについて」を必ずお読みください。
「個人情報の取り扱いについて」に同意いただいた場合は「上記にご同意の上 確認画面へ進む」のボタンをクリックしてください。
個人情報の取り扱いについて
皆さまが送付された個人情報はアットホーム(株)のサーバを経由し、お問い合わせ先の不動産会社にメールまたはFAXにて転送されるためアットホーム(株)にも保管されます。アットホーム(株)で保管された個人情報の取り扱いについては、【こちら】をご覧ください。
また、本画面でご記入いただいた個人情報は、お問い合わせ先の不動産会社でも保管します。 お問い合わせ先の不動産会社が保管する個人情報の取り扱いについては、不動産会社に直接お問い合わせください。
国土交通大臣免許(5)第6015号 |
|---|
- 交通:
- JR総武線/本八幡駅
- 千葉県市川市南八幡4丁目6-6
- TEL:
- 047-377-8911
- FAX:
- 047-377-8885
- 所属団体:
- (一社)千葉県宅地建物取引業協会会員不動産公正取引協議会加盟
取引態様:仲介  - 99020368
|
- スマートフォンで
この不動産会社を見る

|
- 提携サイト等より掲載されている物件情報につきましては、不動産会社詳細情報にリンクされていないものがあります。
- 物件に関するお問合せは、物件詳細ページの「情報提供会社」に表示されている不動産会社へ直接お願いいたします。
- 間取図は、現況を優先させていただきます。
- 映像は物件の一部を撮影したものです。物件の契約にあたっての最終判断はご自身の判断に基づいて行ってください。
- 仲介手数料について

アットホームは物件情報の適正化に努めております。
内容に誤りがある場合にはこちらへご連絡ください。