北海道札幌市北区北十七条西4丁目(北18条駅)の賃貸:物件詳細
交通 所在地 |
駅徒歩 |
賃料 管理費等 |
敷金/保証金 礼金 |
間取り 面積 |
物件種目 築年月 |
|
札幌市南北線/北18条
北海道札幌市北区北十七条西4丁目
|
2分
|
5.5万円
-
|
1ヶ月 / なし
なし
|
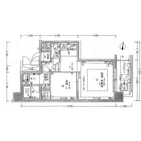
1LDK
35.82m²
|
賃貸マンション
1989年10月(築36年3ヶ月)
|
分譲タイプ、角部屋、高齢者相談、二人入居可、外観タイル張り
|
|
間取図
|
外観
|
<
その他の画像
>
|
| 交通 | 札幌市南北線 北18条駅 徒歩2分 |
| 所在地 |
北海道札幌市北区北十七条西4丁目
|
| 物件種目 |
賃貸マンション |
| 賃料 |
5.5万円 |
管理費等 |
- |
| 敷金 / 保証金 |
1ヶ月 / なし |
礼金 |
なし |
| 敷引 |
- |
保証金償却 |
- |
| その他一時金 |
- |
保険等 |
要 2年 16,000円 |
| 維持費等 |
水廻り清掃料:27,500円/月 |
| 間取り |
1LDK(洋 4 LDK 8) |
専有面積 |
35.82m² |
| 築年月 |
1989年10月(築36年3ヶ月)
|
階建 / 階 |
11階建 / 3階 |
| 建物構造 |
RC |
総戸数 |
- |
| 主要採光面 |
東 |
駐車場 |
無 |
| バイク置き場 |
- |
駐輪場 |
- |
| 建物名・部屋番号 |
ライオンズマンション北大前 304 |
ペット |
-
|
| リフォーム履歴 |
- |
| リノベーション履歴 |
- |
| 備考 |
管理形態/管理員の勤務形態:-/日勤
バルコニー:5.7m²
管理人日勤
|
| エネルギー消費性能 |
- |
| 断熱性能 |
- |
| 目安光熱費 |
- |
| バス・トイレ |
バス・トイレ別、洗面所独立、洗面所、洗面台、シャワー、トイレ |
| キッチン |
ガスコンロ付 |
| セキュリティー |
オートロック |
| 収納 |
収納スペース |
| 設備・サービス |
洗濯機置場、都市ガス給湯、給湯、都市ガス、FF暖房、灯油暖房、暖房、灯油 |
| TV・通信 |
- |
| その他 |
バルコニー、エレベーター |
| 契約期間 |
2年 |
現況 |
空家 |
| 条件等 |
- |
入居可能時期 |
即時 |
| 更新料 |
- |
物件番号 |
4351903101 |
| 情報公開日 |
2025年12月5日 |
次回更新予定日 |
2025年12月19日 |
| ケータイ用バーコード |
- スマートフォンでこの物件を見る
- スマートフォンからもこの物件をご覧になれます。
|
※「-」と表示されている項目については、情報提供会社にご確認ください。
| 周辺施設 |
全日食チェーン北18条店 |
| 距離 |
260m |
| 周辺施設 |
セブンイレブン札幌北17条店 |
| 距離 |
75m |
ここから簡単にお問い合わせをすることができます。
(SSLでの暗号化での送信を希望されるお客さまは
こちら
よりお問い合わせください)
お問い合わせを行う前に
「個人情報の取り扱いについて」を必ずお読みください。
「個人情報の取り扱いについて」に同意いただいた場合は「上記にご同意の上 確認画面へ進む」のボタンをクリックしてください。
個人情報の取り扱いについて
皆さまが送付された個人情報はアットホーム(株)のサーバを経由し、お問い合わせ先の不動産会社にメールまたはFAXにて転送されるためアットホーム(株)にも保管されます。アットホーム(株)で保管された個人情報の取り扱いについては、【こちら】をご覧ください。
また、本画面でご記入いただいた個人情報は、お問い合わせ先の不動産会社でも保管します。 お問い合わせ先の不動産会社が保管する個人情報の取り扱いについては、不動産会社に直接お問い合わせください。
北海道知事免許 石狩(7)第6175号 |
|---|
- 交通:
- 札幌市南北線/北18条駅 徒歩1分
- 北海道札幌市北区北十八条西3丁目2-18 I・Dビル1F
- TEL:
- 011-709-8850
- FAX:
- 011-709-8851
- 所属団体:
- (公社)北海道宅地建物取引業協会会員(一社)北海道不動産公正取引協議会加盟
取引態様:仲介  - 10001998
|
- スマートフォンで
この不動産会社を見る

|
- 提携サイト等より掲載されている物件情報につきましては、不動産会社詳細情報にリンクされていないものがあります。
- 物件に関するお問合せは、物件詳細ページの「情報提供会社」に表示されている不動産会社へ直接お願いいたします。
- 間取図は、現況を優先させていただきます。
- 映像は物件の一部を撮影したものです。物件の契約にあたっての最終判断はご自身の判断に基づいて行ってください。
- 仲介手数料について

アットホームは物件情報の適正化に努めております。
内容に誤りがある場合にはこちらへご連絡ください。