長崎県佐世保市権常寺1丁目(早岐駅)の賃貸:物件詳細
交通 所在地 |
駅徒歩 |
賃料 管理費等 |
敷金/保証金 礼金 |
間取り 面積 |
物件種目 築年月 |
|
JR佐世保線/早岐 [バス利用可] バス 権常寺別道 停歩1分
長崎県佐世保市権常寺1丁目
|
3分
|
4.3万円
2,000円
|
なし / なし
1.5ヶ月
|
1K
27.66m²
|
賃貸アパート
2006年2月(築19年11ヶ月)
|
|
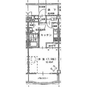
間取図
|
|
<
その他の画像
>
|
| 交通 | JR佐世保線 早岐駅 徒歩3分 [バス利用可] バス 権常寺別道 停歩1分 |
| 所在地 |
長崎県佐世保市権常寺1丁目
|
| 物件種目 |
賃貸アパート |
| 賃料 |
4.3万円 |
管理費等 |
2,000円 |
| 敷金 / 保証金 |
なし / なし |
礼金 |
1.5ヶ月 |
| 敷引 |
- |
保証金償却 |
- |
| その他一時金 |
- |
保険等 |
要 2年 19,000円 家財 |
| 維持費等 |
- |
| 間取り |
1K(洋 7.5 K 4.5) |
専有面積 |
27.66m² |
| 築年月 |
2006年2月(築19年11ヶ月)
|
階建 / 階 |
4階建 / 3階 |
| 建物構造 |
鉄骨造 |
総戸数 |
- |
| 主要採光面 |
|
駐車場 |
有 3,300円/月 |
| バイク置き場 |
- |
駐輪場 |
- |
| 建物名・部屋番号 |
マリンビル 302 |
ペット |
-
|
| アピールポイント |
浮いたコストを生活スタートの原動力に使っていただきたい!敷金(保証金)0円。フットワークが軽くなる早岐駅徒歩3分だから、毎日の通勤通学がラク。また洗髪とメイクをまとめてできるシャンプードレッサー付で、その上玄関が片付くシューズボックス付なので、玄関の整理整頓OKです。ちなみにプロパンガス仕様です。気ままな一人暮らしを満喫できる1K。実際の空間をご自身で体感ください。 |
| リフォーム履歴 |
- |
| リノベーション履歴 |
- |
| 備考 |
賃貸保証等:加入要(契約時:月額総賃料×60%、毎月:600円)
管理形態/管理員の勤務形態:-/-
間取図、現況を優先します。(参考)
|
| エネルギー消費性能 |
- |
| 断熱性能 |
- |
| 目安光熱費 |
- |
| バス・トイレ |
バス・トイレ別、シャワー付洗面化粧台、洗面所独立、洗面所、洗面台、シャワー、トイレ |
| キッチン |
2口コンロ、ガスコンロ付、グリル |
| セキュリティー |
- |
| 収納 |
クローゼット、シューズボックス |
| 設備・サービス |
室内洗濯機置場、洗濯機置場、プロパンガス給湯、給湯、フローリング、プロパンガス、エアコン、照明器具 |
| TV・通信 |
- |
| その他 |
バルコニー |
| 契約期間 |
2年 |
現況 |
空家 |
| 条件等 |
- |
入居可能時期 |
相談 |
| 仲介手数料 |
不要 |
|
|
| 更新料 |
なし |
物件番号 |
6951720637 |
| 情報公開日 |
2025年8月8日 |
次回更新予定日 |
2025年12月29日 |
| ケータイ用バーコード |
- スマートフォンでこの物件を見る
- スマートフォンからもこの物件をご覧になれます。
|
※「-」と表示されている項目については、情報提供会社にご確認ください。
| 周辺施設 |
ローソン佐世保花高団地店 |
| 距離 |
237m |
| 周辺施設 |
ディスカウントドラッグコスモス早苗店 |
| 距離 |
54m |
| 周辺施設 |
医療法人佐世保晩翠会村上病院 |
| 距離 |
807m |
ここから簡単にお問い合わせをすることができます。
(SSLでの暗号化での送信を希望されるお客さまは
こちら
よりお問い合わせください)
お問い合わせを行う前に
「個人情報の取り扱いについて」を必ずお読みください。
「個人情報の取り扱いについて」に同意いただいた場合は「上記にご同意の上 確認画面へ進む」のボタンをクリックしてください。
個人情報の取り扱いについて
皆さまが送付された個人情報はアットホーム(株)のサーバを経由し、お問い合わせ先の不動産会社にメールまたはFAXにて転送されるためアットホーム(株)にも保管されます。アットホーム(株)で保管された個人情報の取り扱いについては、【こちら】をご覧ください。
また、本画面でご記入いただいた個人情報は、お問い合わせ先の不動産会社でも保管します。 お問い合わせ先の不動産会社が保管する個人情報の取り扱いについては、不動産会社に直接お問い合わせください。
長崎県知事免許(7)第2940号 |
|---|
- 交通:
- JR佐世保線/早岐駅 徒歩2分 【バス】1分 権常寺別道 停歩1分
- 長崎県佐世保市権常寺1丁目6-7
- TEL:
- 0956-26-5255
- FAX:
- 0956-26-5256
- 所属団体:
- (公社)全日本不動産協会会員(一社)九州不動産公正取引協議会加盟
取引態様:貸主  - 80500725
|
- スマートフォンで
この不動産会社を見る

|
- 提携サイト等より掲載されている物件情報につきましては、不動産会社詳細情報にリンクされていないものがあります。
- 物件に関するお問合せは、物件詳細ページの「情報提供会社」に表示されている不動産会社へ直接お願いいたします。
- 間取図は、現況を優先させていただきます。
- 映像は物件の一部を撮影したものです。物件の契約にあたっての最終判断はご自身の判断に基づいて行ってください。
- 仲介手数料について

アットホームは物件情報の適正化に努めております。
内容に誤りがある場合にはこちらへご連絡ください。