不動産 賃貸 マンション等の住宅情報:埼玉住まい情報


長崎県東彼杵郡波佐見町岳辺田郷の賃貸:物件詳細

  • 物件詳細
  • 情報の見方
  • 印刷用画面
交通
所在地
駅徒歩 賃料
管理費等
敷金/保証金
礼金
間取り
面積
物件種目
築年月

【バス】小鳥居病院前 停歩1分

長崎県東彼杵郡波佐見町岳辺田郷

4.8万円

2,000円

1ヶ月 / なし

1ヶ月

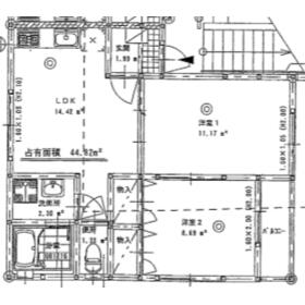
2DK

44.81m²

賃貸アパート

2010年3月(築16年3ヶ月)

おすすめPOINT駐車場2台分、角部屋

おすすめコメント

部屋をスッキリみせられるクローゼット付、更にアウトドアや趣味のグッズを置くのにもってこいの収納スペース有だから、来客時に見られたくないものを隠せます。

間取図

間取図

<
その他の画像
>
    • とりあえず保存
    • お問い合わせ
    交通

    【バス】 小鳥居病院前 停歩1分

    所在地 長崎県東彼杵郡波佐見町岳辺田郷
    物件種目 賃貸アパート
    賃料 4.8万円 管理費等 2,000円
    敷金 / 保証金 1ヶ月 / なし 礼金 1ヶ月
    敷引 保証金償却
    その他一時金 保険等 要 2年 20,500円
    維持費等 2台目駐車場:2,000円/月
    間取り 2DK(洋 5.5・7 DK 9) 専有面積 44.81m²
    築年月 2010年3月(築16年3ヶ月) 階建 / 階 2階建 / 2階
    建物構造 木造 総戸数
    主要採光面 駐車場 有 無料
    バイク置き場 駐輪場
    建物名・部屋番号 グリーンハイツ 201 ペット
    アピールポイント 重い荷物の日にありがた味がわかるバス停徒歩1分以内の物件、更に車中心生活を支える駐車場2台分有だから、機動力の2倍確保が可能です。またシステムキッチン付で、その上一度に複数のおかず作りを同時進行できるコンロ3口以上の仕様なので、晩ごはんの支度と翌日の弁当準備ができます。ちなみに洗面ボウルが大きなシャンプードレッサー付です。家族の団結を強める2DK。是非その目でお確かめください。
    リフォーム履歴
    リノベーション履歴
    備考
    賃貸保証等:加入要(契約時:月額総賃料×60%、毎月600円)
    管理形態/管理員の勤務形態:-/-
    間取図、現況を優先します(参考)
    エネルギー消費性能
    断熱性能
    目安光熱費
    バス・トイレ バス・トイレ別、追焚機能、シャワー付洗面化粧台、シャワー、温水洗浄便座
    キッチン システムキッチン、3口以上コンロ、ガスコンロ付、グリル
    セキュリティー
    収納 収納スペース、クローゼット、シューズボックス
    設備・サービス 室内洗濯機置場、プロパンガス給湯、給湯、フローリング、プロパンガス、エアコン
    TV・通信
    その他 バルコニー
    契約期間 2年 現況 空家
    条件等 入居可能時期 相談
    仲介手数料 1.1ヶ月    
    更新料 なし 物件番号 6952374280
    情報公開日 2025年4月10日 次回更新予定日 2026年5月18日
    ケータイ用バーコード

    QRコード

    スマートフォンでこの物件を見る
    スマートフォンからもこの物件をご覧になれます。
    ※「-」と表示されている項目については、情報提供会社にご確認ください。

    この物件の周辺情報

    周辺施設 デイリーヤマザキ佐世保川棚店
    距離 1120m
    周辺施設 長崎県立波佐見高校
    距離 1360m
    周辺施設 波佐見町立南小学校
    距離 1516m
    周辺施設 鴻ノ巣保育園
    距離 1365m
    周辺施設 医療法人衷心会小鳥居病院
    距離 289m
    周辺施設 波佐見病院
    距離 2445m
    周辺施設 波佐見温泉
    距離 1110m
    周辺施設 鴻ノ巣グラウンド
    距離 1721m

    クイックお問い合わせ

    ここから簡単にお問い合わせをすることができます。
    (SSLでの暗号化での送信を希望されるお客さまは こちら よりお問い合わせください)

    お問い合わせ内容(必須)
    お名前(必須) 姓  名 
    メールアドレス(必須)
    ※携帯電話のメールアドレスをご入力される方はこちらをご確認ください
    電話番号(必須)
    - -

    ※入力いただいた電話番号へSMSまたは音声でパスワードをご連絡します。

    携帯電話の番号をご入力の方へ

    携帯電話の番号をご入力の方へ
    確認画面にて送信ボタンをクリックするとSMSが携帯電話に届きます。
    そのSMSに記載のパスワード(認証番号)を入力し、お問い合わせを完了してください。
    尚、SMSの送信者番号は 0005 202 760 となります。
    これはアットホームの固定番号です。

    備考欄 希望条件、物件案内希望日、質問などがございましたらご記入ください。
    お問い合わせを行う前に「個人情報の取り扱いについて」を必ずお読みください。
    「個人情報の取り扱いについて」に同意いただいた場合は「上記にご同意の上 確認画面へ進む」のボタンをクリックしてください。

    個人情報の取り扱いについて

    皆さまが送付された個人情報はアットホーム(株)のサーバを経由し、お問い合わせ先の不動産会社にメールまたはFAXにて転送されるためアットホーム(株)にも保管されます。アットホーム(株)で保管された個人情報の取り扱いについては、【こちら】をご覧ください。
    また、本画面でご記入いただいた個人情報は、お問い合わせ先の不動産会社でも保管します。 お問い合わせ先の不動産会社が保管する個人情報の取り扱いについては、不動産会社に直接お問い合わせください。

    情報提供会社

    情報提供会社

    (有)ドリームツウー

    長崎県知事免許(7)第2940号

    交通:
    JR佐世保線/早岐駅 徒歩2分 【バス】1分 権常寺別道 停歩1分
    長崎県佐世保市権常寺1丁目6-7 
    TEL:
    0956-26-5255
    FAX:
    0956-26-5256
    所属団体:
    (公社)全日本不動産協会会員
    (一社)九州不動産公正取引協議会加盟

    取引態様:仲介

    • 会社情報
    • 80500725
    スマートフォンで
    この不動産会社を見る
    QRコード
    • とりあえず保存
    • お問い合わせ
    • 提携サイト等より掲載されている物件情報につきましては、不動産会社詳細情報にリンクされていないものがあります。
    • 物件に関するお問合せは、物件詳細ページの「情報提供会社」に表示されている不動産会社へ直接お願いいたします。
    • 間取図は、現況を優先させていただきます。
    • 映像は物件の一部を撮影したものです。物件の契約にあたっての最終判断はご自身の判断に基づいて行ってください。
    • 仲介手数料について仲介手数料

    アットホームは物件情報の適正化に努めております。 内容に誤りがある場合にはこちらへご連絡ください。

    【埼玉住まい情報】では、日本全国の物件から賃貸マンションや賃貸アパート・賃貸一戸建て等の賃貸住宅情報、新築マンション・分譲マンションや中古マンション等の売買マンション情報、新築一戸建てや中古一戸建てなどの戸建住宅、 土地など、総合的な不動産住宅情報検索サービスを提供致します。
    【埼玉住まい情報】から、選りすぐりの不動産物件を探してみましょう。

    【免責事項】
    このコーナーの運営はアットホーム株式会社(https://www.athome.co.jp/)が行っています。
    このコーナーに掲載している物件情報は、「アットホーム不動産情報ネットワーク」に加盟する不動産会社等(情報提供元)から提供されています。信頼性の高い情報提供が行えるよう、最大限の努力をしておりますが、その内容を保証するものではありません。 利用者のみなさまと各情報提供元との取引に起因する損害および情報が掲載されたことに起因する損害等については、株式会社イーシティ埼玉、およびアットホームは一切責任を負いません。
    各物件情報の内容や画像等はすべて現況を優先させていただきます。
    お取引等(お取引の準備、資金調達等を含みます)の際には、内容や契約条件等について、各情報提供元より十分な説明を受け、ご自身でご確認の上、判断してください。
    このコーナーへの物件情報のご掲載、その他不動産業務ソリューション等についての不動産会社様のお問合せはこちらからお願いいたします。

    物件画像: