宮城県仙台市青葉区北根1丁目(台原駅)の賃貸:物件詳細
交通 所在地 |
駅徒歩 |
賃料 管理費等 |
敷金/保証金 礼金 |
間取り 面積 |
物件種目 築年月 |
|
仙台市南北線/台原
宮城県仙台市青葉区北根1丁目
|
13分
|
7.5万円
7,600円
|
2ヶ月 / なし
1ヶ月
|
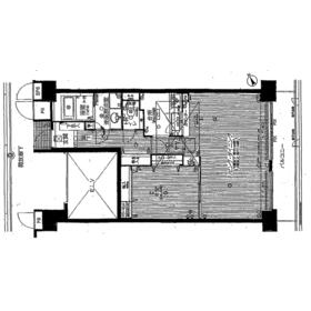
1LDK
62.53m²
|
賃貸マンション
1999年8月(築26年5ヶ月)
|
分譲タイプ、閑静な住宅街、外観タイル張り、前面棟無
|
|
間取図
|
リビング
|
<
その他の画像
>
|
| 交通 | 仙台市南北線 台原駅 徒歩13分 |
|---|
| その他の交通 | 仙台市南北線 旭ヶ丘駅 徒歩27分 仙台市南北線 北仙台駅 徒歩20分 |
| 所在地 |
宮城県仙台市青葉区北根1丁目
|
| 物件種目 |
賃貸マンション |
| 賃料 |
7.5万円 |
管理費等 |
7,600円 |
| 敷金 / 保証金 |
2ヶ月 / なし |
礼金 |
1ヶ月 |
| 敷引 |
- |
保証金償却 |
- |
| その他一時金 |
- |
保険等 |
要 2年 16,000円 借家人賠償 |
| 維持費等 |
- |
| 間取り |
1LDK(洋 6 LDK 17.1) |
専有面積 |
62.53m² |
| 築年月 |
1999年8月(築26年5ヶ月)
|
階建 / 階 |
16階建 / 11階 |
| 建物構造 |
SRC |
総戸数 |
- |
| 主要採光面 |
南東 |
駐車場 |
有 6,000円/月 |
| バイク置き場 |
- |
駐輪場 |
- |
| 建物名・部屋番号 |
ロイヤルパレス台原森林公園 1115 |
ペット |
-
|
| リフォーム履歴 |
■その他:2025年11月 クロス張替等、ハウスクリーニング ※実施年月は最も古い履歴を表示 |
| リノベーション履歴 |
- |
| 備考 |
賃貸保証等:利用可(条件等により異なりますので詳しくは担当者までご確認ください。)
管理形態/管理員の勤務形態:-/日勤
バルコニー:5.8m²
管理人日勤
|
| エネルギー消費性能 |
- |
| 断熱性能 |
- |
| 目安光熱費 |
- |
| バス・トイレ |
バス・トイレ別、追焚機能、シャワー付洗面化粧台、温水洗浄便座、トイレ |
| キッチン |
カウンターキッチン、システムキッチン |
| セキュリティー |
モニター付オートロック、オートロック、モニター付インターホン |
| 収納 |
収納スペース、トランクルーム、クローゼット、シューズボックス |
| 設備・サービス |
室内洗濯機置場、都市ガス給湯、全居室フローリング、都市ガス、エアコン、照明器具 |
| TV・通信 |
- |
| その他 |
宅配BOX、敷地内公園、敷地内AED有、エレベーター2基以上、共用パーティルーム、来客用駐車場、バルコニー |
| 契約期間 |
2年 |
現況 |
居住中 |
| 条件等 |
- |
入居可能時期 |
2025年12月中旬予定 |
| 仲介手数料 |
1ヶ月 |
|
|
| 更新料 |
なし |
物件番号 |
6956597632 |
| 情報公開日 |
2025年10月23日 |
次回更新予定日 |
2025年12月17日 |
| ケータイ用バーコード |
- スマートフォンでこの物件を見る
- スマートフォンからもこの物件をご覧になれます。
|
※「-」と表示されている項目については、情報提供会社にご確認ください。
| 周辺施設 |
COOP MIYAGI台原店 |
| 距離 |
1596m |
| 周辺施設 |
独立行政法人労働者健康福祉機構東北労災病院 |
| 距離 |
1164m |
ここから簡単にお問い合わせをすることができます。
(SSLでの暗号化での送信を希望されるお客さまは
こちら
よりお問い合わせください)
お問い合わせを行う前に
「個人情報の取り扱いについて」を必ずお読みください。
「個人情報の取り扱いについて」に同意いただいた場合は「上記にご同意の上 確認画面へ進む」のボタンをクリックしてください。
個人情報の取り扱いについて
皆さまが送付された個人情報はアットホーム(株)のサーバを経由し、お問い合わせ先の不動産会社にメールまたはFAXにて転送されるためアットホーム(株)にも保管されます。アットホーム(株)で保管された個人情報の取り扱いについては、【こちら】をご覧ください。
また、本画面でご記入いただいた個人情報は、お問い合わせ先の不動産会社でも保管します。 お問い合わせ先の不動産会社が保管する個人情報の取り扱いについては、不動産会社に直接お問い合わせください。
(株)トマーク宮城県知事免許(5)第4985号 |
|---|
- 交通:
- 仙台市南北線/長町一丁目駅 徒歩6分
- 宮城県仙台市太白区緑ケ丘3丁目41-5
- TEL:
- 022-248-8166
- FAX:
- 022-248-8167
- 所属団体:
- (公社)全日本不動産協会会員東北地区不動産公正取引協議会加盟
取引態様:仲介 |
- 提携サイト等より掲載されている物件情報につきましては、不動産会社詳細情報にリンクされていないものがあります。
- 物件に関するお問合せは、物件詳細ページの「情報提供会社」に表示されている不動産会社へ直接お願いいたします。
- 間取図は、現況を優先させていただきます。
- 映像は物件の一部を撮影したものです。物件の契約にあたっての最終判断はご自身の判断に基づいて行ってください。
- 仲介手数料について

アットホームは物件情報の適正化に努めております。
内容に誤りがある場合にはこちらへご連絡ください。