神奈川県相模原市南区相模大野2丁目(相模大野駅)の賃貸:物件詳細
交通 所在地 |
駅徒歩 |
賃料 管理費等 |
敷金/保証金 礼金 |
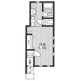
間取り 面積 |
物件種目 築年月 |
|
小田急小田原線/相模大野
神奈川県相模原市南区相模大野2丁目
|
8分
|
5.7万円
3,000円
|
なし / なし
なし
|
1K
21.46m²
|
賃貸アパート
2012年3月(築14年1ヶ月)
|
角部屋、閑静な住宅街
|
|
間取図
|
|
<
その他の画像
>
|
| 交通 | 小田急小田原線 相模大野駅 徒歩8分 |
|---|
| その他の交通 | JR横浜線 町田駅 徒歩19分 小田急江ノ島線 東林間駅 徒歩30分 |
| 所在地 |
神奈川県相模原市南区相模大野2丁目
|
| 物件種目 |
賃貸アパート |
| 賃料 |
5.7万円 |
管理費等 |
3,000円 |
| 敷金 / 保証金 |
なし / なし |
礼金 |
なし |
| 敷引 |
- |
保証金償却 |
- |
| その他一時金 |
ハウスクリーニング代:30,000円 |
保険等 |
要 2年 13,000円 アクア |
| 維持費等 |
- |
| 間取り |
1K(洋 9 K 2) |
専有面積 |
21.46m² |
| 築年月 |
2012年3月(築14年1ヶ月)
|
階建 / 階 |
3階建 / 1階 |
| 建物構造 |
木造 |
総戸数 |
- |
| 主要採光面 |
|
駐車場 |
無 |
| バイク置き場 |
有 無料 |
駐輪場 |
有 無料 |
| 建物名・部屋番号 |
レガーロ 103 |
ペット |
-
|
| リフォーム履歴 |
- |
| リノベーション履歴 |
- |
| 備考 |
賃貸保証等:加入要(家賃等の50% 契約時)
管理形態/管理員の勤務形態:-/-
バストイレ別、浴室乾燥機付き、ロフト
光インターネット無料、シャンプードレッサー、TVモニターフォン付きペアガラス、。
|
| エネルギー消費性能 |
- |
| 断熱性能 |
- |
| 目安光熱費 |
- |
| バス・トイレ |
バス・トイレ別、浴室乾燥機、高温差湯式、シャワー付洗面化粧台、洗面所、洗面台、シャワー、トイレ |
| キッチン |
2口コンロ、ガスコンロ付、ガスコンロ可 |
| セキュリティー |
モニター付インターホン、ディンプルキー、ダブルロックドア、防犯カメラ、火災警報器(報知機) |
| 収納 |
収納スペース、クローゼット、シューズボックス |
| 設備・サービス |
室内洗濯機置場、洗濯機置場、ロフト、給湯、全居室フローリング、フローリング、室内物干し、プロパンガス、エアコン、暖房、冷房、照明器具 |
| TV・通信 |
インターネット対応、インターネット使用料無料、光ファイバー、BS端子 |
| その他 |
バイク置き場、専用庭、駐輪場 |
| 契約期間 |
2年 |
現況 |
居住中 |
| 条件等 |
- |
入居可能時期 |
2026年4月下旬予定 |
| 更新料 |
新賃料 1ヶ月 |
物件番号 |
6957197463 |
| 情報公開日 |
2026年3月16日 |
次回更新予定日 |
2026年3月30日 |
| ケータイ用バーコード |
- スマートフォンでこの物件を見る
- スマートフォンからもこの物件をご覧になれます。
|
※「-」と表示されている項目については、情報提供会社にご確認ください。
| 周辺施設 |
サークルK相模原鵜野森店 |
| 距離 |
311m |
| 周辺施設 |
三菱東京UFJ銀行相模大野駅前支店 |
| 距離 |
753m |
| 周辺施設 |
医療法人社団昌栄会相模大野病院 |
| 距離 |
1081m |
ここから簡単にお問い合わせをすることができます。
(SSLでの暗号化での送信を希望されるお客さまは
こちら
よりお問い合わせください)
お問い合わせを行う前に
「個人情報の取り扱いについて」を必ずお読みください。
「個人情報の取り扱いについて」に同意いただいた場合は「上記にご同意の上 確認画面へ進む」のボタンをクリックしてください。
個人情報の取り扱いについて
皆さまが送付された個人情報はアットホーム(株)のサーバを経由し、お問い合わせ先の不動産会社にメールまたはFAXにて転送されるためアットホーム(株)にも保管されます。アットホーム(株)で保管された個人情報の取り扱いについては、【こちら】をご覧ください。
また、本画面でご記入いただいた個人情報は、お問い合わせ先の不動産会社でも保管します。 お問い合わせ先の不動産会社が保管する個人情報の取り扱いについては、不動産会社に直接お問い合わせください。
神奈川県知事免許(4)第26062号 |
|---|
- 交通:
- 小田急江ノ島線/相模大野駅 徒歩10分
- 神奈川県相模原市南区相模大野5丁目13-7
- TEL:
- 042-767-2173
- FAX:
- 042-767-2178
- 所属団体:
- (公社)全日本不動産協会会員(公社)首都圏不動産公正取引協議会加盟
取引態様:仲介  - 00015541
|
- スマートフォンで
この不動産会社を見る

|
- 提携サイト等より掲載されている物件情報につきましては、不動産会社詳細情報にリンクされていないものがあります。
- 物件に関するお問合せは、物件詳細ページの「情報提供会社」に表示されている不動産会社へ直接お願いいたします。
- 間取図は、現況を優先させていただきます。
- 映像は物件の一部を撮影したものです。物件の契約にあたっての最終判断はご自身の判断に基づいて行ってください。
- 仲介手数料について

アットホームは物件情報の適正化に努めております。
内容に誤りがある場合にはこちらへご連絡ください。