神奈川県横浜市鶴見区平安町1丁目(鶴見市場駅)の賃貸:物件詳細
交通 所在地 |
駅徒歩 |
賃料 管理費等 |
敷金/保証金 礼金 |
間取り 面積 |
物件種目 築年月 |
|
京急本線/鶴見市場
神奈川県横浜市鶴見区平安町1丁目
|
4分
|
21万円
8,000円
|
1ヶ月 / なし
1ヶ月
|
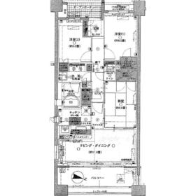
3LDK
73.04m²
|
賃貸マンション
2006年12月(築19年1ヶ月)
|
ペット相談、楽器相談、分譲タイプ、常時ゴミ出し可能、角部屋、ルームシェア可、振分、二人入居可、24時間セキュリティー、2面採光、24時間換気システム、バリアフリー、外観タイル張り、保証人不要
|
|
間取図
|
|
<
その他の画像
>
|
| 交通 | 京急本線 鶴見市場駅 徒歩4分 |
|---|
| その他の交通 | 京急本線 八丁畷駅 徒歩8分 JR東海道本線 川崎駅 徒歩25分 |
| 所在地 |
神奈川県横浜市鶴見区平安町1丁目
|
| 物件種目 |
賃貸マンション |
| 賃料 |
21万円 |
管理費等 |
8,000円 |
| 敷金 / 保証金 |
1ヶ月 / なし |
礼金 |
1ヶ月 |
| 敷引 |
- |
保証金償却 |
- |
| その他一時金 |
- |
保険等 |
要 2年 20,000円 日本共済株式会社 |
| 維持費等 |
- |
| 間取り |
3LDK(和 6 洋 5・6 LDK 15) |
専有面積 |
73.04m² |
| 築年月 |
2006年12月(築19年1ヶ月)
|
階建 / 階 |
7階建 / 3階 |
| 建物構造 |
RC |
総戸数 |
- |
| 主要採光面 |
東 |
駐車場 |
有 12,000円/月 |
| バイク置き場 |
有 |
駐輪場 |
有 |
| 建物名・部屋番号 |
プラウド横浜鶴見市場 |
ペット |
小型犬可・ 猫可・ 合計2匹まで |
| アピールポイント |
物騒な世の中にこそ価値のある24時間セキュリティーの住居、更にピッキングが得意な空き巣が敬遠する非接触型ICカードキーなので、不正コピーされにくくセキュリティ面でも有利です。またアクセスのいい鶴見市場駅徒歩4分立地の物件で、その上不在時の受け取りも楽々の宅配BOX付なので、ネット通販大好き派にはお勧めです。ちなみに遠方からの宿泊客ももてなせる共用ゲストルーム有です。お探しの方には嬉しいペット相談可。家族の安心拠点になる3LDK。百聞は一見にしかず。是非見学にお越しください。 |
| リフォーム履歴 |
- |
| リノベーション履歴 |
- |
| 備考 |
賃貸保証等:加入要(エポスカード 初回賃料等の50%、月額800円)
管理形態/管理員の勤務形態:-/日勤
非喫煙者限定、管理人日勤
・駐車場自走式月額12000円~(全長5m、高さ2.1m、幅2.3m)
・ペット可(犬・猫)合計2匹まで。ペット飼育料初回賃料の1ヶ月分
・退去時クリーニング費用(平米単価1650円税込)
・エアコン1基(残置物)
|
| エネルギー消費性能 |
- |
| 断熱性能 |
- |
| 目安光熱費 |
- |
| バス・トイレ |
バス・トイレ別、浴室乾燥機、オートバス、追焚機能、シャワー付洗面化粧台、洗面所独立、洗面所、温水洗浄便座 |
| キッチン |
カウンターキッチン、システムキッチン、浄水器、2口コンロ、ガスコンロ付、ガスコンロ可 |
| セキュリティー |
モニター付オートロック、オートロック、モニター付インターホン、非接触型ICカードキー、ディンプルキー、ダブルロックドア、防犯カメラ、火災警報器(報知機) |
| 収納 |
全居室収納、ウォークインクローゼット、収納スペース、シューズインクローゼット、クローゼット、シューズボックス |
| 設備・サービス |
エアコン2台以上、床暖房、室内洗濯機置場、全居室フローリング、フローリング、都市ガス、エアコン、暖房、冷房、照明器具 |
| TV・通信 |
インターネット対応、インターネット使用料無料、光ファイバー、ケーブルTV、CS、BS端子 |
| その他 |
宅配BOX、バイク置き場、エレベーター2基以上、バルコニー、駐輪場、エレベーター |
| 契約期間 |
2年 |
現況 |
居住中 |
| 条件等 |
- |
入居可能時期 |
2025年12月下旬予定 |
| 仲介手数料 |
1ヶ月 |
|
|
| 更新料 |
新賃料 1ヶ月 |
物件番号 |
6957485957 |
| 情報公開日 |
2025年11月14日 |
次回更新予定日 |
2025年12月8日 |
| ケータイ用バーコード |
- スマートフォンでこの物件を見る
- スマートフォンからもこの物件をご覧になれます。
|
※「-」と表示されている項目については、情報提供会社にご確認ください。
| 周辺施設 |
まいばすけっと川崎池田店 |
| 距離 |
116m |
| 周辺施設 |
出光セルフガスコン鶴見SS |
| 距離 |
283m |
| 周辺施設 |
ローソン鶴見平安町1丁目店 |
| 距離 |
215m |
ここから簡単にお問い合わせをすることができます。
(SSLでの暗号化での送信を希望されるお客さまは
こちら
よりお問い合わせください)
お問い合わせを行う前に
「個人情報の取り扱いについて」を必ずお読みください。
「個人情報の取り扱いについて」に同意いただいた場合は「上記にご同意の上 確認画面へ進む」のボタンをクリックしてください。
個人情報の取り扱いについて
皆さまが送付された個人情報はアットホーム(株)のサーバを経由し、お問い合わせ先の不動産会社にメールまたはFAXにて転送されるためアットホーム(株)にも保管されます。アットホーム(株)で保管された個人情報の取り扱いについては、【こちら】をご覧ください。
また、本画面でご記入いただいた個人情報は、お問い合わせ先の不動産会社でも保管します。 お問い合わせ先の不動産会社が保管する個人情報の取り扱いについては、不動産会社に直接お問い合わせください。
(株)テナントリテンション東京都知事免許(3)第95789号 |
|---|
- 交通:
- 東京メトロ東西線/早稲田駅 徒歩2分
- 東京都新宿区馬場下町18 秋山ビル2階
- TEL:
- 03-5155-3171
- FAX:
- 03-5155-3172
- 所属団体:
- (公社)東京都宅地建物取引業協会会員(公社)首都圏不動産公正取引協議会加盟
取引態様:仲介 |
- 提携サイト等より掲載されている物件情報につきましては、不動産会社詳細情報にリンクされていないものがあります。
- 物件に関するお問合せは、物件詳細ページの「情報提供会社」に表示されている不動産会社へ直接お願いいたします。
- 間取図は、現況を優先させていただきます。
- 映像は物件の一部を撮影したものです。物件の契約にあたっての最終判断はご自身の判断に基づいて行ってください。
- 仲介手数料について

アットホームは物件情報の適正化に努めております。
内容に誤りがある場合にはこちらへご連絡ください。