不動産 賃貸 マンション等の住宅情報:埼玉住まい情報


長崎県佐世保市白岳町(日宇駅)の賃貸:物件詳細

  • 物件詳細
  • 情報の見方
  • 印刷用画面
交通
所在地
駅徒歩 賃料
管理費等
敷金/保証金
礼金
間取り
面積
物件種目
築年月

JR佐世保線/日宇
[バス利用可] バス 日宇駅前 停歩7分

長崎県佐世保市白岳町

7分

4.5万円

なし

1ヶ月 / なし

1ヶ月

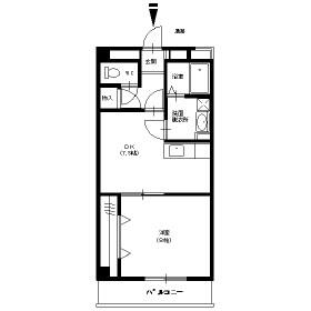
1DK

40.50m²

賃貸マンション

1999年6月(築26年10ヶ月)

おすすめPOINT最上階、南向き、外観タイル張り、前面棟無

おすすめコメント

JR日宇駅まで徒歩7分と交通便利!駐車場1台有り(別途料金3,000円) 最上階・南向きで日当り良好! テレビでBS視聴可! 1DK広い間取りの鉄筋コンクリート造・単身者用マンションです♪

間取図

間取図

<
その他の画像
>
    • とりあえず保存
    • お問い合わせ
    交通

    JR佐世保線 日宇駅 徒歩7分
    [バス利用可] バス 日宇駅前 停歩7分

    所在地 長崎県佐世保市白岳町
    物件種目 賃貸マンション
    賃料 4.5万円 管理費等 なし
    敷金 / 保証金 1ヶ月 / なし 礼金 1ヶ月
    敷引 実費 保証金償却
    その他一時金 保険等 要 2年 16,830円
    維持費等
    間取り 1DK(洋 8 DK 7.5) 専有面積 40.50m²
    築年月 1999年6月(築26年10ヶ月) 階建 / 階 3階建 / 3階
    建物構造 RC 総戸数 7戸
    主要採光面 駐車場 有 3,000円/月
    バイク置き場 駐輪場
    建物名・部屋番号 フリージア 302 ペット
    アピールポイント 佐世保市白岳町に位置する「フリージア」で、新しい暮らしを始めてみませんか?JR佐世保線日宇駅から徒歩7分、バス停も近く、毎日の通勤・通学に便利な立地が魅力です。
    お部屋は広々40.5㎡の1DK。洋室8帖とDK7.5帖で、ゆったりとしたプライベート空間をお楽しみいただけます。最上階の南向きバルコニーは日当たり良好で、明るい光が差し込む心地よいお部屋です。内装はリフォーム済みで、エアコン、バス・トイレ別、独立洗面台、温水洗浄トイレ、室内洗濯機置場など、快適な生活をサポートする設備が充実しています。
    周辺にはマックスバリュやドラッグストア、郵便局などが徒歩圏内に揃い、日々のお買い物や用事もスムーズに済ませられます。駐車場も月額3,000円でご利用いただけますので、お車をお持ちの方も安心ですね。
    こちらは単身者様向けの物件となっております。ぜひ一度、この快適な住まいをご内見ください。
    リフォーム履歴 ■水回り:2025年12月
    キッチン
    ※実施年月は最も古い履歴を表示
    リノベーション履歴
    備考
    賃貸保証等:加入要(38,400円(月額総賃料の80%・一括支払型・毎月や毎年の継続保証料は無し))
    管理形態/管理員の勤務形態:-/-
    バルコニー:4.5m²
    単身者限定
    バイク駐車禁止
    エネルギー消費性能
    断熱性能
    目安光熱費
    バス・トイレ バス・トイレ別、洗面所独立、洗面所、洗面台、シャワー、温水洗浄便座
    キッチン ガスコンロ可
    セキュリティー 火災警報器(報知機)
    収納 クローゼット、シューズボックス
    設備・サービス 室内洗濯機置場、プロパンガス給湯、給湯、フローリング、プロパンガス、エアコン、ダウンライト、照明器具
    TV・通信 BS端子
    その他 バルコニー
    契約期間 2年 現況 空家
    条件等 入居可能時期 即時
    仲介手数料 不要    
    更新料 なし 物件番号 6961168323
    情報公開日 2026年2月19日 次回更新予定日 2026年4月6日
    ケータイ用バーコード

    QRコード

    スマートフォンでこの物件を見る
    スマートフォンからもこの物件をご覧になれます。
    ※「-」と表示されている項目については、情報提供会社にご確認ください。

    この物件の周辺情報

    周辺施設 マックスバリュ白岳店
    距離 852m
    周辺施設 セブンイレブン佐世保日宇町店
    距離 955m
    周辺施設 ほっともっと日宇バイパス店
    距離 989m
    周辺施設 すき家35号佐世保大和店
    距離 1163m
    周辺施設 日宇郵便局
    距離 513m
    周辺施設 国立佐世保工業高等専門学校
    距離 1864m
    周辺施設 長崎県立佐世保南高校
    距離 990m
    周辺施設 社会医療法人財団白十字会佐世保中央病院
    距離 1500m

    クイックお問い合わせ

    ここから簡単にお問い合わせをすることができます。
    (SSLでの暗号化での送信を希望されるお客さまは こちら よりお問い合わせください)

    お問い合わせ内容(必須)
    お名前(必須) 姓  名 
    メールアドレス(必須)
    ※携帯電話のメールアドレスをご入力される方はこちらをご確認ください
    電話番号(必須)
    - -

    ※入力いただいた電話番号へSMSまたは音声でパスワードをご連絡します。

    携帯電話の番号をご入力の方へ

    携帯電話の番号をご入力の方へ
    確認画面にて送信ボタンをクリックするとSMSが携帯電話に届きます。
    そのSMSに記載のパスワード(認証番号)を入力し、お問い合わせを完了してください。
    尚、SMSの送信者番号は 0005 202 760 となります。
    これはアットホームの固定番号です。

    備考欄 希望条件、物件案内希望日、質問などがございましたらご記入ください。
    お問い合わせを行う前に「個人情報の取り扱いについて」を必ずお読みください。
    「個人情報の取り扱いについて」に同意いただいた場合は「上記にご同意の上 確認画面へ進む」のボタンをクリックしてください。

    個人情報の取り扱いについて

    皆さまが送付された個人情報はアットホーム(株)のサーバを経由し、お問い合わせ先の不動産会社にメールまたはFAXにて転送されるためアットホーム(株)にも保管されます。アットホーム(株)で保管された個人情報の取り扱いについては、【こちら】をご覧ください。
    また、本画面でご記入いただいた個人情報は、お問い合わせ先の不動産会社でも保管します。 お問い合わせ先の不動産会社が保管する個人情報の取り扱いについては、不動産会社に直接お問い合わせください。

    情報提供会社

    情報提供会社

    シミズ不動産

    長崎県知事免許(2)第3974号

    交通:
    JR佐世保線/日宇駅 徒歩2分
    長崎県佐世保市日宇町661 
    TEL:
    0956-34-0432
    FAX:
    0956-34-5432
    所属団体:
    (公社)長崎県宅地建物取引業協会会員
    (一社)九州不動産公正取引協議会加盟

    取引態様:貸主

    • 会社情報
    • 80502813
    スマートフォンで
    この不動産会社を見る
    QRコード
    • とりあえず保存
    • お問い合わせ
    • 提携サイト等より掲載されている物件情報につきましては、不動産会社詳細情報にリンクされていないものがあります。
    • 物件に関するお問合せは、物件詳細ページの「情報提供会社」に表示されている不動産会社へ直接お願いいたします。
    • 間取図は、現況を優先させていただきます。
    • 映像は物件の一部を撮影したものです。物件の契約にあたっての最終判断はご自身の判断に基づいて行ってください。
    • 仲介手数料について仲介手数料

    アットホームは物件情報の適正化に努めております。 内容に誤りがある場合にはこちらへご連絡ください。

    【埼玉住まい情報】では、日本全国の物件から賃貸マンションや賃貸アパート・賃貸一戸建て等の賃貸住宅情報、新築マンション・分譲マンションや中古マンション等の売買マンション情報、新築一戸建てや中古一戸建てなどの戸建住宅、 土地など、総合的な不動産住宅情報検索サービスを提供致します。
    【埼玉住まい情報】から、選りすぐりの不動産物件を探してみましょう。

    【免責事項】
    このコーナーの運営はアットホーム株式会社(https://www.athome.co.jp/)が行っています。
    このコーナーに掲載している物件情報は、「アットホーム不動産情報ネットワーク」に加盟する不動産会社等(情報提供元)から提供されています。信頼性の高い情報提供が行えるよう、最大限の努力をしておりますが、その内容を保証するものではありません。 利用者のみなさまと各情報提供元との取引に起因する損害および情報が掲載されたことに起因する損害等については、株式会社イーシティ埼玉、およびアットホームは一切責任を負いません。
    各物件情報の内容や画像等はすべて現況を優先させていただきます。
    お取引等(お取引の準備、資金調達等を含みます)の際には、内容や契約条件等について、各情報提供元より十分な説明を受け、ご自身でご確認の上、判断してください。
    このコーナーへの物件情報のご掲載、その他不動産業務ソリューション等についての不動産会社様のお問合せはこちらからお願いいたします。

    物件画像: