京都府京都市左京区吉田下阿達町(神宮丸太町駅)の賃貸:物件詳細
交通 所在地 |
駅徒歩 |
賃料 管理費等 |
敷金/保証金 礼金 |
間取り 面積 |
物件種目 築年月 |
|
京阪鴨東線/神宮丸太町
京都府京都市左京区吉田下阿達町
|
7分
|
10万円
なし
|
なし / なし
2ヶ月
|
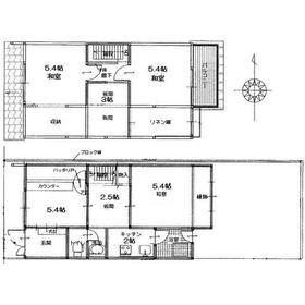
5DK
80.00m²
|
賃貸テラスハウス
1980年1月(築46年2ヶ月)
|
角部屋、高齢者相談、ルームシェア可、二人入居可、事務所使用可、閑静な住宅街
|
|
間取図
|
外観
|
<
その他の画像
>
|
| 交通 | 京阪鴨東線 神宮丸太町駅 徒歩7分 |
|---|
| その他の交通 | 叡山電鉄叡山本線 出町柳駅 徒歩12分 地下鉄東西線 京都市役所前駅 徒歩17分 |
| 所在地 |
京都府京都市左京区吉田下阿達町
|
| 物件種目 |
賃貸テラスハウス |
| 賃料 |
10万円 |
管理費等 |
なし |
| 敷金 / 保証金 |
なし / なし |
礼金 |
2ヶ月 |
| 敷引 |
- |
保証金償却 |
- |
| その他一時金 |
- |
保険等 |
要 2年 18,000円 |
| 維持費等 |
- |
| 間取り |
5DK(和 5.4・5.4・5.4 洋 5.4・3 DK 4.5) |
専有面積 |
80.00m² |
| 築年月 |
1980年1月(築46年2ヶ月)
|
階建 / 階 |
2階建 |
| 建物構造 |
木造 |
総戸数 |
- |
| 主要採光面 |
東 |
駐車場 |
無 |
| バイク置き場 |
無 |
駐輪場 |
- |
| 建物名・部屋番号 |
吉田下阿達町貸家 北 |
ペット |
-
|
| リフォーム履歴 |
- |
| リノベーション履歴 |
- |
| 備考 |
賃貸保証等:加入要(クレディセゾン(初回保証料:月額総賃料の100%、月額保証料:月額総賃料の1%)))
管理形態/管理員の勤務形態:-/-
現状貸し 築年数不詳
退去告知2ヶ月 1年未満解約違約金1ヶ月分
更新事務手数料10,000円+税
退去時ハウスクリーニング代50,000円+税
除菌消臭代20,000円+税(任意)
書類代10,000円+税
床面積は概算となります
エアコンクリーニング代:9,900円+税または17,100円+税(任意)
|
| エネルギー消費性能 |
- |
| 断熱性能 |
- |
| 目安光熱費 |
- |
| バス・トイレ |
バス・トイレ別、シャワー付洗面化粧台、洗面所独立、シャワー、温水洗浄便座、トイレ |
| キッチン |
システムキッチン、ガスコンロ可 |
| セキュリティー |
- |
| 収納 |
収納スペース |
| 設備・サービス |
給湯、フローリング、都市ガス |
| TV・通信 |
- |
| その他 |
庭、バルコニー |
| 契約期間 |
2年 |
現況 |
居住中 |
| 条件等 |
- |
入居可能時期 |
2026年4月中旬予定 |
| 仲介手数料 |
1.1ヶ月 |
|
|
| 更新料 |
新賃料 1ヶ月 |
物件番号 |
6962133207 |
| 情報公開日 |
2026年1月31日 |
次回更新予定日 |
2026年3月4日 |
| ケータイ用バーコード |
- スマートフォンでこの物件を見る
- スマートフォンからもこの物件をご覧になれます。
|
※「-」と表示されている項目については、情報提供会社にご確認ください。
| 周辺施設 |
フレスコ河原町丸太町店 |
| 距離 |
855m |
写真を見る |
| 周辺施設 |
ローソンサテライト京都大学南西店 |
| 距離 |
669m |
写真を見る |
| 周辺施設 |
京都市立近衛中学校 |
| 距離 |
555m |
写真を見る |
| 周辺施設 |
京都市立第四錦林小学校 |
| 距離 |
429m |
写真を見る |
| 周辺施設 |
京都大学医学部附属病院 |
| 距離 |
646m |
写真を見る |
ここから簡単にお問い合わせをすることができます。
(SSLでの暗号化での送信を希望されるお客さまは
こちら
よりお問い合わせください)
お問い合わせを行う前に
「個人情報の取り扱いについて」を必ずお読みください。
「個人情報の取り扱いについて」に同意いただいた場合は「上記にご同意の上 確認画面へ進む」のボタンをクリックしてください。
個人情報の取り扱いについて
皆さまが送付された個人情報はアットホーム(株)のサーバを経由し、お問い合わせ先の不動産会社にメールまたはFAXにて転送されるためアットホーム(株)にも保管されます。アットホーム(株)で保管された個人情報の取り扱いについては、【こちら】をご覧ください。
また、本画面でご記入いただいた個人情報は、お問い合わせ先の不動産会社でも保管します。 お問い合わせ先の不動産会社が保管する個人情報の取り扱いについては、不動産会社に直接お問い合わせください。
京都府知事免許(3)第13041号 |
|---|
- 交通:
- 地下鉄烏丸線/烏丸御池駅 徒歩2分
- 京都府京都市中京区御池通高倉西入高宮町206 御池ビル2階-D
- TEL:
- 0120-960-000
- FAX:
- 075-241-7820
- 所属団体:
- (公社)京都府宅地建物取引業協会会員(公社)近畿地区不動産公正取引協議会加盟
取引態様:仲介  - 50026680
|
- スマートフォンで
この不動産会社を見る

|
- 提携サイト等より掲載されている物件情報につきましては、不動産会社詳細情報にリンクされていないものがあります。
- 物件に関するお問合せは、物件詳細ページの「情報提供会社」に表示されている不動産会社へ直接お願いいたします。
- 間取図は、現況を優先させていただきます。
- 映像は物件の一部を撮影したものです。物件の契約にあたっての最終判断はご自身の判断に基づいて行ってください。
- 仲介手数料について

アットホームは物件情報の適正化に努めております。
内容に誤りがある場合にはこちらへご連絡ください。