福島県伊達市保原町字油谷地(上保原駅)の賃貸:物件詳細
交通 所在地 |
駅徒歩 |
賃料 管理費等 |
敷金/保証金 礼金 |
間取り 面積 |
物件種目 築年月 |
|
阿武隈急行/上保原
福島県伊達市保原町字油谷地
|
10分
|
5.9万円
2,000円
|
1ヶ月 / なし
1ヶ月
|
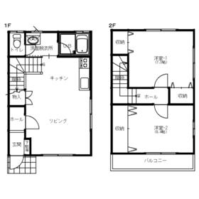
2LDK
62.10m²
|
賃貸アパート
2017年5月(築8年10ヶ月)
|
駐車場2台分、メゾネット、IT重説対応物件
|
|
間取図
|
外観
|
その他の画像
|
| 交通 | 阿武隈急行 上保原駅 徒歩10分 |
| 所在地 |
福島県伊達市保原町字油谷地
|
| 物件種目 |
賃貸アパート |
| 賃料 |
5.9万円 |
管理費等 |
2,000円 |
| 敷金 / 保証金 |
1ヶ月 / なし |
礼金 |
1ヶ月 |
| 敷引 |
- |
保証金償却 |
- |
| その他一時金 |
- |
保険等 |
要 2年 25,000円 家財 |
| 維持費等 |
- |
| 間取り |
2LDK(洋 7.3・6.4) |
専有面積 |
62.10m² |
| 築年月 |
2017年5月(築8年10ヶ月)
|
階建 / 階 |
2階建 / メゾネット1階~2階部分 |
| 建物構造 |
木造 |
総戸数 |
- |
| 主要採光面 |
|
駐車場 |
有 1,000円/月 |
| バイク置き場 |
- |
駐輪場 |
- |
| 建物名・部屋番号 |
KENハウス 2 |
ペット |
-
|
| リフォーム履歴 |
- |
| リノベーション履歴 |
- |
| 備考 |
管理形態/管理員の勤務形態:-/-
IT重説対応物件
駐車場2台目1,500円
写真は反転している場合がございます。
|
| エネルギー消費性能 |
- |
| 断熱性能 |
- |
| 目安光熱費 |
- |
| バス・トイレ |
バス・トイレ別、浴室乾燥機、追焚機能、洗面台、シャワー、温水洗浄便座、トイレ |
| キッチン |
ガスコンロ可 |
| セキュリティー |
モニター付インターホン、ダブルロックドア |
| 収納 |
全居室収納、クローゼット、シューズボックス |
| 設備・サービス |
室内洗濯機置場、エアコン、照明器具 |
| TV・通信 |
- |
| その他 |
バルコニー |
| 契約期間 |
2年 |
現況 |
空家 |
| 条件等 |
- |
入居可能時期 |
相談 |
| 仲介手数料 |
6.49万円 |
|
|
| 更新料 |
- |
物件番号 |
6963071949 |
| 情報公開日 |
2024年7月12日 |
次回更新予定日 |
2026年2月17日 |
| ケータイ用バーコード |
- スマートフォンでこの物件を見る
- スマートフォンからもこの物件をご覧になれます。
|
※「-」と表示されている項目については、情報提供会社にご確認ください。
| 周辺施設 |
セブンイレブン保原一丁目店 |
| 距離 |
520m |
| 周辺施設 |
認定こども園上保原上保原保育園 |
| 距離 |
991m |
ここから簡単にお問い合わせをすることができます。
(SSLでの暗号化での送信を希望されるお客さまは
こちら
よりお問い合わせください)
お問い合わせを行う前に
「個人情報の取り扱いについて」を必ずお読みください。
「個人情報の取り扱いについて」に同意いただいた場合は「上記にご同意の上 確認画面へ進む」のボタンをクリックしてください。
個人情報の取り扱いについて
皆さまが送付された個人情報はアットホーム(株)のサーバを経由し、お問い合わせ先の不動産会社にメールまたはFAXにて転送されるためアットホーム(株)にも保管されます。アットホーム(株)で保管された個人情報の取り扱いについては、【こちら】をご覧ください。
また、本画面でご記入いただいた個人情報は、お問い合わせ先の不動産会社でも保管します。 お問い合わせ先の不動産会社が保管する個人情報の取り扱いについては、不動産会社に直接お問い合わせください。
福島県知事免許(10)第10251号 |
|---|
- 交通:
- 阿武隈急行/保原駅 徒歩20分 【バス】10分 保原小学校前 停歩1分
- 福島県伊達市保原町字泉町95-1
- TEL:
- 024-575-5001
- FAX:
- 024-575-5050
- 所属団体:
- (公社)福島県宅地建物取引業協会会員東北地区不動産公正取引協議会加盟
取引態様:仲介  - 20002688
|
- スマートフォンで
この不動産会社を見る

|
- 提携サイト等より掲載されている物件情報につきましては、不動産会社詳細情報にリンクされていないものがあります。
- 物件に関するお問合せは、物件詳細ページの「情報提供会社」に表示されている不動産会社へ直接お願いいたします。
- 間取図は、現況を優先させていただきます。
- 映像は物件の一部を撮影したものです。物件の契約にあたっての最終判断はご自身の判断に基づいて行ってください。
- 仲介手数料について

アットホームは物件情報の適正化に努めております。
内容に誤りがある場合にはこちらへご連絡ください。