千葉県君津市東坂田2丁目(君津駅)の賃貸:物件詳細
交通 所在地 |
駅徒歩 |
賃料 管理費等 |
敷金/保証金 礼金 |
間取り 面積 |
物件種目 築年月 |
|
JR内房線/君津
千葉県君津市東坂田2丁目
|
3分
|
5.5万円
3,000円
|
1ヶ月 / なし
1ヶ月
|
1DK
51.75m²
|
賃貸マンション
1977年10月(築48年5ヶ月)
|
楽器相談、角部屋、最上階、高齢者相談、ルームシェア可、二人入居可、事務所使用可、SOHO向き、2面採光、オール電化、外観タイル張り、前面棟無、隣接建物距離2m以上
|
|
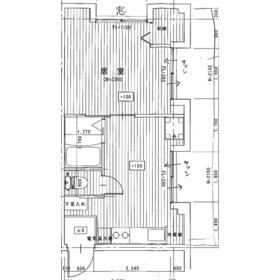
間取図
|
外観
重厚な外観 鉄筋コンクリート造4階建て エレベーター完備 日勤管理人駐在
|
<
その他の画像
>
|
| 交通 | JR内房線 君津駅 徒歩3分 |
| 所在地 |
千葉県君津市東坂田2丁目
|
| 物件種目 |
賃貸マンション |
| 賃料 |
5.5万円 |
管理費等 |
3,000円 |
| 敷金 / 保証金 |
1ヶ月 / なし |
礼金 |
1ヶ月 |
| 敷引 |
- |
保証金償却 |
- |
| その他一時金 |
鍵交換代等:17,600円~ |
保険等 |
要 2年 20,000円 借家人賠償家財 |
| 維持費等 |
ゴミ処分代:2,200円/月、水道代:3,850円/月 |
| 間取り |
1DK(洋 6.6 DK 7.5) |
専有面積 |
51.75m² |
| 築年月 |
1977年10月(築48年5ヶ月)
|
階建 / 階 |
地上4階地下1階建 / 4階 |
| 建物構造 |
RC |
総戸数 |
- |
| 主要採光面 |
北西 |
駐車場 |
近有 4,320円/月 |
| バイク置き場 |
無 |
駐輪場 |
無 |
| 建物名・部屋番号 |
富士グレースビル 403 |
ペット |
-
|
| リフォーム履歴 |
- |
| リノベーション履歴 |
2017年5月 室内、及び共用部全面リニューアル! ※実施年月は最も古い履歴を表示 |
| 備考 |
賃貸保証等:加入要(初回:総賃料の50% 月々:総賃料の1.0%)
管理形態/管理員の勤務形態:-/日勤
バルコニー:24m²
外壁コンクリート、区画整理地内、管理人日勤
君津駅歩3分 高速バス停歩5分
最上階角部屋エレベーター付、広~いバルコニー24㎡、近隣商業施設多数、RC造4階建
|
| エネルギー消費性能 |
- |
| 断熱性能 |
- |
| 目安光熱費 |
- |
| バス・トイレ |
バス・トイレ別、シャワー、温水洗浄便座 |
| キッチン |
システムキッチン、IHクッキングヒーター、2口コンロ |
| セキュリティー |
モニター付インターホン、ディンプルキー、防犯カメラ、火災警報器(報知機) |
| 収納 |
全居室収納、クローゼット、シューズボックス |
| 設備・サービス |
室内洗濯機置場、給湯、室内物干し、クッションフロア、エアコン、照明器具 |
| TV・通信 |
光ファイバー |
| その他 |
ワイドバルコニー、ルーフバルコニー、エレベーター |
| 契約期間 |
2年 |
現況 |
空家 |
| 条件等 |
- |
入居可能時期 |
相談 |
| 仲介手数料 |
1ヶ月 |
|
|
| 更新料 |
新賃料 1ヶ月 |
物件番号 |
6963533494 |
| 情報公開日 |
2026年1月13日 |
次回更新予定日 |
2026年2月19日 |
| ケータイ用バーコード |
- スマートフォンでこの物件を見る
- スマートフォンからもこの物件をご覧になれます。
|
※「-」と表示されている項目については、情報提供会社にご確認ください。
| 周辺施設 |
JR君津駅徒歩3分 南口から高速バス発着 東京まで直通 東京駅と新宿駅行き 座って行けます |
| 距離 |
240m |
写真を見る |
| 周辺施設 |
VERY FOODS尾張屋君津店 すぐ隣り 食材買い出しに困りません |
| 距離 |
10m |
写真を見る |
| 周辺施設 |
坂田駅前公園 すぐ目の前です 静かでゆったりした公園です お部屋の窓やバルコニーからも眺められます |
| 距離 |
10m |
写真を見る |
| 周辺施設 |
君津市市営坂田駐車場 すぐ目の前です 来客時もこれで安心 時間貸し対応 広い駐車場 公営で安いです |
| 距離 |
12m |
写真を見る |
| 周辺施設 |
ローソン君津東坂田二丁目店 徒歩2分 駐車場対応の広いコンビニ 車での通勤、帰宅時にも丁度寄れます |
| 距離 |
207m |
写真を見る |
| 周辺施設 |
タリーズコーヒー君津駅前店 徒歩3分 気分転換に宜しいかと思われます |
| 距離 |
240m |
写真を見る |
| 周辺施設 |
博文堂書店君津店 徒歩3分 息抜きに宜しいかと思われます 書店が近くにあると安心感もあると思います |
| 距離 |
240m |
写真を見る |
| 周辺施設 |
医療法人新都市医療研究会君津会玄々堂君津病院 徒歩5分 駐車場も完備 内科外科総合病院 近いと便利 |
| 距離 |
400m |
写真を見る |
ここから簡単にお問い合わせをすることができます。
(SSLでの暗号化での送信を希望されるお客さまは
こちら
よりお問い合わせください)
お問い合わせを行う前に
「個人情報の取り扱いについて」を必ずお読みください。
「個人情報の取り扱いについて」に同意いただいた場合は「上記にご同意の上 確認画面へ進む」のボタンをクリックしてください。
個人情報の取り扱いについて
皆さまが送付された個人情報はアットホーム(株)のサーバを経由し、お問い合わせ先の不動産会社にメールまたはFAXにて転送されるためアットホーム(株)にも保管されます。アットホーム(株)で保管された個人情報の取り扱いについては、【こちら】をご覧ください。
また、本画面でご記入いただいた個人情報は、お問い合わせ先の不動産会社でも保管します。 お問い合わせ先の不動産会社が保管する個人情報の取り扱いについては、不動産会社に直接お問い合わせください。
千葉県知事免許(3)第16829号 |
|---|
- 交通:
- JR内房線/君津駅 徒歩6分
- 千葉県君津市東坂田3丁目3-15 富士クラスタービル
- TEL:
- 0439-27-0241
- FAX:
- 0439-27-1608
- 所属団体:
- (公社)全日本不動産協会会員(公社)首都圏不動産公正取引協議会加盟
取引態様:仲介  - 00260613
|
- スマートフォンで
この不動産会社を見る

|
- 提携サイト等より掲載されている物件情報につきましては、不動産会社詳細情報にリンクされていないものがあります。
- 物件に関するお問合せは、物件詳細ページの「情報提供会社」に表示されている不動産会社へ直接お願いいたします。
- 間取図は、現況を優先させていただきます。
- 映像は物件の一部を撮影したものです。物件の契約にあたっての最終判断はご自身の判断に基づいて行ってください。
- 仲介手数料について

アットホームは物件情報の適正化に努めております。
内容に誤りがある場合にはこちらへご連絡ください。