神奈川県横浜市保土ケ谷区岡沢町(三ツ沢上町駅)の賃貸:物件詳細
交通 所在地 |
駅徒歩 |
賃料 管理費等 |
敷金/保証金 礼金 |
間取り 面積 |
物件種目 築年月 |
|
ブルーライン/三ツ沢上町
神奈川県横浜市保土ケ谷区岡沢町
|
14分
|
5.8万円
3,000円
|
なし / なし
なし
|
1K
17.39m²
|
賃貸アパート
2017年12月(築8年3ヶ月)
|
角部屋
|
|
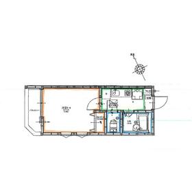
間取図
|
外観
|
その他の画像
|
| 交通 | ブルーライン 三ツ沢上町駅 徒歩14分 |
|---|
| その他の交通 | 相鉄本線 星川駅 徒歩23分 相鉄本線 和田町駅 徒歩24分 |
| 所在地 |
神奈川県横浜市保土ケ谷区岡沢町
|
| 物件種目 |
賃貸アパート |
| 賃料 |
5.8万円 |
管理費等 |
3,000円 |
| 敷金 / 保証金 |
なし / なし |
礼金 |
なし |
| 敷引 |
- |
保証金償却 |
- |
| その他一時金 |
ルームクリーニング費用:32,400円 |
保険等 |
要 2年 15,000円 |
| 維持費等 |
- |
| 間取り |
1K(洋 5.3) |
専有面積 |
17.39m² |
| 築年月 |
2017年12月(築8年3ヶ月)
|
階建 / 階 |
2階建 / 1階 |
| 建物構造 |
木造 |
総戸数 |
- |
| 主要採光面 |
西 |
駐車場 |
- |
| バイク置き場 |
- |
駐輪場 |
- |
| 建物名・部屋番号 |
104 |
ペット |
-
|
| アピールポイント |
台風にも強くプライバシーも守れるシャッター雨戸付、更に多重の安全機能が心強いIHクッキングヒーターなので、拭き掃除のみでキレイなコンロをキープできます。また転居後のネット接続がスムーズに行えるインターネット使用料無料の物件で、その上外出が多い生活で重宝する浴室乾燥機付だから、悩ましい梅雨のシーズンで大活躍します。ちなみにおとなりさんの生活音が軽減される角部屋です。お金のこと、暮らしを考えるのと同じくらい大事ですよね?礼金敷金(保証金)0円。使い勝手のよい1K。ご案内いたしますのでお気軽にご連絡ください。 |
| リフォーム履歴 |
- |
| リノベーション履歴 |
- |
| 備考 |
賃貸保証等:加入要(契約時賃料の30%)
管理形態/管理員の勤務形態:-/-
|
| エネルギー消費性能 |
- |
| 断熱性能 |
- |
| 目安光熱費 |
- |
| バス・トイレ |
バス・トイレ別、浴室乾燥機、追焚機能、温水洗浄便座 |
| キッチン |
IHクッキングヒーター |
| セキュリティー |
シャッター雨戸 |
| 収納 |
クローゼット、シューズボックス |
| 設備・サービス |
室内洗濯機置場、プロパンガス、エアコン、照明器具 |
| TV・通信 |
インターネット使用料無料 |
| その他 |
バルコニー |
| 契約期間 |
2年 |
現況 |
空家 |
| 条件等 |
- |
入居可能時期 |
即時 |
| 仲介手数料 |
1ヶ月 |
|
|
| 更新料 |
新賃料 1ヶ月 |
物件番号 |
6964720906 |
| 情報公開日 |
2026年1月22日 |
次回更新予定日 |
2026年2月5日 |
| ケータイ用バーコード |
- スマートフォンでこの物件を見る
- スマートフォンからもこの物件をご覧になれます。
|
※「-」と表示されている項目については、情報提供会社にご確認ください。
ここから簡単にお問い合わせをすることができます。
(SSLでの暗号化での送信を希望されるお客さまは
こちら
よりお問い合わせください)
お問い合わせを行う前に
「個人情報の取り扱いについて」を必ずお読みください。
「個人情報の取り扱いについて」に同意いただいた場合は「上記にご同意の上 確認画面へ進む」のボタンをクリックしてください。
個人情報の取り扱いについて
皆さまが送付された個人情報はアットホーム(株)のサーバを経由し、お問い合わせ先の不動産会社にメールまたはFAXにて転送されるためアットホーム(株)にも保管されます。アットホーム(株)で保管された個人情報の取り扱いについては、【こちら】をご覧ください。
また、本画面でご記入いただいた個人情報は、お問い合わせ先の不動産会社でも保管します。 お問い合わせ先の不動産会社が保管する個人情報の取り扱いについては、不動産会社に直接お問い合わせください。
神奈川県知事免許(5)第25057号 |
|---|
- 交通:
- 相鉄本線/星川駅 徒歩5分
- 神奈川県横浜市保土ケ谷区峰岡町1丁目21-5-102
- TEL:
- 045-338-1717
- FAX:
- 045-333-5166
- 所属団体:
- (公社)神奈川県宅地建物取引業協会会員(公社)首都圏不動産公正取引協議会加盟
取引態様:仲介  - 00440085
|
- スマートフォンで
この不動産会社を見る

|
- 提携サイト等より掲載されている物件情報につきましては、不動産会社詳細情報にリンクされていないものがあります。
- 物件に関するお問合せは、物件詳細ページの「情報提供会社」に表示されている不動産会社へ直接お願いいたします。
- 間取図は、現況を優先させていただきます。
- 映像は物件の一部を撮影したものです。物件の契約にあたっての最終判断はご自身の判断に基づいて行ってください。
- 仲介手数料について

アットホームは物件情報の適正化に努めております。
内容に誤りがある場合にはこちらへご連絡ください。