神奈川県横浜市金沢区六浦1丁目(金沢八景駅)の賃貸:物件詳細
				
					
					
				
														
	
		
			
				交通 所在地 | 
				駅徒歩 | 
				賃料 管理費等 | 
				敷金/保証金 礼金 | 
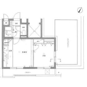
				間取り 面積 | 
				物件種目 築年月 | 
			
		
		
			
								| 
					 シーサイドライン/金沢八景
											 
					神奈川県横浜市金沢区六浦1丁目 
				 | 
								
					 7分 
				 | 
								
					 8.5万円 
					- 
				 | 
								
					 1ヶ月 / なし 
					1ヶ月 
				 | 
								
					 1LDK 
					35.77m² 
				 | 
								
					 賃貸マンション 
					1989年11月(築36年1ヶ月)
																				 
				 | 
			
						
				 角部屋、最上階
  | 
			
					
	
		
		
		
					| 
			 間取図 
			
			
			
			
			
		 | 
		
			 外観 
			
			
			
			
			
		 | 
				
		
		
			
				
										<
										
						
							 
							その他の画像
						 
					 
					
										>
									 
				
			 
		 | 
	
				
 
	
		
			
																			          | 交通 | シーサイドライン 金沢八景駅 徒歩7分  | 
|---|
| その他の交通 | 京急本線 金沢八景駅 徒歩7分 シーサイドライン 金沢八景駅 徒歩7分  | 
			
				| 所在地 | 
				
					神奈川県横浜市金沢区六浦1丁目
				 | 
			
			
				| 物件種目 | 
				賃貸マンション | 
			
		
		
			
				| 賃料 | 
				8.5万円 | 
				管理費等 | 
				- | 
			
			
				| 敷金 / 保証金 | 
				1ヶ月 / なし | 
				礼金 | 
				1ヶ月 | 
			
			
				| 敷引 | 
				- | 
				保証金償却 | 
				- | 
			
			
				| その他一時金 | 
				コンシェルジュ24/2年間:16,500円 | 
				保険等 | 
				要 2年 20,400円 | 
			
						
				| 維持費等 | 
				- | 
			
					
		
			
				| 間取り | 
				1LDK | 
				専有面積 | 
				35.77m² | 
			
			
				| 築年月 | 
				1989年11月(築36年1ヶ月)
												 | 
				階建 / 階 | 
				4階建 / 4階 | 
			
			
				| 建物構造 | 
				RC | 
				総戸数 | 
				- | 
			
			
				| 主要採光面 | 
				 | 
				駐車場 | 
				- | 
			
			
				| バイク置き場 | 
				- | 
				駐輪場 | 
				- | 
			
			
				| 建物名・部屋番号 | 
				ライオンズマンション金沢八景第8 | 
				ペット | 
				
								-
								 | 
			
						
				| リフォーム履歴 | 
				- | 
			
			
				| リノベーション履歴 | 
				- | 
			
			
				| 備考 | 
				
					 
																	賃貸保証等:加入要(アーク賃貸保証・初回賃料80%)
											 						管理形態/管理員の勤務形態:-/-
										 
					
				 | 
			
		
				
		
		| エネルギー消費性能 | 
		- | 
	
	
		| 断熱性能 | 
		- | 
	
	
		| 目安光熱費 | 
		- | 
	
	
		
									
				| バス・トイレ | 
				バス・トイレ別 | 
			
						
				| キッチン | 
				システムキッチン | 
			
						
				| セキュリティー | 
				- | 
			
						
				| 収納 | 
				- | 
			
						
				| 設備・サービス | 
				室内洗濯機置場、都市ガス | 
			
						
				| TV・通信 | 
				- | 
			
						
				| その他 | 
				バルコニー、エレベーター | 
			
					
		
			
				| 契約期間 | 
				2年 | 
				現況 | 
				空家 | 
			
			
				| 条件等 | 
				- | 
				入居可能時期 | 
				相談 | 
			
						
				| 更新料 | 
				新賃料 1ヶ月 | 
				物件番号 | 
				6965639830 | 
			
			
				| 情報公開日 | 
				2025年10月12日 | 
				次回更新予定日 | 
				2025年11月9日 | 
			
						
				| ケータイ用バーコード | 
				
				
					
					
						
							- スマートフォンでこの物件を見る
 
							- スマートフォンからもこの物件をご覧になれます。
 
						 
					 
				 
				 | 
			
					
	 
	 									※「-」と表示されている項目については、情報提供会社にご確認ください。
						
	
			
			
			
				
					
						
							| 周辺施設 | 
							京急ストア金沢八景店 | 
						
						
							| 距離 | 
							597m | 
							写真を見る | 						
					
				
			 
		 
					
			
				
					
						
							| 周辺施設 | 
							イオン金沢八景店 | 
						
						
							| 距離 | 
							991m | 
							写真を見る | 						
					
				
			 
		 
		 
				
			
			
				
					
						
							| 周辺施設 | 
							ローソンストア100金沢六浦一丁目店 | 
						
						
							| 距離 | 
							467m | 
							写真を見る | 						
					
				
			 
		 
					
			
				
					
						
							| 周辺施設 | 
							ファミリーマート金沢柳町店 | 
						
						
							| 距離 | 
							490m | 
							写真を見る | 						
					
				
			 
		 
		 
				
			
			
				
					
						
							| 周辺施設 | 
							ゲオ横浜六浦店 | 
						
						
							| 距離 | 
							499m | 
							写真を見る | 						
					
				
			 
		 
					
			
				
					
						
							| 周辺施設 | 
							クリエイトエス・ディー六浦中学校入口店 | 
						
						
							| 距離 | 
							508m | 
							写真を見る | 						
					
				
			 
		 
		 
				
			
			
				
					
						
							| 周辺施設 | 
							私立関東学院大学 | 
						
						
							| 距離 | 
							813m | 
							写真を見る | 						
					
				
			 
		 
					
			
				
					
						
							| 周辺施設 | 
							横浜市立大学 | 
						
						
							| 距離 | 
							1097m | 
							写真を見る | 						
					
				
			 
		 
		 
		 									
												
					
					  ここから簡単にお問い合わせをすることができます。
(SSLでの暗号化での送信を希望されるお客さまは
													こちら
											  よりお問い合わせください)
					  
					
						
						
					
					お問い合わせを行う前に
「個人情報の取り扱いについて」を必ずお読みください。
「個人情報の取り扱いについて」に同意いただいた場合は「上記にご同意の上 確認画面へ進む」のボタンをクリックしてください。 
 
					
					
						個人情報の取り扱いについて
						皆さまが送付された個人情報はアットホーム(株)のサーバを経由し、お問い合わせ先の不動産会社にメールまたはFAXにて転送されるためアットホーム(株)にも保管されます。アットホーム(株)で保管された個人情報の取り扱いについては、【こちら】をご覧ください。
						また、本画面でご記入いただいた個人情報は、お問い合わせ先の不動産会社でも保管します。 お問い合わせ先の不動産会社が保管する個人情報の取り扱いについては、不動産会社に直接お問い合わせください。
					 
				 
				
														
				  
				  
					神奈川県知事免許(9)第16436号  | 
|---|
- 交通:
 - 京急本線/金沢八景駅 徒歩4分
 - 神奈川県横浜市金沢区瀬戸5-2 ローズマンション1F
 - TEL:
 - 045-782-0320
 - FAX:
 - 045-781-1179
 - 所属団体:
 - (公社)神奈川県宅地建物取引業協会会員(公社)首都圏不動産公正取引協議会加盟
 
 取引態様:仲介  - 00850001
 
  | 
						  						  
							
							  
								- スマートフォンで
 この不動産会社を見る 
								    
							   
							 
						   | 
						  						
					  
					 
				   
				 
							
						
												
			
					
- 提携サイト等より掲載されている物件情報につきましては、不動産会社詳細情報にリンクされていないものがあります。
 
- 物件に関するお問合せは、物件詳細ページの「情報提供会社」に表示されている不動産会社へ直接お願いいたします。
 
- 間取図は、現況を優先させていただきます。
 
- 映像は物件の一部を撮影したものです。物件の契約にあたっての最終判断はご自身の判断に基づいて行ってください。
 
- 仲介手数料について

 
アットホームは物件情報の適正化に努めております。
内容に誤りがある場合にはこちらへご連絡ください。