愛知県名古屋市千種区池下1丁目(池下駅)の賃貸:物件詳細
交通 所在地 |
駅徒歩 |
賃料 管理費等 |
敷金/保証金 礼金 |
間取り 面積 |
物件種目 築年月 |
|
名古屋市東山線/池下
愛知県名古屋市千種区池下1丁目
|
3分
|
6.5万円
8,000円
|
なし / なし
なし
|
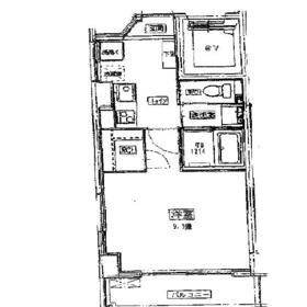
1K
31.69m²
|
賃貸マンション
2009年12月(築16年6ヶ月)
|
ペット相談
|
|
間取図
|
外観
|
<
その他の画像
>
|
| 交通 | 名古屋市東山線 池下駅 徒歩3分 |
|---|
| その他の交通 | 名古屋市東山線 今池駅 徒歩10分 名古屋市桜通線 今池駅 徒歩13分 |
| 所在地 |
愛知県名古屋市千種区池下1丁目
|
| 物件種目 |
賃貸マンション |
| 賃料 |
6.5万円 |
管理費等 |
8,000円 |
| 敷金 / 保証金 |
なし / なし |
礼金 |
なし |
| 敷引 |
- |
保証金償却 |
- |
| その他一時金 |
修繕費:65,000円 |
保険等 |
要 借家人賠償 |
| 維持費等 |
- |
| 間取り |
1K(洋 9.3) |
専有面積 |
31.69m² |
| 築年月 |
2009年12月(築16年6ヶ月)
|
階建 / 階 |
8階建 / 4階 |
| 建物構造 |
RC |
総戸数 |
- |
| 主要採光面 |
|
駐車場 |
空無 |
| バイク置き場 |
- |
駐輪場 |
- |
| 建物名・部屋番号 |
|
ペット |
小型犬可・ 猫可・ 修繕分担金2.5ケ月必要 |
| リフォーム履歴 |
- |
| リノベーション履歴 |
- |
| 備考 |
管理形態/管理員の勤務形態:-/-
|
| エネルギー消費性能 |
- |
| 断熱性能 |
- |
| 目安光熱費 |
- |
| バス・トイレ |
バス・トイレ別、洗面台、温水洗浄便座 |
| キッチン |
IHクッキングヒーター |
| セキュリティー |
オートロック、ダブルロックドア |
| 収納 |
クローゼット、シューズボックス |
| 設備・サービス |
室内洗濯機置場、エアコン |
| TV・通信 |
CS |
| その他 |
宅配BOX、エレベーター |
| 契約期間 |
2年 |
現況 |
空家 |
| 条件等 |
- |
入居可能時期 |
2026年4月下旬予定 |
| 更新料 |
なし |
物件番号 |
6966108970 |
| 情報公開日 |
2026年1月26日 |
次回更新予定日 |
2026年5月21日 |
| ケータイ用バーコード |
- スマートフォンでこの物件を見る
- スマートフォンからもこの物件をご覧になれます。
|
※「-」と表示されている項目については、情報提供会社にご確認ください。
| 周辺施設 |
ファミリーマート池下駅前店 |
| 距離 |
43m |
写真を見る |
| 周辺施設 |
ドトールコーヒーショップ池下店 |
| 距離 |
86m |
| 周辺施設 |
十六銀行池下支店 |
| 距離 |
83m |
写真を見る |
ここから簡単にお問い合わせをすることができます。
(SSLでの暗号化での送信を希望されるお客さまは
こちら
よりお問い合わせください)
お問い合わせを行う前に
「個人情報の取り扱いについて」を必ずお読みください。
「個人情報の取り扱いについて」に同意いただいた場合は「上記にご同意の上 確認画面へ進む」のボタンをクリックしてください。
個人情報の取り扱いについて
皆さまが送付された個人情報はアットホーム(株)のサーバを経由し、お問い合わせ先の不動産会社にメールまたはFAXにて転送されるためアットホーム(株)にも保管されます。アットホーム(株)で保管された個人情報の取り扱いについては、【こちら】をご覧ください。
また、本画面でご記入いただいた個人情報は、お問い合わせ先の不動産会社でも保管します。 お問い合わせ先の不動産会社が保管する個人情報の取り扱いについては、不動産会社に直接お問い合わせください。
愛知県知事免許(8)第16533号 |
|---|
- 交通:
- 【バス】 名鉄バス「北高上」停 停歩1分
- 愛知県日進市香久山1丁目310番地 ベレーザ香久山2F
- TEL:
- 052-805-2888
- FAX:
- 052-805-6886
- 所属団体:
- (公社)愛知県宅地建物取引業協会会員東海不動産公正取引協議会加盟
取引態様:仲介  - 40002268
|
- スマートフォンで
この不動産会社を見る

|
- 提携サイト等より掲載されている物件情報につきましては、不動産会社詳細情報にリンクされていないものがあります。
- 物件に関するお問合せは、物件詳細ページの「情報提供会社」に表示されている不動産会社へ直接お願いいたします。
- 間取図は、現況を優先させていただきます。
- 映像は物件の一部を撮影したものです。物件の契約にあたっての最終判断はご自身の判断に基づいて行ってください。
- 仲介手数料について

アットホームは物件情報の適正化に努めております。
内容に誤りがある場合にはこちらへご連絡ください。