神奈川県川崎市多摩区登戸新町(登戸駅)の賃貸:物件詳細
交通 所在地 |
駅徒歩 |
賃料 管理費等 |
敷金/保証金 礼金 |
間取り 面積 |
物件種目 築年月 |
|
小田急小田原線/登戸
神奈川県川崎市多摩区登戸新町
|
3分
|
9.8万円
1,000円
|
1ヶ月 / なし
1ヶ月
|
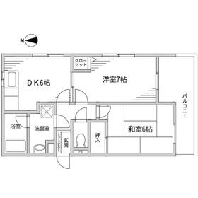
2DK
44.01m²
|
賃貸マンション
1996年3月(築29年10ヶ月)
|
角部屋、南向き、振分
|
|
間取図
|
|
その他の画像
|
| 交通 | 小田急小田原線 登戸駅 徒歩3分 |
|---|
| その他の交通 | JR南武線 登戸駅 徒歩5分 小田急小田原線 向ヶ丘遊園駅 徒歩10分 |
| 所在地 |
神奈川県川崎市多摩区登戸新町
|
| 物件種目 |
賃貸マンション |
| 賃料 |
9.8万円 |
管理費等 |
1,000円 |
| 敷金 / 保証金 |
1ヶ月 / なし |
礼金 |
1ヶ月 |
| 敷引 |
1ヶ月 |
保証金償却 |
- |
| その他一時金 |
なし |
保険等 |
要 2年 21,980円 火災 |
| 維持費等 |
- |
| 間取り |
2DK(和 6 洋 7 DK 6) |
専有面積 |
44.01m² |
| 築年月 |
1996年3月(築29年10ヶ月)
|
階建 / 階 |
3階建 / 1階 |
| 建物構造 |
RC |
総戸数 |
- |
| 主要採光面 |
南 |
駐車場 |
有 15,000円/月 |
| バイク置き場 |
- |
駐輪場 |
有 無料 |
| 建物名・部屋番号 |
|
ペット |
-
|
| リフォーム履歴 |
- |
| リノベーション履歴 |
- |
| 備考 |
管理形態/管理員の勤務形態:-/-
電気ガスは指定会社になります。
|
| エネルギー消費性能 |
- |
| 断熱性能 |
- |
| 目安光熱費 |
- |
| バス・トイレ |
バス・トイレ別、洗面所、シャワー |
| キッチン |
ガスコンロ可 |
| セキュリティー |
- |
| 収納 |
収納スペース、シューズボックス |
| 設備・サービス |
室内洗濯機置場、給湯、フローリング、プロパンガス |
| TV・通信 |
インターネット対応、光ファイバー、ケーブルTV |
| その他 |
バルコニー、駐輪場 |
| 契約期間 |
2年 |
現況 |
空家 |
| 条件等 |
- |
入居可能時期 |
相談 |
| 更新料 |
- |
物件番号 |
6967129991 |
| 情報公開日 |
2025年9月12日 |
次回更新予定日 |
2025年12月19日 |
| ケータイ用バーコード |
- スマートフォンでこの物件を見る
- スマートフォンからもこの物件をご覧になれます。
|
※「-」と表示されている項目については、情報提供会社にご確認ください。
| 周辺施設 |
まいばすけっと向ヶ丘遊園駅北店 |
| 距離 |
663m |
| 周辺施設 |
セブンイレブン川崎登戸新町店 |
| 距離 |
140m |
| 周辺施設 |
ドトールコーヒーショップ小田急登戸店 |
| 距離 |
285m |
| 周辺施設 |
クスリのナカヤマ薬局 登戸新町店 |
| 距離 |
73m |
ここから簡単にお問い合わせをすることができます。
(SSLでの暗号化での送信を希望されるお客さまは
こちら
よりお問い合わせください)
お問い合わせを行う前に
「個人情報の取り扱いについて」を必ずお読みください。
「個人情報の取り扱いについて」に同意いただいた場合は「上記にご同意の上 確認画面へ進む」のボタンをクリックしてください。
個人情報の取り扱いについて
皆さまが送付された個人情報はアットホーム(株)のサーバを経由し、お問い合わせ先の不動産会社にメールまたはFAXにて転送されるためアットホーム(株)にも保管されます。アットホーム(株)で保管された個人情報の取り扱いについては、【こちら】をご覧ください。
また、本画面でご記入いただいた個人情報は、お問い合わせ先の不動産会社でも保管します。 お問い合わせ先の不動産会社が保管する個人情報の取り扱いについては、不動産会社に直接お問い合わせください。
神奈川県知事免許(3)第27941号 |
|---|
- 交通:
- 東急田園都市線/梶が谷駅 徒歩5分
- 神奈川県川崎市高津区末長1丁目43-17 ジラソーレ101
- TEL:
- 044-577-4130
- FAX:
- 044-767-5042
- 所属団体:
- (公社)全日本不動産協会会員(公社)首都圏不動産公正取引協議会加盟
取引態様:仲介  - 00109916
|
- スマートフォンで
この不動産会社を見る

|
- 提携サイト等より掲載されている物件情報につきましては、不動産会社詳細情報にリンクされていないものがあります。
- 物件に関するお問合せは、物件詳細ページの「情報提供会社」に表示されている不動産会社へ直接お願いいたします。
- 間取図は、現況を優先させていただきます。
- 映像は物件の一部を撮影したものです。物件の契約にあたっての最終判断はご自身の判断に基づいて行ってください。
- 仲介手数料について

アットホームは物件情報の適正化に努めております。
内容に誤りがある場合にはこちらへご連絡ください。