東京都世田谷区梅丘1丁目(梅ヶ丘駅)の賃貸:物件詳細
交通 所在地 |
駅徒歩 |
賃料 管理費等 |
敷金/保証金 礼金 |
間取り 面積 |
物件種目 築年月 |
|
小田急小田原線/梅ヶ丘
東京都世田谷区梅丘1丁目
|
4分
|
28万円
20,000円
|
1ヶ月 / なし
2ヶ月
|
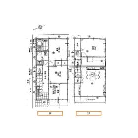
3LDK
73.94m²
|
賃貸一戸建て
2013年1月(築13年2ヶ月)
|
法人契約希望、全室2面採光
|
|
間取図
|
外観
|
その他の画像
|
| 交通 | 小田急小田原線 梅ヶ丘駅 徒歩4分 |
|---|
| その他の交通 | 小田急小田原線 豪徳寺駅 徒歩9分 東急世田谷線 山下駅 徒歩10分 |
| 所在地 |
東京都世田谷区梅丘1丁目
|
| 物件種目 |
賃貸一戸建て |
| 賃料 |
28万円 |
管理費等 |
20,000円 |
| 敷金 / 保証金 |
1ヶ月 / なし |
礼金 |
2ヶ月 |
| 敷引 |
- |
保証金償却 |
- |
| その他一時金 |
鍵交換代等:32,400円~ |
保険等 |
要 2年 20,000円 あいおいニッセイ |
| 維持費等 |
- |
| 間取り |
3LDK |
専有面積 |
73.94m² |
| 築年月 |
2013年1月(築13年2ヶ月)
|
階建 / 階 |
2階建 |
| 建物構造 |
木造 |
総戸数 |
- |
| 主要採光面 |
西 |
駐車場 |
有 無料 |
| バイク置き場 |
有 無料 |
駐輪場 |
有 無料 |
| 建物名・部屋番号 |
|
ペット |
-
|
| リフォーム履歴 |
- |
| リノベーション履歴 |
- |
| 備考 |
賃貸保証等:利用可(賃料の100%)
管理形態/管理員の勤務形態:-/-
|
| エネルギー消費性能 |
- |
| 断熱性能 |
- |
| 目安光熱費 |
- |
| バス・トイレ |
バス・トイレ別、浴室乾燥機、オートバス、追焚機能、シャワー付洗面化粧台、洗面所独立、温水洗浄便座、トイレ2ヶ所、トイレ |
| キッチン |
システムキッチン、食器洗浄乾燥機、3口以上コンロ |
| セキュリティー |
モニター付インターホン |
| 収納 |
- |
| 設備・サービス |
室内洗濯機置場、全居室フローリング、フローリング、都市ガス、エアコン、ダウンライト、複層ガラス |
| TV・通信 |
- |
| その他 |
バイク置き場、バルコニー、駐輪場 |
| 契約期間 |
2年 |
現況 |
空家 |
| 条件等 |
- |
入居可能時期 |
相談 |
| 仲介手数料 |
1ヶ月 |
|
|
| 更新料 |
新賃料 1ヶ月 |
物件番号 |
6967721614 |
| 情報公開日 |
2026年1月28日 |
次回更新予定日 |
2026年2月11日 |
| ケータイ用バーコード |
- スマートフォンでこの物件を見る
- スマートフォンからもこの物件をご覧になれます。
|
※「-」と表示されている項目については、情報提供会社にご確認ください。
| 周辺施設 |
OdakyuOX梅ヶ丘店 |
| 距離 |
497m |
| 周辺施設 |
ファミリーマート小浦世田谷梅丘店 |
| 距離 |
131m |
| 周辺施設 |
ココカラファイン梅ヶ丘駅前店 |
| 距離 |
494m |
ここから簡単にお問い合わせをすることができます。
(SSLでの暗号化での送信を希望されるお客さまは
こちら
よりお問い合わせください)
お問い合わせを行う前に
「個人情報の取り扱いについて」を必ずお読みください。
「個人情報の取り扱いについて」に同意いただいた場合は「上記にご同意の上 確認画面へ進む」のボタンをクリックしてください。
個人情報の取り扱いについて
皆さまが送付された個人情報はアットホーム(株)のサーバを経由し、お問い合わせ先の不動産会社にメールまたはFAXにて転送されるためアットホーム(株)にも保管されます。アットホーム(株)で保管された個人情報の取り扱いについては、【こちら】をご覧ください。
また、本画面でご記入いただいた個人情報は、お問い合わせ先の不動産会社でも保管します。 お問い合わせ先の不動産会社が保管する個人情報の取り扱いについては、不動産会社に直接お問い合わせください。
神奈川県知事免許(3)第28576号 |
|---|
- 交通:
- JR東海道本線/川崎駅 徒歩2分
- 神奈川県川崎市幸区大宮町1310 ミューザ川崎2F
- TEL:
- 044-540-0090
- FAX:
- 044-540-0091
- 所属団体:
- (公社)神奈川県宅地建物取引業協会会員不動産公正取引協議会加盟
取引態様:仲介  - 00109055
|
- スマートフォンで
この不動産会社を見る

|
- 提携サイト等より掲載されている物件情報につきましては、不動産会社詳細情報にリンクされていないものがあります。
- 物件に関するお問合せは、物件詳細ページの「情報提供会社」に表示されている不動産会社へ直接お願いいたします。
- 間取図は、現況を優先させていただきます。
- 映像は物件の一部を撮影したものです。物件の契約にあたっての最終判断はご自身の判断に基づいて行ってください。
- 仲介手数料について

アットホームは物件情報の適正化に努めております。
内容に誤りがある場合にはこちらへご連絡ください。