東京都世田谷区下馬5丁目(祐天寺駅)の賃貸:物件詳細
交通 所在地 |
駅徒歩 |
賃料 管理費等 |
敷金/保証金 礼金 |
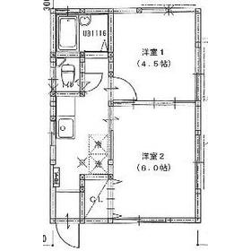
間取り 面積 |
物件種目 築年月 |
|
東急東横線/祐天寺
東京都世田谷区下馬5丁目
|
10分
|
9.3万円
3,000円
|
なし / なし
なし
|
2K
29.67m²
|
賃貸アパート
1971年2月(築54年10ヶ月)
|
角部屋、二人入居可、2面採光
|
|
間取図
|
外観
|
<
その他の画像
>
|
| 交通 | 東急東横線 祐天寺駅 徒歩10分 |
|---|
| その他の交通 | 東急東横線 学芸大学駅 徒歩13分 東急田園都市線 三軒茶屋駅 徒歩22分 |
| 所在地 |
東京都世田谷区下馬5丁目
|
| 物件種目 |
賃貸アパート |
| 賃料 |
9.3万円 |
管理費等 |
3,000円 |
| 敷金 / 保証金 |
なし / なし |
礼金 |
なし |
| 敷引 |
- |
保証金償却 |
- |
| その他一時金 |
鍵交換代等:33,000円~ |
保険等 |
要 |
| 維持費等 |
- |
| 間取り |
2K |
専有面積 |
29.67m² |
| 築年月 |
1971年2月(築54年10ヶ月)
|
階建 / 階 |
2階建 / 1階 |
| 建物構造 |
木造 |
総戸数 |
- |
| 主要採光面 |
|
駐車場 |
- |
| バイク置き場 |
- |
駐輪場 |
有 無料 |
| 建物名・部屋番号 |
ノイエ下馬 1D |
ペット |
-
|
| アピールポイント |
こういうコストって意外とばかになりません・・・礼金敷金(保証金)0円。転居後のネット接続がスムーズに行えるインターネット使用料無料の物件、更にモニタ付インターホン完備だから、ワンクッションの余裕が生まれます。また陽の光の移ろいを感じられる2面採光で、その上両隣に挟まれるのはちょっと……という方にはおすすめの角部屋なので、両サイドからの生活音に挟まれることがありません。ちなみに賢く使うことで理想のスッキリ空間が実現できる収納スペース有です。新婚さんにも嬉しい2K。実際の空間をご自身で体感ください。 |
| リフォーム履歴 |
- |
| リノベーション履歴 |
- |
| 備考 |
賃貸保証等:加入要(保証会社加入必須/初回50%、毎月1%~)
管理形態/管理員の勤務形態:-/-
※退去時のルームクリーニング・エアコン清掃費用は借主負担となります
更新事務手数料:0.275ヶ月(税込)、
24時間入居サポート(必須):990円/月、
退去時清掃代(前納):55,000円(税込)、
害虫防除消毒施工(任意、入居前に限る):19,800円より、
短期解約違約金(1年未満):賃料1ヵ月
|
| エネルギー消費性能 |
- |
| 断熱性能 |
- |
| 目安光熱費 |
- |
| バス・トイレ |
バス・トイレ別、温水洗浄便座、浴室に窓あり |
| キッチン |
ガスコンロ可 |
| セキュリティー |
モニター付インターホン、火災警報器(報知機) |
| 収納 |
収納スペース、クローゼット、シューズボックス |
| 設備・サービス |
室内洗濯機置場、洗濯機置場、全居室フローリング、フローリング、エアコン |
| TV・通信 |
インターネット使用料無料、CATVインターネット、ケーブルTV |
| その他 |
駐輪場 |
| 契約期間 |
2年 |
現況 |
空家 |
| 条件等 |
- |
入居可能時期 |
即時 |
| 仲介手数料 |
1.1ヶ月 |
|
|
| 更新料 |
新賃料 1ヶ月 |
物件番号 |
6967861314 |
| 情報公開日 |
2025年11月4日 |
次回更新予定日 |
2025年11月18日 |
| ケータイ用バーコード |
- スマートフォンでこの物件を見る
- スマートフォンからもこの物件をご覧になれます。
|
※「-」と表示されている項目については、情報提供会社にご確認ください。
| 周辺施設 |
目黒五本木郵便局 |
| 距離 |
361m |
写真を見る |
| 周辺施設 |
ローソン下馬4丁目店 |
| 距離 |
328m |
写真を見る |
| 周辺施設 |
まいばすけっと祐天寺駅西店 |
| 距離 |
389m |
写真を見る |
| 周辺施設 |
セブンイレブン下馬1丁目店 |
| 距離 |
335m |
写真を見る |
| 周辺施設 |
セブンイレブン五本木店 |
| 距離 |
394m |
写真を見る |
| 周辺施設 |
いづみ幼稚園 |
| 距離 |
477m |
写真を見る |
| 周辺施設 |
ファミリーマート世田谷下馬一丁目店 |
| 距離 |
458m |
写真を見る |
ここから簡単にお問い合わせをすることができます。
(SSLでの暗号化での送信を希望されるお客さまは
こちら
よりお問い合わせください)
お問い合わせを行う前に
「個人情報の取り扱いについて」を必ずお読みください。
「個人情報の取り扱いについて」に同意いただいた場合は「上記にご同意の上 確認画面へ進む」のボタンをクリックしてください。
個人情報の取り扱いについて
皆さまが送付された個人情報はアットホーム(株)のサーバを経由し、お問い合わせ先の不動産会社にメールまたはFAXにて転送されるためアットホーム(株)にも保管されます。アットホーム(株)で保管された個人情報の取り扱いについては、【こちら】をご覧ください。
また、本画面でご記入いただいた個人情報は、お問い合わせ先の不動産会社でも保管します。 お問い合わせ先の不動産会社が保管する個人情報の取り扱いについては、不動産会社に直接お問い合わせください。
東京都知事免許(17)第335号 |
|---|
- 交通:
- 東急田園都市線/駒沢大学駅 徒歩8分
- 東京都世田谷区野沢4丁目21-17 菱田マンション2F
- TEL:
- 03-3421-5181
- FAX:
- 03-3418-8388
- 所属団体:
- (公社)東京都宅地建物取引業協会会員(公社)首都圏不動産公正取引協議会加盟
取引態様:代理  - 00520225
|
- スマートフォンで
この不動産会社を見る

|
- 提携サイト等より掲載されている物件情報につきましては、不動産会社詳細情報にリンクされていないものがあります。
- 物件に関するお問合せは、物件詳細ページの「情報提供会社」に表示されている不動産会社へ直接お願いいたします。
- 間取図は、現況を優先させていただきます。
- 映像は物件の一部を撮影したものです。物件の契約にあたっての最終判断はご自身の判断に基づいて行ってください。
- 仲介手数料について

アットホームは物件情報の適正化に努めております。
内容に誤りがある場合にはこちらへご連絡ください。