神奈川県横浜市保土ケ谷区西谷町(西谷駅)の賃貸:物件詳細
交通 所在地 |
駅徒歩 |
賃料 管理費等 |
敷金/保証金 礼金 |
間取り 面積 |
物件種目 築年月 |
|
相鉄本線/西谷
神奈川県横浜市保土ケ谷区西谷町
|
7分
|
6.8万円
-
|
なし / なし
0.5ヶ月
|
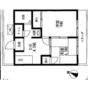
2DK
33.00m²
|
賃貸マンション
1989年4月(築36年9ヶ月)
|
最上階
|
| 交通 | 相鉄本線 西谷駅 徒歩7分 |
| 所在地 |
神奈川県横浜市保土ケ谷区西谷町
|
| 物件種目 |
賃貸マンション |
| 賃料 |
6.8万円 |
管理費等 |
- |
| 敷金 / 保証金 |
なし / なし |
礼金 |
0.5ヶ月 |
| 敷引 |
- |
保証金償却 |
- |
| その他一時金 |
- |
保険等 |
要 2年 15,000円 火災 |
| 維持費等 |
- |
| 間取り |
2DK(和 4.5 洋 6) |
専有面積 |
33.00m² |
| 築年月 |
1989年4月(築36年9ヶ月)
|
階建 / 階 |
3階建 / 3階 |
| 建物構造 |
鉄骨造 |
総戸数 |
- |
| 主要採光面 |
|
駐車場 |
- |
| バイク置き場 |
- |
駐輪場 |
- |
| 建物名・部屋番号 |
西谷コーポ 302 |
ペット |
-
|
| リフォーム履歴 |
- |
| リノベーション履歴 |
- |
| 備考 |
管理形態/管理員の勤務形態:-/-
相鉄線『西谷』駅から平坦徒歩7分の好立地物件です。
商店街至近! スーパー・銀行・郵便局・医院等徒歩圏にあり、生活便利
です。JR直通プロジェクトにより都内に出るのも便利になりました。
2月末に退去した後のリフォームとなりますので入居は3月下旬の
予定です。
契約時にハウスクリーニング費用35,000円が必要となります。
|
| エネルギー消費性能 |
- |
| 断熱性能 |
- |
| 目安光熱費 |
- |
| バス・トイレ |
バス・トイレ別、洗面所独立、温水洗浄便座 |
| キッチン |
- |
| セキュリティー |
- |
| 収納 |
- |
| 設備・サービス |
- |
| TV・通信 |
- |
| その他 |
- |
| 契約期間 |
2年 |
現況 |
空家 |
| 条件等 |
定期借家 |
入居可能時期 |
即時 |
| 更新料 |
- |
物件番号 |
6970026440 |
| 情報公開日 |
2025年7月14日 |
次回更新予定日 |
2025年12月26日 |
| ケータイ用バーコード |
- スマートフォンでこの物件を見る
- スマートフォンからもこの物件をご覧になれます。
|
※「-」と表示されている項目については、情報提供会社にご確認ください。
ここから簡単にお問い合わせをすることができます。
(SSLでの暗号化での送信を希望されるお客さまは
こちら
よりお問い合わせください)
お問い合わせを行う前に
「個人情報の取り扱いについて」を必ずお読みください。
「個人情報の取り扱いについて」に同意いただいた場合は「上記にご同意の上 確認画面へ進む」のボタンをクリックしてください。
個人情報の取り扱いについて
皆さまが送付された個人情報はアットホーム(株)のサーバを経由し、お問い合わせ先の不動産会社にメールまたはFAXにて転送されるためアットホーム(株)にも保管されます。アットホーム(株)で保管された個人情報の取り扱いについては、【こちら】をご覧ください。
また、本画面でご記入いただいた個人情報は、お問い合わせ先の不動産会社でも保管します。 お問い合わせ先の不動産会社が保管する個人情報の取り扱いについては、不動産会社に直接お問い合わせください。
神奈川県知事免許(16)第3126号 |
|---|
- 交通:
- 相鉄本線/西谷駅 徒歩6分
- 神奈川県横浜市保土ケ谷区西谷3丁目9番17号
- TEL:
- 045-371-0092
- FAX:
- 045-382-8798
- 所属団体:
- (公社)神奈川県宅地建物取引業協会会員(公社)首都圏不動産公正取引協議会加盟
取引態様:仲介  - 00220330
|
- スマートフォンで
この不動産会社を見る

|
- 提携サイト等より掲載されている物件情報につきましては、不動産会社詳細情報にリンクされていないものがあります。
- 物件に関するお問合せは、物件詳細ページの「情報提供会社」に表示されている不動産会社へ直接お願いいたします。
- 間取図は、現況を優先させていただきます。
- 映像は物件の一部を撮影したものです。物件の契約にあたっての最終判断はご自身の判断に基づいて行ってください。
- 仲介手数料について

アットホームは物件情報の適正化に努めております。
内容に誤りがある場合にはこちらへご連絡ください。