京都府京都市北区大将軍西鷹司町(北野白梅町駅)の賃貸:物件詳細
交通 所在地 |
駅徒歩 |
賃料 管理費等 |
敷金/保証金 礼金 |
間取り 面積 |
物件種目 築年月 |
|
京福電鉄北野線/北野白梅町
京都府京都市北区大将軍西鷹司町
|
5分
|
5万円
6,000円
|
なし / なし
なし
|
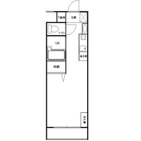
1K
21.28m²
|
賃貸マンション
1995年10月(築30年3ヶ月)
|
常時ゴミ出し可能、角部屋、女性限定、オール電化
|
|
間取図
|
外観
|
その他の画像
|
| 交通 | 京福電鉄北野線 北野白梅町駅 徒歩5分 |
| 所在地 |
京都府京都市北区大将軍西鷹司町
|
| 物件種目 |
賃貸マンション |
| 賃料 |
5万円 |
管理費等 |
6,000円 |
| 敷金 / 保証金 |
なし / なし |
礼金 |
なし |
| 敷引 |
- |
保証金償却 |
- |
| その他一時金 |
退去時清掃代(入居時):27,500円 |
保険等 |
要 2年 18,000円 火災 |
| 維持費等 |
水道代:2,000円/月 |
| 間取り |
1K(洋 6.7) |
専有面積 |
21.28m² |
| 築年月 |
1995年10月(築30年3ヶ月)
|
階建 / 階 |
3階建 / 2階 |
| 建物構造 |
RC |
総戸数 |
11戸 |
| 主要採光面 |
西 |
駐車場 |
- |
| バイク置き場 |
- |
駐輪場 |
有 500円/月 |
| 建物名・部屋番号 |
203 |
ペット |
-
|
| リフォーム履歴 |
- |
| リノベーション履歴 |
- |
| 備考 |
賃貸保証等:加入要(初回120% 又は初回50%年毎13000円 学生は親族連帯保証で応相談)
管理形態/管理員の勤務形態:-/-
|
| エネルギー消費性能 |
- |
| 断熱性能 |
- |
| 目安光熱費 |
- |
| バス・トイレ |
バス・トイレ別、洗面所独立、シャワー、温水洗浄便座、トイレ |
| キッチン |
IHクッキングヒーター |
| セキュリティー |
オートロック、モニター付インターホン、防犯カメラ、火災警報器(報知機) |
| 収納 |
収納スペース、シューズボックス |
| 設備・サービス |
室内洗濯機置場、給湯、フローリング、エアコン、暖房、冷房、照明器具 |
| TV・通信 |
インターネット使用料無料 |
| その他 |
宅配BOX、バルコニー、駐輪場 |
| 契約期間 |
2年 |
現況 |
居住中 |
| 条件等 |
- |
入居可能時期 |
相談 |
| 更新料 |
- |
物件番号 |
6970076680 |
| 情報公開日 |
2025年12月22日 |
次回更新予定日 |
2026年1月5日 |
| ケータイ用バーコード |
- スマートフォンでこの物件を見る
- スマートフォンからもこの物件をご覧になれます。
|
※「-」と表示されている項目については、情報提供会社にご確認ください。
| 周辺施設 |
イズミヤショッピングセンター白梅町店 |
| 距離 |
526m |
| 周辺施設 |
セブンイレブン京都佐井通妙心寺道店 |
| 距離 |
272m |
| 周辺施設 |
ケンタッキーフライドチキン白梅町店 |
| 距離 |
674m |
ここから簡単にお問い合わせをすることができます。
(SSLでの暗号化での送信を希望されるお客さまは
こちら
よりお問い合わせください)
お問い合わせを行う前に
「個人情報の取り扱いについて」を必ずお読みください。
「個人情報の取り扱いについて」に同意いただいた場合は「上記にご同意の上 確認画面へ進む」のボタンをクリックしてください。
個人情報の取り扱いについて
皆さまが送付された個人情報はアットホーム(株)のサーバを経由し、お問い合わせ先の不動産会社にメールまたはFAXにて転送されるためアットホーム(株)にも保管されます。アットホーム(株)で保管された個人情報の取り扱いについては、【こちら】をご覧ください。
また、本画面でご記入いただいた個人情報は、お問い合わせ先の不動産会社でも保管します。 お問い合わせ先の不動産会社が保管する個人情報の取り扱いについては、不動産会社に直接お問い合わせください。
京都府知事免許(10)第6967号 |
|---|
- 交通:
- 地下鉄烏丸線/四条駅 徒歩5分
- 京都府京都市中京区蛸薬師通烏丸東入一蓮社町305
- TEL:
- 075-241-4031
- FAX:
- 075-241-9008
- 所属団体:
- (公社)京都府宅地建物取引業協会会員(公社)近畿地区不動産公正取引協議会加盟
取引態様:仲介  - 50014797
|
- スマートフォンで
この不動産会社を見る

|
- 提携サイト等より掲載されている物件情報につきましては、不動産会社詳細情報にリンクされていないものがあります。
- 物件に関するお問合せは、物件詳細ページの「情報提供会社」に表示されている不動産会社へ直接お願いいたします。
- 間取図は、現況を優先させていただきます。
- 映像は物件の一部を撮影したものです。物件の契約にあたっての最終判断はご自身の判断に基づいて行ってください。
- 仲介手数料について

アットホームは物件情報の適正化に努めております。
内容に誤りがある場合にはこちらへご連絡ください。