東京都新宿区西落合2丁目(新井薬師前駅)の賃貸:物件詳細
交通 所在地 |
駅徒歩 |
賃料 管理費等 |
敷金/保証金 礼金 |
間取り 面積 |
物件種目 築年月 |
|
西武新宿線/新井薬師前
東京都新宿区西落合2丁目
|
6分
|
7.7万円
8,000円
|
なし / 1ヶ月
なし
|
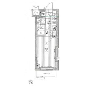
1K
20.25m²
|
賃貸マンション
2005年3月(築20年8ヶ月)
|
分譲タイプ、常時ゴミ出し可能、角部屋、二人入居可、2面採光、24時間換気システム、外観タイル張り、IT重説対応物件
|
|
間取図
|
外観
「新井薬師前」駅、徒歩6分
|
<
その他の画像
>
|
|
|
| 交通 | 西武新宿線 新井薬師前駅 徒歩6分 |
|---|
| その他の交通 | 西武新宿線 沼袋駅 徒歩10分 都営大江戸線 落合南長崎駅 徒歩13分 |
| 所在地 |
東京都新宿区西落合2丁目
|
| 物件種目 |
賃貸マンション |
| 賃料 |
7.7万円 |
管理費等 |
8,000円 |
| 敷金 / 保証金 |
なし / 1ヶ月 |
礼金 |
なし |
| 敷引 |
- |
保証金償却 |
- |
| その他一時金 |
PIMサポートクラブ:27,000円、ルームクリ-ニング費:44,000円、契約事務手数料:11,000円、鍵交換代等:27,500円~ |
保険等 |
要 |
| 維持費等 |
- |
クレジットカード決済 |
初期費用可 |
| 間取り |
1K(洋 6.5 K 2) |
専有面積 |
20.25m² |
| 築年月 |
2005年3月(築20年8ヶ月)
|
階建 / 階 |
5階建 / 4階 |
| 建物構造 |
RC |
総戸数 |
35戸 |
| 主要採光面 |
南西 |
駐車場 |
- |
| バイク置き場 |
- |
駐輪場 |
有 |
| 建物名・部屋番号 |
ルーブル新宿西落合七番館 |
ペット |
-
|
| アピールポイント |
2駅2路線利用可能な便利な立地!ファミリー層も多く暮らす穏やかな環境です!5分圏内には、まいばすけっとやセブンイレブンもあります。桜の季節に有名な中野通りや哲学堂公園など近くにあるので、都会に住みながら四季折々を身近に感じることができます。 |
| リフォーム履歴 |
- |
| リノベーション履歴 |
- |
| 備考 |
賃貸保証等:加入要(初回保証委託料は総賃料等の30%~ 2年目以降1年毎に10,000円)
管理形態/管理員の勤務形態:-/巡回
バルコニー:2.61m²
IT重説対応物件、管理人巡回
・保証金⇒契約時償却
・PIMサポートクラブ(2年間)⇒保険料16,000円(2年間)含む
・法人契約⇒敷1・礼2に変更
・更新料:新賃料の1ヵ月分
・更新事務手数料:0.5ヵ月
・短期解約違約金:1年未満で賃料1ヶ月分
|
| エネルギー消費性能 |
- |
| 断熱性能 |
- |
| 目安光熱費 |
- |
| バス・トイレ |
バス・トイレ別、浴室暖房、浴室乾燥機、洗面台、シャワー、温水洗浄便座、トイレ |
| キッチン |
システムキッチン、2口コンロ、ガスコンロ付 |
| セキュリティー |
モニター付オートロック、オートロック、モニター付インターホン、ディンプルキー、防犯カメラ |
| 収納 |
収納スペース、クローゼット、シューズボックス |
| 設備・サービス |
室内洗濯機置場、洗濯機置場、給湯、出窓、フローリング、都市ガス、エアコン、暖房、冷房 |
| TV・通信 |
インターネット対応、光ファイバー |
| その他 |
宅配BOX、バルコニー、駐輪場、エレベーター |
| 契約期間 |
2年 |
現況 |
空家 |
| 条件等 |
- |
入居可能時期 |
即時 |
| 仲介手数料 |
1.1ヶ月 |
|
|
| 更新料 |
- |
物件番号 |
6970345689 |
| 情報公開日 |
2025年9月3日 |
次回更新予定日 |
2025年11月7日 |
| ケータイ用バーコード |
- スマートフォンでこの物件を見る
- スマートフォンからもこの物件をご覧になれます。
|
※「-」と表示されている項目については、情報提供会社にご確認ください。
| 周辺施設 |
まいばすけっと新井薬師前駅北店 |
| 距離 |
125m |
| 周辺施設 |
セブンイレブン中野新井薬師前駅北店 |
| 距離 |
264m |
写真を見る |
| 周辺施設 |
ファミリーマート新井薬師駅前店 |
| 距離 |
479m |
写真を見る |
| 周辺施設 |
ドラッグストアスマイル新井薬師店 |
| 距離 |
337m |
写真を見る |
ここから簡単にお問い合わせをすることができます。
(SSLでの暗号化での送信を希望されるお客さまは
こちら
よりお問い合わせください)
お問い合わせを行う前に
「個人情報の取り扱いについて」を必ずお読みください。
「個人情報の取り扱いについて」に同意いただいた場合は「上記にご同意の上 確認画面へ進む」のボタンをクリックしてください。
個人情報の取り扱いについて
皆さまが送付された個人情報はアットホーム(株)のサーバを経由し、お問い合わせ先の不動産会社にメールまたはFAXにて転送されるためアットホーム(株)にも保管されます。アットホーム(株)で保管された個人情報の取り扱いについては、【こちら】をご覧ください。
また、本画面でご記入いただいた個人情報は、お問い合わせ先の不動産会社でも保管します。 お問い合わせ先の不動産会社が保管する個人情報の取り扱いについては、不動産会社に直接お問い合わせください。
東京都知事免許(4)第87852号 |
|---|
- 交通:
- 東京メトロ銀座線/赤坂見附駅 徒歩3分
- 東京都港区赤坂3丁目15-5 アーベイン赤坂1階・2階
- TEL:
- 03-5575-3201
- FAX:
- 03-5575-9140
- 所属団体:
- (公社)全日本不動産協会会員(公社)首都圏不動産公正取引協議会加盟
取引態様:仲介  - 00017577
|
- スマートフォンで
この不動産会社を見る

|
- 提携サイト等より掲載されている物件情報につきましては、不動産会社詳細情報にリンクされていないものがあります。
- 物件に関するお問合せは、物件詳細ページの「情報提供会社」に表示されている不動産会社へ直接お願いいたします。
- 間取図は、現況を優先させていただきます。
- 映像は物件の一部を撮影したものです。物件の契約にあたっての最終判断はご自身の判断に基づいて行ってください。
- 仲介手数料について

アットホームは物件情報の適正化に努めております。
内容に誤りがある場合にはこちらへご連絡ください。