神奈川県横浜市港北区綱島東1丁目(綱島駅)の賃貸:物件詳細
交通 所在地 |
駅徒歩 |
賃料 管理費等 |
敷金/保証金 礼金 |
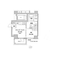
間取り 面積 |
物件種目 築年月 |
|
東急東横線/綱島
神奈川県横浜市港北区綱島東1丁目
|
2分
|
11.5万円
10,000円
|
1ヶ月 / なし
1ヶ月
|
1DK
31.46m²
|
賃貸マンション
2007年9月(築18年3ヶ月)
|
ペット相談、分譲タイプ、24時間換気システム
|
|
間取図
|
外観
|
その他の画像
|
| 交通 | 東急東横線 綱島駅 徒歩2分 |
| 所在地 |
神奈川県横浜市港北区綱島東1丁目
|
| 物件種目 |
賃貸マンション |
| 賃料 |
11.5万円 |
管理費等 |
10,000円 |
| 敷金 / 保証金 |
1ヶ月 / なし |
礼金 |
1ヶ月 |
| 敷引 |
1ヶ月 |
保証金償却 |
- |
| その他一時金 |
なし |
保険等 |
要 2年 20,000円 賃貸住宅入居者総合 |
| 維持費等 |
- |
| 間取り |
1DK(洋 4 DK 7.6) |
専有面積 |
31.46m² |
| 築年月 |
2007年9月(築18年3ヶ月)
|
階建 / 階 |
10階建 / 7階 |
| 建物構造 |
RC |
総戸数 |
46戸 |
| 主要採光面 |
東 |
駐車場 |
無 |
| バイク置き場 |
無 |
駐輪場 |
有 |
| 建物名・部屋番号 |
リビオ綱島 |
ペット |
小型犬可・ 猫可・ 条件:礼金1か月増 |
| アピールポイント |
DK床暖房 宅配ボックス オートロック 管理人日勤 インターネット無料 |
| リフォーム履歴 |
■内装:2025年11月 全室クロス張替え ルームクリーニング ※実施年月は最も古い履歴を表示 |
| リノベーション履歴 |
- |
| 備考 |
賃貸保証等:加入要(家賃等月額の50% 1年更新 更新料月額800円 日本セーフティー(株))
管理形態/管理員の勤務形態:-/日勤
バルコニー:4.06m²
管理人日勤
|
| エネルギー消費性能 |
- |
| 断熱性能 |
- |
| 目安光熱費 |
- |
| バス・トイレ |
バス・トイレ別、浴室暖房、浴室乾燥機、オートバス、追焚機能、シャワー付洗面化粧台、洗面所、洗面台、シャワー、温水洗浄便座 |
| キッチン |
浄水器、ガスコンロ付、キッチン床暖房 |
| セキュリティー |
モニター付オートロック、モニター付インターホン、火災警報器(報知機) |
| 収納 |
収納スペース、クローゼット |
| 設備・サービス |
室内洗濯機置場、都市ガス給湯、給湯、全居室フローリング、都市ガス、エアコン |
| TV・通信 |
インターネット使用料無料 |
| その他 |
宅配BOX、バルコニー、駐輪場、エレベーター |
| 契約期間 |
2年 |
現況 |
空家 |
| 条件等 |
- |
入居可能時期 |
相談 |
| 仲介手数料 |
1ヶ月 |
|
|
| 更新料 |
新賃料 1ヶ月 |
物件番号 |
6970381475 |
| 情報公開日 |
2025年10月15日 |
次回更新予定日 |
2025年11月16日 |
| ケータイ用バーコード |
- スマートフォンでこの物件を見る
- スマートフォンからもこの物件をご覧になれます。
|
※「-」と表示されている項目については、情報提供会社にご確認ください。
ここから簡単にお問い合わせをすることができます。
(SSLでの暗号化での送信を希望されるお客さまは
こちら
よりお問い合わせください)
お問い合わせを行う前に
「個人情報の取り扱いについて」を必ずお読みください。
「個人情報の取り扱いについて」に同意いただいた場合は「上記にご同意の上 確認画面へ進む」のボタンをクリックしてください。
個人情報の取り扱いについて
皆さまが送付された個人情報はアットホーム(株)のサーバを経由し、お問い合わせ先の不動産会社にメールまたはFAXにて転送されるためアットホーム(株)にも保管されます。アットホーム(株)で保管された個人情報の取り扱いについては、【こちら】をご覧ください。
また、本画面でご記入いただいた個人情報は、お問い合わせ先の不動産会社でも保管します。 お問い合わせ先の不動産会社が保管する個人情報の取り扱いについては、不動産会社に直接お問い合わせください。
神奈川県知事免許(4)第26932号 |
|---|
- 交通:
- グリーンライン/東山田駅 徒歩2分
- 神奈川県横浜市都筑区東山田町892-9
- TEL:
- 045-592-3681
- FAX:
- 045-592-6882
- 所属団体:
- (公社)神奈川県宅地建物取引業協会会員(公社)首都圏不動産公正取引協議会加盟
取引態様:仲介  - 00104312
|
- スマートフォンで
この不動産会社を見る

|
- 提携サイト等より掲載されている物件情報につきましては、不動産会社詳細情報にリンクされていないものがあります。
- 物件に関するお問合せは、物件詳細ページの「情報提供会社」に表示されている不動産会社へ直接お願いいたします。
- 間取図は、現況を優先させていただきます。
- 映像は物件の一部を撮影したものです。物件の契約にあたっての最終判断はご自身の判断に基づいて行ってください。
- 仲介手数料について

アットホームは物件情報の適正化に努めております。
内容に誤りがある場合にはこちらへご連絡ください。