栃木県宇都宮市住吉町(東武宇都宮駅)の賃貸:物件詳細
交通 所在地 |
駅徒歩 |
賃料 管理費等 |
敷金/保証金 礼金 |
間取り 面積 |
物件種目 築年月 |
|
東武宇都宮線/東武宇都宮
栃木県宇都宮市住吉町
|
1400m
|
10万円
なし
|
2ヶ月 / なし
1ヶ月
|
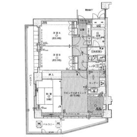
3LDK
71.00m²
|
賃貸マンション
1997年5月(築29年1ヶ月)
|
分譲タイプ、角部屋、南向き、2面採光、閑静な住宅街、外観タイル張り、保証人不要
|
|
間取図
|
外観
|
その他の画像
|
| 交通 | 東武宇都宮線 東武宇都宮駅 徒歩1400m |
| 所在地 |
栃木県宇都宮市住吉町
|
| 物件種目 |
賃貸マンション |
| 賃料 |
10万円 |
管理費等 |
なし |
| 敷金 / 保証金 |
2ヶ月 / なし |
礼金 |
1ヶ月 |
| 敷引 |
- |
保証金償却 |
- |
| その他一時金 |
- |
保険等 |
要 2年 20,000円 賃貸総合 |
| 維持費等 |
- |
| 間取り |
3LDK |
専有面積 |
71.00m² |
| 築年月 |
1997年5月(築29年1ヶ月)
|
階建 / 階 |
6階建 / 5階 |
| 建物構造 |
RC |
総戸数 |
- |
| 主要採光面 |
南 |
駐車場 |
有 無料 |
| バイク置き場 |
- |
駐輪場 |
- |
| 建物名・部屋番号 |
サーパス住吉 |
ペット |
-
|
| アピールポイント |
分譲マンション賃貸 南西角部屋で日当り良好 駐車場1台無料 閑静な住宅地 |
| リフォーム履歴 |
■水回り:2019年9月 キッチン、トイレ、洗面所 ※実施年月は最も古い履歴を表示 |
| リノベーション履歴 |
- |
| 備考 |
賃貸保証等:加入要(初回賃料の50%、以後月額1% 口座振替料月額300円(税抜))
管理形態/管理員の勤務形態:-/-
バルコニー:21.55m²
分譲マンション賃貸 南西角部屋で日当り良好 駐車場1台無料 閑静な住宅地
|
| エネルギー消費性能 |
- |
| 断熱性能 |
- |
| 目安光熱費 |
- |
| バス・トイレ |
オートバス、追焚機能、シャワー付洗面化粧台、洗面所独立、温水洗浄便座 |
| キッチン |
カウンターキッチン、システムキッチン、3口以上コンロ |
| セキュリティー |
モニター付オートロック、火災警報器(報知機) |
| 収納 |
全居室収納、クローゼット、シューズボックス |
| 設備・サービス |
室内洗濯機置場、都市ガス、エアコン、複層ガラス |
| TV・通信 |
インターネット対応、CS、BS端子 |
| その他 |
二面バルコニー、エレベーター |
| 契約期間 |
2年 |
現況 |
空家 |
| 条件等 |
- |
入居可能時期 |
即時 |
| 仲介手数料 |
1.1ヶ月 |
|
|
| 更新料 |
新賃料 1ヶ月 |
物件番号 |
6970756537 |
| 情報公開日 |
2025年6月4日 |
次回更新予定日 |
2026年6月13日 |
| ケータイ用バーコード |
- スマートフォンでこの物件を見る
- スマートフォンからもこの物件をご覧になれます。
|
※「-」と表示されている項目については、情報提供会社にご確認ください。
| 周辺施設 |
ファミリーマート宇都宮睦町店 |
| 距離 |
576m |
| 周辺施設 |
スーパーセンタートライアル宇都宮店 |
| 距離 |
783m |
| 周辺施設 |
鹿沼相互信用金庫宇都宮支店 |
| 距離 |
1095m |
ここから簡単にお問い合わせをすることができます。
(SSLでの暗号化での送信を希望されるお客さまは
こちら
よりお問い合わせください)
お問い合わせを行う前に
「個人情報の取り扱いについて」を必ずお読みください。
「個人情報の取り扱いについて」に同意いただいた場合は「上記にご同意の上 確認画面へ進む」のボタンをクリックしてください。
個人情報の取り扱いについて
皆さまが送付された個人情報はアットホーム(株)のサーバを経由し、お問い合わせ先の不動産会社にメールまたはFAXにて転送されるためアットホーム(株)にも保管されます。アットホーム(株)で保管された個人情報の取り扱いについては、【こちら】をご覧ください。
また、本画面でご記入いただいた個人情報は、お問い合わせ先の不動産会社でも保管します。 お問い合わせ先の不動産会社が保管する個人情報の取り扱いについては、不動産会社に直接お問い合わせください。
栃木県知事免許(4)第4625号 |
|---|
- 交通:
- JR東北本線/宇都宮駅 徒歩20分
- 栃木県宇都宮市元今泉7丁目5-3
- TEL:
- 028-689-4545
- FAX:
- 028-689-4546
- 所属団体:
- (公社)全日本不動産協会会員(公社)首都圏不動産公正取引協議会加盟
取引態様:仲介  - 00260728
|
- スマートフォンで
この不動産会社を見る

|
- 提携サイト等より掲載されている物件情報につきましては、不動産会社詳細情報にリンクされていないものがあります。
- 物件に関するお問合せは、物件詳細ページの「情報提供会社」に表示されている不動産会社へ直接お願いいたします。
- 間取図は、現況を優先させていただきます。
- 映像は物件の一部を撮影したものです。物件の契約にあたっての最終判断はご自身の判断に基づいて行ってください。
- 仲介手数料について

アットホームは物件情報の適正化に努めております。
内容に誤りがある場合にはこちらへご連絡ください。