静岡県静岡市清水区草薙杉道3丁目(草薙駅)の賃貸:物件詳細
交通 所在地 |
駅徒歩 |
賃料 管理費等 |
敷金/保証金 礼金 |
間取り 面積 |
物件種目 築年月 |
東海道本線/草薙
静岡県静岡市清水区草薙杉道3丁目
|
14分
|
10.5万円
-
|
1ヶ月 / なし
1ヶ月
|
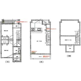
2SLDK
71.77m²
|
賃貸テラスハウス
2020年3月(築5年8ヶ月)
|
駐車場2台分、振分、吹抜
|
間取図
|
|
<
その他の画像
>
|
交通 | 東海道本線 草薙駅 徒歩14分 |
---|
その他の交通 | 静岡鉄道静岡清水線 御門台駅 徒歩9分 |
所在地 |
静岡県静岡市清水区草薙杉道3丁目
|
物件種目 |
賃貸テラスハウス |
賃料 |
10.5万円 |
管理費等 |
- |
敷金 / 保証金 |
1ヶ月 / なし |
礼金 |
1ヶ月 |
敷引 |
- |
保証金償却 |
- |
その他一時金 |
なし |
保険等 |
要 2年 火災 |
維持費等 |
- |
間取り |
2SLDK(洋 5.8・5.3 LDK 17.4) |
専有面積 |
71.77m² |
築年月 |
2020年3月(築5年8ヶ月)
|
階建 / 階 |
2階建 |
建物構造 |
木造 |
総戸数 |
- |
主要採光面 |
|
駐車場 |
有 無料 |
バイク置き場 |
- |
駐輪場 |
- |
建物名・部屋番号 |
|
ペット |
-
|
リフォーム履歴 |
- |
リノベーション履歴 |
- |
備考 |
賃貸保証等:加入要(ふじさん宅建保証 ●利用料:賃料総額の77.0%~ ●審査事務手数料:¥1,000(税別)~)
管理形態/管理員の勤務形態:-/-
|
エネルギー消費性能 |
- |
断熱性能 |
- |
目安光熱費 |
- |
バス・トイレ |
バス・トイレ別、浴室乾燥機、洗面所、温水洗浄便座 |
キッチン |
カウンターキッチン、システムキッチン、3口以上コンロ |
セキュリティー |
モニター付インターホン |
収納 |
収納スペース |
設備・サービス |
室内洗濯機置場、給湯、エアコン |
TV・通信 |
- |
その他 |
二面バルコニー |
契約期間 |
2年 |
現況 |
居住中 |
条件等 |
- |
入居可能時期 |
2025年10月中旬予定 |
更新料 |
- |
物件番号 |
6970765937 |
情報公開日 |
2025年9月25日 |
次回更新予定日 |
2025年10月23日 |
ケータイ用バーコード |
- スマートフォンでこの物件を見る
- スマートフォンからもこの物件をご覧になれます。
|
※「-」と表示されている項目については、情報提供会社にご確認ください。
周辺施設 |
ミニストップ清水草薙一里山店 |
距離 |
257m |
周辺施設 |
Seria生活良品草薙店 |
距離 |
625m |
周辺施設 |
静岡市立清水有度第二小学校 |
距離 |
285m |
ここから簡単にお問い合わせをすることができます。
(SSLでの暗号化での送信を希望されるお客さまは
こちら
よりお問い合わせください)
お問い合わせを行う前に
「個人情報の取り扱いについて」を必ずお読みください。
「個人情報の取り扱いについて」に同意いただいた場合は「上記にご同意の上 確認画面へ進む」のボタンをクリックしてください。
個人情報の取り扱いについて
皆さまが送付された個人情報はアットホーム(株)のサーバを経由し、お問い合わせ先の不動産会社にメールまたはFAXにて転送されるためアットホーム(株)にも保管されます。アットホーム(株)で保管された個人情報の取り扱いについては、【こちら】をご覧ください。
また、本画面でご記入いただいた個人情報は、お問い合わせ先の不動産会社でも保管します。 お問い合わせ先の不動産会社が保管する個人情報の取り扱いについては、不動産会社に直接お問い合わせください。
静岡県知事免許(10)第6126号 |
---|
- 交通:
- 東海道本線/草薙駅 徒歩8分
- 静岡県静岡市清水区草薙3丁目9番5号
- TEL:
- 054-347-0120
- FAX:
- 054-347-3510
- 所属団体:
- (公社)静岡県宅地建物取引業協会会員東海不動産公正取引協議会加盟
取引態様:仲介  - 40200096
|
- スマートフォンで
この不動産会社を見る

|
- 提携サイト等より掲載されている物件情報につきましては、不動産会社詳細情報にリンクされていないものがあります。
- 物件に関するお問合せは、物件詳細ページの「情報提供会社」に表示されている不動産会社へ直接お願いいたします。
- 間取図は、現況を優先させていただきます。
- 映像は物件の一部を撮影したものです。物件の契約にあたっての最終判断はご自身の判断に基づいて行ってください。
- 仲介手数料について

アットホームは物件情報の適正化に努めております。
内容に誤りがある場合にはこちらへご連絡ください。