大分県大分市田中町1丁目(南大分駅)の賃貸:物件詳細
交通 所在地 |
駅徒歩 |
賃料 管理費等 |
敷金/保証金 礼金 |
間取り 面積 |
物件種目 築年月 |
|
JR久大本線/南大分 [バス利用可] バス 大石町バス停 停歩4分
大分県大分市田中町1丁目
|
6分
|
6.5万円
-
|
2ヶ月 / なし
なし
|
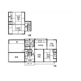
5DK
120.07m²
|
賃貸一戸建て
1985年9月(築40年4ヶ月)
|
|
間取図
5DK
|
外観
|
<
その他の画像
>
|
| 交通 | JR久大本線 南大分駅 徒歩6分 [バス利用可] バス 大石町バス停 停歩4分 |
| 所在地 |
大分県大分市田中町1丁目
|
| 物件種目 |
賃貸一戸建て |
| 賃料 |
6.5万円 |
管理費等 |
- |
| 敷金 / 保証金 |
2ヶ月 / なし |
礼金 |
なし |
| 敷引 |
- |
保証金償却 |
- |
| その他一時金 |
- |
保険等 |
要 2年 21,000円 |
| 維持費等 |
- |
| 間取り |
5DK(和 8・7.5・6 洋 4.5・6 DK 6) |
専有面積 |
120.07m² |
| 築年月 |
1985年9月(築40年4ヶ月)
|
階建 / 階 |
2階建 |
| 建物構造 |
木造 |
総戸数 |
- |
| 主要採光面 |
|
駐車場 |
有 無料 |
| バイク置き場 |
有 |
駐輪場 |
有 |
| 建物名・部屋番号 |
|
ペット |
-
|
| リフォーム履歴 |
- |
| リノベーション履歴 |
- |
| 備考 |
賃貸保証等:加入要(保証料50~80%)
管理形態/管理員の勤務形態:-/-
屋根付き駐車場・浄化槽清掃実費
|
| エネルギー消費性能 |
- |
| 断熱性能 |
- |
| 目安光熱費 |
- |
| バス・トイレ |
バス・トイレ別、洗面所独立、洗面台、温水洗浄便座 |
| キッチン |
独立型キッチン、ガスコンロ可 |
| セキュリティー |
- |
| 収納 |
収納スペース、シューズボックス |
| 設備・サービス |
室内洗濯機置場、プロパンガス給湯、給湯、プロパンガス、エアコン |
| TV・通信 |
- |
| その他 |
バイク置き場、庭、バルコニー、駐輪場 |
| 契約期間 |
2年 |
現況 |
空家 |
| 条件等 |
- |
入居可能時期 |
即時 |
| 更新料 |
なし |
物件番号 |
6970790493 |
| 情報公開日 |
2025年11月6日 |
次回更新予定日 |
2025年12月29日 |
| ケータイ用バーコード |
- スマートフォンでこの物件を見る
- スマートフォンからもこの物件をご覧になれます。
|
※「-」と表示されている項目については、情報提供会社にご確認ください。
| 周辺施設 |
トキハインダストリー南大分センター |
| 距離 |
275m |
写真を見る |
| 周辺施設 |
コープ南大分店 |
| 距離 |
613m |
写真を見る |
| 周辺施設 |
セブンイレブン荏隈店 |
| 距離 |
551m |
写真を見る |
| 周辺施設 |
医療法人凱風会織部病院 |
| 距離 |
463m |
写真を見る |
| 周辺施設 |
南大分小学校 |
| 距離 |
447m |
写真を見る |
| 周辺施設 |
豊和銀行南大分支店 |
| 距離 |
380m |
写真を見る |
ここから簡単にお問い合わせをすることができます。
(SSLでの暗号化での送信を希望されるお客さまは
こちら
よりお問い合わせください)
お問い合わせを行う前に
「個人情報の取り扱いについて」を必ずお読みください。
「個人情報の取り扱いについて」に同意いただいた場合は「上記にご同意の上 確認画面へ進む」のボタンをクリックしてください。
個人情報の取り扱いについて
皆さまが送付された個人情報はアットホーム(株)のサーバを経由し、お問い合わせ先の不動産会社にメールまたはFAXにて転送されるためアットホーム(株)にも保管されます。アットホーム(株)で保管された個人情報の取り扱いについては、【こちら】をご覧ください。
また、本画面でご記入いただいた個人情報は、お問い合わせ先の不動産会社でも保管します。 お問い合わせ先の不動産会社が保管する個人情報の取り扱いについては、不動産会社に直接お問い合わせください。
大分県知事免許(7)第2283号 |
|---|
- 交通:
- JR久大本線/南大分駅 徒歩7分 【バス】 三ヶ田町 停歩1分
- 大分県大分市三ケ田町2丁目4番14号 秦ビル102号
- TEL:
- 097-546-7888
- FAX:
- 097-546-5060
- 所属団体:
- (公社)大分県宅地建物取引業協会会員(一社)九州不動産公正取引協議会加盟
取引態様:仲介  - 80400663
|
- スマートフォンで
この不動産会社を見る

|
- 提携サイト等より掲載されている物件情報につきましては、不動産会社詳細情報にリンクされていないものがあります。
- 物件に関するお問合せは、物件詳細ページの「情報提供会社」に表示されている不動産会社へ直接お願いいたします。
- 間取図は、現況を優先させていただきます。
- 映像は物件の一部を撮影したものです。物件の契約にあたっての最終判断はご自身の判断に基づいて行ってください。
- 仲介手数料について

アットホームは物件情報の適正化に努めております。
内容に誤りがある場合にはこちらへご連絡ください。