静岡県静岡市駿河区八幡3丁目(静岡駅)の賃貸:物件詳細
交通 所在地 |
駅徒歩 |
賃料 管理費等 |
敷金/保証金 礼金 |
間取り 面積 |
物件種目 築年月 |
|
東海道新幹線/静岡
静岡県静岡市駿河区八幡3丁目
|
17分
|
15.5万円
なし
|
なし / なし
1ヶ月
|
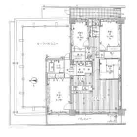
4LDK
98.00m²
|
賃貸マンション
2000年1月(築26年2ヶ月)
|
分譲タイプ、角部屋、3面採光、閑静な住宅街、前面棟無、保証人不要
|
|
間取図
大型4LDKタイプ!ルーフバルコニーからの眺望良好です!
|
外観
|
<
その他の画像
>
|
| 交通 | 東海道新幹線 静岡駅 徒歩17分 |
|---|
| その他の交通 | 静岡鉄道静岡清水線 春日町駅 徒歩18分 静岡鉄道静岡清水線 音羽町駅 徒歩17分 |
| 所在地 |
静岡県静岡市駿河区八幡3丁目
|
| 物件種目 |
賃貸マンション |
| 賃料 |
15.5万円 |
管理費等 |
なし |
| 敷金 / 保証金 |
なし / なし |
礼金 |
1ヶ月 |
| 敷引 |
- |
保証金償却 |
- |
| その他一時金 |
クリーニング費用:132,000円、畳表替え費用:29,700円 |
保険等 |
要 2年 24,000円 |
| 維持費等 |
- |
| 間取り |
4LDK(和 4.5 洋 8.8・5.5・6 LDK 15.1) |
専有面積 |
98.00m² |
| 築年月 |
2000年1月(築26年2ヶ月)
|
階建 / 階 |
9階建 / 8階 |
| 建物構造 |
RC |
総戸数 |
- |
| 主要採光面 |
西 |
駐車場 |
有 7,000円/月 |
| バイク置き場 |
有 |
駐輪場 |
有 |
| 建物名・部屋番号 |
ウィスティリアヒルズ八幡 802 |
ペット |
-
|
| リフォーム履歴 |
- |
| リノベーション履歴 |
- |
| 備考 |
賃貸保証等:加入要(詳細お問合せください。)
管理形態/管理員の勤務形態:-/日勤
バルコニー:54m²
管理人日勤
|
| エネルギー消費性能 |
- |
| 断熱性能 |
- |
| 目安光熱費 |
- |
| バス・トイレ |
バス・トイレ別、浴室乾燥機、追焚機能、シャワー付洗面化粧台、洗面所独立、洗面所、シャワー、温水洗浄便座、トイレ、浴室に窓あり |
| キッチン |
カウンターキッチン、システムキッチン、3口以上コンロ |
| セキュリティー |
モニター付オートロック、オートロック、ディンプルキー |
| 収納 |
全居室収納、ウォークインクローゼット、収納スペース、トランクルーム、クローゼット |
| 設備・サービス |
室内洗濯機置場、給湯、フローリング、都市ガス、照明器具 |
| TV・通信 |
- |
| その他 |
宅配BOX、バイク置き場、ルーフバルコニー、バルコニー、駐輪場、エレベーター |
| 契約期間 |
2年 |
現況 |
居住中 |
| 条件等 |
- |
入居可能時期 |
相談 |
| 更新料 |
なし |
物件番号 |
6972057837 |
| 情報公開日 |
2026年1月24日 |
次回更新予定日 |
2026年2月7日 |
| ケータイ用バーコード |
- スマートフォンでこの物件を見る
- スマートフォンからもこの物件をご覧になれます。
|
※「-」と表示されている項目については、情報提供会社にご確認ください。
ここから簡単にお問い合わせをすることができます。
(SSLでの暗号化での送信を希望されるお客さまは
こちら
よりお問い合わせください)
お問い合わせを行う前に
「個人情報の取り扱いについて」を必ずお読みください。
「個人情報の取り扱いについて」に同意いただいた場合は「上記にご同意の上 確認画面へ進む」のボタンをクリックしてください。
個人情報の取り扱いについて
皆さまが送付された個人情報はアットホーム(株)のサーバを経由し、お問い合わせ先の不動産会社にメールまたはFAXにて転送されるためアットホーム(株)にも保管されます。アットホーム(株)で保管された個人情報の取り扱いについては、【こちら】をご覧ください。
また、本画面でご記入いただいた個人情報は、お問い合わせ先の不動産会社でも保管します。 お問い合わせ先の不動産会社が保管する個人情報の取り扱いについては、不動産会社に直接お問い合わせください。
神奈川県知事免許(8)第19618号 |
|---|
- 交通:
- 東急東横線/綱島駅 徒歩1分
- 神奈川県横浜市港北区綱島西1丁目1-16
- TEL:
- 045-546-6247
- FAX:
- 045-546-3981
- 所属団体:
- (公社)全日本不動産協会会員(公社)首都圏不動産公正取引協議会加盟
取引態様:仲介  - 00021062
|
- スマートフォンで
この不動産会社を見る

|
- 提携サイト等より掲載されている物件情報につきましては、不動産会社詳細情報にリンクされていないものがあります。
- 物件に関するお問合せは、物件詳細ページの「情報提供会社」に表示されている不動産会社へ直接お願いいたします。
- 間取図は、現況を優先させていただきます。
- 映像は物件の一部を撮影したものです。物件の契約にあたっての最終判断はご自身の判断に基づいて行ってください。
- 仲介手数料について

アットホームは物件情報の適正化に努めております。
内容に誤りがある場合にはこちらへご連絡ください。