東京都世田谷区祖師谷5丁目(祖師ヶ谷大蔵駅)の賃貸:物件詳細
交通 所在地 |
駅徒歩 |
賃料 管理費等 |
敷金/保証金 礼金 |
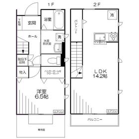
間取り 面積 |
物件種目 築年月 |
|
小田急小田原線/祖師ヶ谷大蔵
東京都世田谷区祖師谷5丁目
|
13分
|
17.5万円
5,000円
|
1ヶ月 / なし
1ヶ月
|
1LDK
55.48m²
|
賃貸アパート
2018年1月(築8年3ヶ月)
|
駐車場2台分、角部屋、最上階、南向き、二人入居可、天井高2.5M以上、全室2面採光、2面採光、24時間換気システム、閑静な住宅街、メゾネット
|
|
間取図
|
リビング
カウンターキッチン!
|
<
その他の画像
>
|
| 交通 | 小田急小田原線 祖師ヶ谷大蔵駅 徒歩13分 |
|---|
| その他の交通 | 小田急小田原線 成城学園前駅 徒歩20分 小田急小田原線 千歳船橋駅 徒歩23分 |
| 所在地 |
東京都世田谷区祖師谷5丁目
|
| 物件種目 |
賃貸アパート |
| 賃料 |
17.5万円 |
管理費等 |
5,000円 |
| 敷金 / 保証金 |
1ヶ月 / なし |
礼金 |
1ヶ月 |
| 敷引 |
- |
保証金償却 |
- |
| その他一時金 |
24時間安心サポート(2年分/税込):16,500円、鍵交換代等:27,500円~ |
保険等 |
要 2年 24,000円 火災 |
| 維持費等 |
- |
クレジットカード決済 |
初期費用可 |
| 間取り |
1LDK(洋 6.5 LDK 14.2) |
専有面積 |
55.48m² |
| 築年月 |
2018年1月(築8年3ヶ月)
|
階建 / 階 |
2階建 / メゾネット1階~2階部分 |
| 建物構造 |
木造 |
総戸数 |
- |
| 主要採光面 |
南 |
駐車場 |
近有 18,700円/月 |
| バイク置き場 |
無 |
駐輪場 |
有 無料 |
| 建物名・部屋番号 |
フォンテーヌ祖師谷 A(101)号室 |
ペット |
-
|
| アピールポイント |
専用庭・バルコニー付きメゾネットタイプ1LDK!
積和建設の賃貸アパート!戸建て感覚で新婚さん、カップル等に最適な間取り! |
| リフォーム履歴 |
- |
| リノベーション履歴 |
- |
| 備考 |
賃貸保証等:加入要(総賃料の50%(1年)、以後月額1,200円)
管理形態/管理員の勤務形態:-/巡回
2×4工法、管理人巡回
専用庭・バルコニー付きメゾネットタイプ1LDK!
積和建設の賃貸アパート!戸建て感覚で新婚さん、カップル等に最適な間取り!
|
| エネルギー消費性能 |
- |
| 断熱性能 |
- |
| 目安光熱費 |
- |
| バス・トイレ |
バス・トイレ別、浴室乾燥機、追焚機能、シャワー付洗面化粧台、洗面所独立、洗面所、洗面台、シャワー、温水洗浄便座、トイレ |
| キッチン |
カウンターキッチン、システムキッチン、3口以上コンロ、ガスコンロ付、グリル |
| セキュリティー |
モニター付インターホン、ディンプルキー、ダブルロックドア、シャッター雨戸、火災警報器(報知機) |
| 収納 |
収納スペース、クローゼット、シューズボックス |
| 設備・サービス |
全居室エアコン、エアコン2台以上、室内洗濯機置場、都市ガス給湯、給湯、全居室フローリング、フローリング、室内物干し、都市ガス、エアコン、ダウンライト、複層ガラス |
| TV・通信 |
インターネット対応、光ファイバー、CATVインターネット、ケーブルTV |
| その他 |
宅配BOX、専用庭、庭、バルコニー、駐輪場 |
| 契約期間 |
2年 |
現況 |
居住中 |
| 条件等 |
- |
入居可能時期 |
2026年5月中旬予定 |
| 仲介手数料 |
不要 |
|
|
| 更新料 |
新賃料 1ヶ月 |
物件番号 |
6972950789 |
| 情報公開日 |
2026年3月19日 |
次回更新予定日 |
2026年4月2日 |
| ケータイ用バーコード |
- スマートフォンでこの物件を見る
- スマートフォンからもこの物件をご覧になれます。
|
※「-」と表示されている項目については、情報提供会社にご確認ください。
| 周辺施設 |
ファミリーマートまるいし祖師谷店 |
| 距離 |
486m |
写真を見る |
ここから簡単にお問い合わせをすることができます。
(SSLでの暗号化での送信を希望されるお客さまは
こちら
よりお問い合わせください)
お問い合わせを行う前に
「個人情報の取り扱いについて」を必ずお読みください。
「個人情報の取り扱いについて」に同意いただいた場合は「上記にご同意の上 確認画面へ進む」のボタンをクリックしてください。
個人情報の取り扱いについて
皆さまが送付された個人情報はアットホーム(株)のサーバを経由し、お問い合わせ先の不動産会社にメールまたはFAXにて転送されるためアットホーム(株)にも保管されます。アットホーム(株)で保管された個人情報の取り扱いについては、【こちら】をご覧ください。
また、本画面でご記入いただいた個人情報は、お問い合わせ先の不動産会社でも保管します。 お問い合わせ先の不動産会社が保管する個人情報の取り扱いについては、不動産会社に直接お問い合わせください。
東京都知事免許(6)第78514号 |
|---|
- 交通:
- 都営浅草線/大門駅 徒歩1分
- 東京都港区浜松町1丁目27-9 トラスト浜松町ビル
- TEL:
- 03-5777-0468
- FAX:
- 03-5777-0467
- 所属団体:
- (公社)東京都宅地建物取引業協会会員(公財)日本賃貸住宅管理協会会員(公社)首都圏不動産公正取引協議会加盟
取引態様:貸主  - 00353160
|
- スマートフォンで
この不動産会社を見る

|
- 提携サイト等より掲載されている物件情報につきましては、不動産会社詳細情報にリンクされていないものがあります。
- 物件に関するお問合せは、物件詳細ページの「情報提供会社」に表示されている不動産会社へ直接お願いいたします。
- 間取図は、現況を優先させていただきます。
- 映像は物件の一部を撮影したものです。物件の契約にあたっての最終判断はご自身の判断に基づいて行ってください。
- 仲介手数料について

アットホームは物件情報の適正化に努めております。
内容に誤りがある場合にはこちらへご連絡ください。