不動産 賃貸 マンション等の住宅情報:埼玉住まい情報


埼玉県新座市東1丁目(志木駅)の賃貸:物件詳細

  • 物件詳細
  • 情報の見方
  • 印刷用画面
交通
所在地
駅徒歩 賃料
管理費等
敷金/保証金
礼金
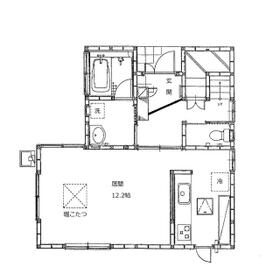
間取り
面積
物件種目
築年月

東武東上線/志木

埼玉県新座市東1丁目

18分

13万円

1ヶ月 / なし

1ヶ月

2LDK

87.77m²

賃貸一戸建て

1997年5月(築28年6ヶ月)

おすすめPOINTペット相談、全室2面採光、2面採光

おすすめコメント

広々延床面積87.77㎡の居室空間!

間取図

間取図

1階部分

間取図

間取図

2階部分

<
その他の画像
  • 外観
  • リビング
  • リビング
  • キッチン
  • キッチン
  • トイレ
  • バス/シャワー
  • 洗面
  • 室内
  • 室内
  • 室内
  • 室内
  • 収納
>
    • とりあえず保存
    • お問い合わせ
    交通

    東武東上線 志木駅 徒歩18分

    その他の交通

    JR武蔵野線 新座駅 徒歩20分

    所在地 埼玉県新座市東1丁目
    物件種目 賃貸一戸建て
    賃料 13万円 管理費等
    敷金 / 保証金 1ヶ月 / なし 礼金 1ヶ月
    敷引 保証金償却
    その他一時金 鍵交換代等:20,000円~ 保険等 要 2年 24,000円 宅建ファミリー共済
    維持費等
    間取り 2LDK(和 6 洋 11 LDK 12.5) 専有面積 87.77m²
    築年月 1997年5月(築28年6ヶ月) 階建 / 階 2階建
    建物構造 木造 総戸数
    主要採光面 南西 駐車場 有 無料
    バイク置き場 駐輪場
    建物名・部屋番号   ペット 小型犬可・ 敷金2ヶ月(1ヶ月は償却)
    アピールポイント 見えない場所に収納スペースを確保できるグルニエ付、更に配膳がラクなカウンターキッチン仕様なので、カフェテイストを加えるアイディアも広がります。また広々とした延床面積87.77㎡の居室空間で、その上夕食を作りながら翌日のお弁当も作れるコンロ3口以上の仕様なので、進行ペースがスピードアップ。ちなみに良好な日当たりが嬉しい全室2面採光の居室空間です。自然に団らんが生まれる2LDK。ご案内いたしますのでお気軽にご連絡ください。
    リフォーム履歴
    リノベーション履歴
    備考
    賃貸保証等:加入要(全保連にご加入いただきます 初回60,000円(賃料の50%)翌年以降、毎年13,000円 賃料口座引落サービス加入要(引落手数料330円借主負担となります))
    管理形態/管理員の勤務形態:-/-
    エネルギー消費性能
    断熱性能
    目安光熱費
    バス・トイレ バス・トイレ別、追焚機能、洗面所独立、洗面所、温水洗浄便座、トイレ2ヶ所
    キッチン カウンターキッチン、システムキッチン、3口以上コンロ、ガスコンロ付
    セキュリティー
    収納 全居室収納、ウォークインクローゼット、収納スペース、クローゼット、シューズボックス、グルニエ
    設備・サービス 全居室エアコン、エアコン2台以上、給湯、フローリング、エアコン、照明器具
    TV・通信
    その他 バルコニー
    契約期間 2年 現況 空家
    条件等 入居可能時期 即時
    仲介手数料 0.5ヶ月    
    更新料 新賃料 1ヶ月 物件番号 6973073385
    情報公開日 2025年3月31日 次回更新予定日 2025年10月24日
    ケータイ用バーコード

    QRコード

    スマートフォンでこの物件を見る
    スマートフォンからもこの物件をご覧になれます。
    ※「-」と表示されている項目については、情報提供会社にご確認ください。

    この物件の周辺情報

    周辺施設 ワタナベストアー新座店
    距離 339m
    周辺施設 生鮮館世界市
    距離 342m
    周辺施設 いなげや新座東店
    距離 415m
    周辺施設 ユニクロ新座店
    距離 496m
    周辺施設 私立立教大学新座キャンパス
    距離 533m
    周辺施設 私立立教新座中学校
    距離 460m
    周辺施設 新座市立第二中学校
    距離 703m
    周辺施設 新座市立東野小学校
    距離 433m

    クイックお問い合わせ

    ここから簡単にお問い合わせをすることができます。
    (SSLでの暗号化での送信を希望されるお客さまは こちら よりお問い合わせください)

    お問い合わせ内容(必須)
    お名前(必須) 姓  名 
    メールアドレス(必須)
    ※携帯電話のメールアドレスをご入力される方はこちらをご確認ください
    電話番号(必須)
    - -

    ※入力いただいた電話番号へSMSまたは音声でパスワードをご連絡します。

    携帯電話の番号をご入力の方へ

    携帯電話の番号をご入力の方へ
    確認画面にて送信ボタンをクリックするとSMSが携帯電話に届きます。
    そのSMSに記載のパスワード(認証番号)を入力し、お問い合わせを完了してください。
    尚、SMSの送信者番号は 0005 202 760 となります。
    これはアットホームの固定番号です。

    備考欄 希望条件、物件案内希望日、質問などがございましたらご記入ください。
    お問い合わせを行う前に「個人情報の取り扱いについて」を必ずお読みください。
    「個人情報の取り扱いについて」に同意いただいた場合は「上記にご同意の上 確認画面へ進む」のボタンをクリックしてください。

    個人情報の取り扱いについて

    皆さまが送付された個人情報はアットホーム(株)のサーバを経由し、お問い合わせ先の不動産会社にメールまたはFAXにて転送されるためアットホーム(株)にも保管されます。アットホーム(株)で保管された個人情報の取り扱いについては、【こちら】をご覧ください。
    また、本画面でご記入いただいた個人情報は、お問い合わせ先の不動産会社でも保管します。 お問い合わせ先の不動産会社が保管する個人情報の取り扱いについては、不動産会社に直接お問い合わせください。

    情報提供会社

    情報提供会社

    (有)エフ・ケイ・インターナショナル

    東京都知事免許(6)第78818号

    交通:
    JR山手線/目白駅 徒歩5分
    東京都豊島区西池袋2丁目1-14 
    TEL:
    03-5953-6660
    FAX:
    03-5953-6333
    所属団体:
    (公社)東京都宅地建物取引業協会会員
    (公社)首都圏不動産公正取引協議会加盟

    取引態様:仲介

    • 会社情報
    • 00996168
    スマートフォンで
    この不動産会社を見る
    QRコード
    • とりあえず保存
    • お問い合わせ
    • 提携サイト等より掲載されている物件情報につきましては、不動産会社詳細情報にリンクされていないものがあります。
    • 物件に関するお問合せは、物件詳細ページの「情報提供会社」に表示されている不動産会社へ直接お願いいたします。
    • 間取図は、現況を優先させていただきます。
    • 映像は物件の一部を撮影したものです。物件の契約にあたっての最終判断はご自身の判断に基づいて行ってください。
    • 仲介手数料について仲介手数料

    アットホームは物件情報の適正化に努めております。 内容に誤りがある場合にはこちらへご連絡ください。

    【埼玉住まい情報】では、日本全国の物件から賃貸マンションや賃貸アパート・賃貸一戸建て等の賃貸住宅情報、新築マンション・分譲マンションや中古マンション等の売買マンション情報、新築一戸建てや中古一戸建てなどの戸建住宅、 土地など、総合的な不動産住宅情報検索サービスを提供致します。
    【埼玉住まい情報】から、選りすぐりの不動産物件を探してみましょう。

    【免責事項】
    このコーナーの運営はアットホーム株式会社(https://www.athome.co.jp/)が行っています。
    このコーナーに掲載している物件情報は、「アットホーム不動産情報ネットワーク」に加盟する不動産会社等(情報提供元)から提供されています。信頼性の高い情報提供が行えるよう、最大限の努力をしておりますが、その内容を保証するものではありません。 利用者のみなさまと各情報提供元との取引に起因する損害および情報が掲載されたことに起因する損害等については、株式会社イーシティ埼玉、およびアットホームは一切責任を負いません。
    各物件情報の内容や画像等はすべて現況を優先させていただきます。
    お取引等(お取引の準備、資金調達等を含みます)の際には、内容や契約条件等について、各情報提供元より十分な説明を受け、ご自身でご確認の上、判断してください。
    このコーナーへの物件情報のご掲載、その他不動産業務ソリューション等についての不動産会社様のお問合せはこちらからお願いいたします。

    物件画像: