静岡県静岡市駿河区中田1丁目(静岡駅)の賃貸:物件詳細
交通 所在地 |
駅徒歩 |
賃料 管理費等 |
敷金/保証金 礼金 |
間取り 面積 |
物件種目 築年月 |
|
東海道新幹線/静岡
静岡県静岡市駿河区中田1丁目
|
9分
|
13.8万円
5,000円
|
1ヶ月 / なし
1ヶ月
|
2SLDK
66.04m²
|
賃貸マンション
1999年1月(築27年2ヶ月)
|
南向き、24時間セキュリティー、外観タイル張り
|
|
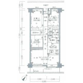
間取図
|
|
<
その他の画像
>
|
| 交通 | 東海道新幹線 静岡駅 徒歩9分 |
| 所在地 |
静岡県静岡市駿河区中田1丁目
|
| 物件種目 |
賃貸マンション |
| 賃料 |
13.8万円 |
管理費等 |
5,000円 |
| 敷金 / 保証金 |
1ヶ月 / なし |
礼金 |
1ヶ月 |
| 敷引 |
- |
保証金償却 |
- |
| その他一時金 |
- |
保険等 |
要 |
| 維持費等 |
- |
| 間取り |
2SLDK(和 4.8 洋 6 LDK 11.5 S 4.2) |
専有面積 |
66.04m² |
| 築年月 |
1999年1月(築27年2ヶ月)
|
階建 / 階 |
地上11階地下1階建 / 2階 |
| 建物構造 |
RC |
総戸数 |
93戸 |
| 主要採光面 |
南 |
駐車場 |
有 6,000円/月 |
| バイク置き場 |
無 |
駐輪場 |
有 200円/年 |
| 建物名・部屋番号 |
ウィステリア中田 |
ペット |
-
|
| アピールポイント |
分譲賃貸 浴室TV IHコンロ 食器洗浄乾燥機 リフォーム済 |
| リフォーム履歴 |
■内装:2019年3月 内装全面(床・壁・天井・建具) 分譲賃貸 浴室TV IHコンロ 食器洗浄乾燥機 リフォーム済 ※実施年月は最も古い履歴を表示 |
| リノベーション履歴 |
- |
| 備考 |
賃貸保証等:加入要(家賃保証会社初回保証料/賃料50%)
管理形態/管理員の勤務形態:-/-
非喫煙者限定
|
| エネルギー消費性能 |
- |
| 断熱性能 |
- |
| 目安光熱費 |
- |
| バス・トイレ |
TV付浴室、オートバス、追焚機能、シャワー付洗面化粧台、洗面所独立、シャワー、温水洗浄便座、トイレ |
| キッチン |
オープンキッチン、食器洗浄乾燥機、IHクッキングヒーター、3口以上コンロ |
| セキュリティー |
モニター付オートロック、オートロック、モニター付インターホン、ディンプルキー |
| 収納 |
全居室収納、収納スペース、クローゼット、シューズボックス |
| 設備・サービス |
エアコン2台以上、室内洗濯機置場、洗濯機置場、都市ガス給湯、エアコン、人感センサー付照明、照明器具 |
| TV・通信 |
- |
| その他 |
宅配BOX、エレベーター2基以上、来客用駐車場、バルコニー、駐輪場、エレベーター |
| 契約期間 |
2年 |
現況 |
空家 |
| 条件等 |
- |
入居可能時期 |
即時 |
| 更新料 |
なし |
物件番号 |
6974627203 |
| 情報公開日 |
2025年2月25日 |
次回更新予定日 |
2026年2月12日 |
| ケータイ用バーコード |
- スマートフォンでこの物件を見る
- スマートフォンからもこの物件をご覧になれます。
|
※「-」と表示されている項目については、情報提供会社にご確認ください。
| 周辺施設 |
セブンイレブン静岡八幡3丁目店 |
| 距離 |
395m |
ここから簡単にお問い合わせをすることができます。
(SSLでの暗号化での送信を希望されるお客さまは
こちら
よりお問い合わせください)
お問い合わせを行う前に
「個人情報の取り扱いについて」を必ずお読みください。
「個人情報の取り扱いについて」に同意いただいた場合は「上記にご同意の上 確認画面へ進む」のボタンをクリックしてください。
個人情報の取り扱いについて
皆さまが送付された個人情報はアットホーム(株)のサーバを経由し、お問い合わせ先の不動産会社にメールまたはFAXにて転送されるためアットホーム(株)にも保管されます。アットホーム(株)で保管された個人情報の取り扱いについては、【こちら】をご覧ください。
また、本画面でご記入いただいた個人情報は、お問い合わせ先の不動産会社でも保管します。 お問い合わせ先の不動産会社が保管する個人情報の取り扱いについては、不動産会社に直接お問い合わせください。
静岡県知事免許(2)第14186号 |
|---|
- 交通:
- 東海道新幹線/静岡駅 徒歩5分
- 静岡県静岡市駿河区森下町1-21
- TEL:
- 054-281-2103
- FAX:
- 054-281-2105
- 所属団体:
- (公社)全日本不動産協会会員東海不動産公正取引協議会加盟
取引態様:貸主  - 40407885
|
- スマートフォンで
この不動産会社を見る

|
- 提携サイト等より掲載されている物件情報につきましては、不動産会社詳細情報にリンクされていないものがあります。
- 物件に関するお問合せは、物件詳細ページの「情報提供会社」に表示されている不動産会社へ直接お願いいたします。
- 間取図は、現況を優先させていただきます。
- 映像は物件の一部を撮影したものです。物件の契約にあたっての最終判断はご自身の判断に基づいて行ってください。
- 仲介手数料について

アットホームは物件情報の適正化に努めております。
内容に誤りがある場合にはこちらへご連絡ください。