東京都台東区東上野5丁目(上野駅)の賃貸:物件詳細
交通 所在地 |
駅徒歩 |
賃料 管理費等 |
敷金/保証金 礼金 |
間取り 面積 |
物件種目 築年月 |
|
JR山手線/上野
東京都台東区東上野5丁目
|
5分
|
23.1万円
24,000円
|
1ヶ月 / なし
1ヶ月
|
2LDK
55.58m²
|
賃貸マンション
2021年10月(築4年3ヶ月)
|
分譲タイプ、常時ゴミ出し可能、角部屋、高齢者相談、二人入居可、24時間セキュリティー、2面採光
|
|
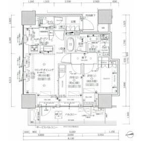
間取図
ファミリータイプの2LDK。お問合せは(株)メイワ・エステートまで。
|
外観
ひと際目立つ立派なマンションです。お問合せは(株)メイワ・エステートまで。
|
<
その他の画像
>
|
|
|
| 交通 | JR山手線 上野駅 徒歩5分 |
|---|
| その他の交通 | 東京メトロ銀座線 稲荷町駅 徒歩3分 東京メトロ日比谷線 上野駅 徒歩5分 |
| 所在地 |
東京都台東区東上野5丁目
|
| 物件種目 |
賃貸マンション |
| 賃料 |
23.1万円 |
管理費等 |
24,000円 |
| 敷金 / 保証金 |
1ヶ月 / なし |
礼金 |
1ヶ月 |
| 敷引 |
- |
保証金償却 |
- |
| その他一時金 |
室内クリーニング費用(契約時支払い):88,000円 |
保険等 |
要 2年 25,000円 火災保険 |
| 維持費等 |
- |
クレジットカード決済 |
初期費用可 |
| 間取り |
2LDK(洋 5.5・4.3 LDK 10.1) |
専有面積 |
55.58m² |
| 築年月 |
2021年10月(築4年3ヶ月)
|
階建 / 階 |
19階建 / 11階 |
| 建物構造 |
RC |
総戸数 |
98戸 |
| 主要採光面 |
南西 |
駐車場 |
有 36,500円/月 |
| バイク置き場 |
有 2,000円/月 |
駐輪場 |
有 1,000円/月 |
| 建物名・部屋番号 |
Brillia上野Garden |
ペット |
-
|
| リフォーム履歴 |
- |
| リノベーション履歴 |
- |
| 備考 |
賃貸保証等:加入要(保証会社:フォーシーズ。初回保証委託料:賃料+管理費の50%、更新料:1万円/年。)
管理形態/管理員の勤務形態:-/-
非喫煙者限定
※解約予告2カ月前
※喫煙者不可
※契約更新事務手数料0.5ヶ月
※退去時の室内クリーニング費用88,000円は契約時にお支払いいただきます
※インターネット使用料無料
※駐輪場1台可(1,000円/月)
※設備としてのエアコンは1台
※バイク置き場は建物管理会社へ要空き確認
※駐車場・バイク置場は管理会社へ空確認をお願いします
※民泊・レンタルルーム不可
|
| エネルギー消費性能 |
- |
| 断熱性能 |
- |
| 目安光熱費 |
- |
| バス・トイレ |
バス・トイレ別、浴室暖房、浴室乾燥機、オートバス、追焚機能、シャワー付洗面化粧台、洗面所独立、シャワー、温水洗浄便座、タンクレストイレ、トイレ |
| キッチン |
カウンターキッチン、システムキッチン、食器洗浄乾燥機、浄水器、3口以上コンロ、ガスコンロ付 |
| セキュリティー |
モニター付オートロック、オートロック、モニター付インターホン、ダブルロックドア、防犯カメラ、火災警報器(報知機) |
| 収納 |
全居室収納、収納スペース、クローゼット、シューズボックス |
| 設備・サービス |
床暖房、室内洗濯機置場、都市ガス給湯、給湯、全居室フローリング、フローリング、都市ガス、エアコン、人感センサー付照明、フットライト、ダウンライト |
| TV・通信 |
インターネット対応、インターネット使用料無料、光ファイバー、ケーブルTV、CS、BS端子 |
| その他 |
宅配BOX、バイク置き場、エレベーター2基以上、バルコニー、駐輪場、エレベーター |
| 契約期間 |
2年 |
現況 |
空家 |
| 条件等 |
- |
入居可能時期 |
相談 |
| 更新料 |
新賃料 1ヶ月 |
物件番号 |
6974805325 |
| 情報公開日 |
2025年9月24日 |
次回更新予定日 |
2025年12月18日 |
| ケータイ用バーコード |
- スマートフォンでこの物件を見る
- スマートフォンからもこの物件をご覧になれます。
|
※「-」と表示されている項目については、情報提供会社にご確認ください。
| 周辺施設 |
マルエツ東上野店 |
| 距離 |
176m |
写真を見る |
| 周辺施設 |
ユニクロエキュート上野店 |
| 距離 |
432m |
写真を見る |
| 周辺施設 |
ナチュラルローソン東上野五丁目店 |
| 距離 |
98m |
写真を見る |
| 周辺施設 |
ファミリーマート東上野五丁目店 |
| 距離 |
163m |
写真を見る |
| 周辺施設 |
セブンイレブン台東区役所前店 |
| 距離 |
206m |
写真を見る |
| 周辺施設 |
台東区立上野小学校 |
| 距離 |
319m |
写真を見る |
ここから簡単にお問い合わせをすることができます。
(SSLでの暗号化での送信を希望されるお客さまは
こちら
よりお問い合わせください)
お問い合わせを行う前に
「個人情報の取り扱いについて」を必ずお読みください。
「個人情報の取り扱いについて」に同意いただいた場合は「上記にご同意の上 確認画面へ進む」のボタンをクリックしてください。
個人情報の取り扱いについて
皆さまが送付された個人情報はアットホーム(株)のサーバを経由し、お問い合わせ先の不動産会社にメールまたはFAXにて転送されるためアットホーム(株)にも保管されます。アットホーム(株)で保管された個人情報の取り扱いについては、【こちら】をご覧ください。
また、本画面でご記入いただいた個人情報は、お問い合わせ先の不動産会社でも保管します。 お問い合わせ先の不動産会社が保管する個人情報の取り扱いについては、不動産会社に直接お問い合わせください。
東京都知事免許(2)第99056号 |
|---|
- 交通:
- 東京メトロ銀座線/稲荷町駅 徒歩3分
- 東京都台東区東上野5丁目5-9 岡部ビル102号
- TEL:
- 03-5830-3434
- FAX:
- 03-5830-3533
- 所属団体:
- (公社)全日本不動産協会会員(公社)首都圏不動産公正取引協議会加盟
取引態様:仲介  - 00260832
|
- スマートフォンで
この不動産会社を見る

|
- 提携サイト等より掲載されている物件情報につきましては、不動産会社詳細情報にリンクされていないものがあります。
- 物件に関するお問合せは、物件詳細ページの「情報提供会社」に表示されている不動産会社へ直接お願いいたします。
- 間取図は、現況を優先させていただきます。
- 映像は物件の一部を撮影したものです。物件の契約にあたっての最終判断はご自身の判断に基づいて行ってください。
- 仲介手数料について

アットホームは物件情報の適正化に努めております。
内容に誤りがある場合にはこちらへご連絡ください。