鹿児島県薩摩川内市永利町(川内駅)の賃貸:物件詳細
交通 所在地 |
駅徒歩 |
賃料 管理費等 |
敷金/保証金 礼金 |
間取り 面積 |
物件種目 築年月 |
|
九州新幹線/川内
鹿児島県薩摩川内市永利町
|
32分
|
5.5万円
2,000円
|
なし / なし
なし
|
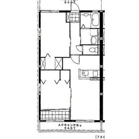
2LDK
54.51m²
|
賃貸アパート
2009年8月(築16年10ヶ月)
|
駐車場2台分、角部屋、南向き、事務所使用可、閑静な住宅街
|
|
間取図
|
|
<
その他の画像
>
|
| 交通 | 九州新幹線 川内駅 徒歩32分 |
| 所在地 |
鹿児島県薩摩川内市永利町
|
| 物件種目 |
賃貸アパート |
| 賃料 |
5.5万円 |
管理費等 |
2,000円 |
| 敷金 / 保証金 |
なし / なし |
礼金 |
なし |
| 敷引 |
- |
保証金償却 |
- |
| その他一時金 |
退去時清掃代:55,000円 |
保険等 |
要 1年 7,000円 |
| 維持費等 |
- |
| 間取り |
2LDK(洋 6・6 LDK 10) |
専有面積 |
54.51m² |
| 築年月 |
2009年8月(築16年10ヶ月)
|
階建 / 階 |
2階建 / 1階 |
| 建物構造 |
軽量鉄骨造 |
総戸数 |
4戸 |
| 主要採光面 |
南 |
駐車場 |
有 3,000円/月 |
| バイク置き場 |
- |
駐輪場 |
有 無料 |
| 建物名・部屋番号 |
フローラA 101 |
ペット |
-
|
| アピールポイント |
スーパーが徒歩圏にあり、利便性の良い立地です。 |
| リフォーム履歴 |
- |
| リノベーション履歴 |
- |
| 備考 |
賃貸保証等:加入要(アルファー:初回賃料総額の100%又は初回30%1年更新10,000円)
管理形態/管理員の勤務形態:-/-
インターネット無料物件です。
タイヨー永利店の近隣。セキスイハイムの戸建並み設備。
|
| エネルギー消費性能 |
- |
| 断熱性能 |
- |
| 目安光熱費 |
- |
| バス・トイレ |
バス・トイレ別、追焚機能、シャワー付洗面化粧台、洗面所独立、洗面所、シャワー、温水洗浄便座 |
| キッチン |
カウンターキッチン、IHクッキングヒーター |
| セキュリティー |
モニター付インターホン |
| 収納 |
ウォークインクローゼット、シューズボックス |
| 設備・サービス |
室内洗濯機置場、洗濯機置場、プロパンガス給湯、給湯、全居室フローリング、室内物干し、エアコン、複層ガラス |
| TV・通信 |
インターネット使用料無料、光ファイバー、BS端子 |
| その他 |
庭、バルコニー、駐輪場 |
| 契約期間 |
1年 |
現況 |
空家 |
| 条件等 |
- |
入居可能時期 |
即時 |
| 更新料 |
なし |
物件番号 |
6974840118 |
| 情報公開日 |
2025年10月18日 |
次回更新予定日 |
2026年5月23日 |
| ケータイ用バーコード |
- スマートフォンでこの物件を見る
- スマートフォンからもこの物件をご覧になれます。
|
※「-」と表示されている項目については、情報提供会社にご確認ください。
| 周辺施設 |
ローソン川内空港バイパス店 |
| 距離 |
645m |
| 周辺施設 |
ケンタッキーフライドチキン川内店 |
| 距離 |
286m |
| 周辺施設 |
ソフトバンク川内空港バイパス |
| 距離 |
347m |
| 周辺施設 |
薩摩川内市立平佐西小学校 |
| 距離 |
2175m |
ここから簡単にお問い合わせをすることができます。
(SSLでの暗号化での送信を希望されるお客さまは
こちら
よりお問い合わせください)
お問い合わせを行う前に
「個人情報の取り扱いについて」を必ずお読みください。
「個人情報の取り扱いについて」に同意いただいた場合は「上記にご同意の上 確認画面へ進む」のボタンをクリックしてください。
個人情報の取り扱いについて
皆さまが送付された個人情報はアットホーム(株)のサーバを経由し、お問い合わせ先の不動産会社にメールまたはFAXにて転送されるためアットホーム(株)にも保管されます。アットホーム(株)で保管された個人情報の取り扱いについては、【こちら】をご覧ください。
また、本画面でご記入いただいた個人情報は、お問い合わせ先の不動産会社でも保管します。 お問い合わせ先の不動産会社が保管する個人情報の取り扱いについては、不動産会社に直接お問い合わせください。
鹿児島県知事免許(10)第2928号 |
|---|
- 交通:
- JR鹿児島本線/川内駅 【バス】10分 大小路 停歩3分
- 鹿児島県薩摩川内市大小路町26-8 アートビル1F
- TEL:
- 0996-25-4860
- FAX:
- 0996-22-5827
- 所属団体:
- (公社)全日本不動産協会会員(一社)九州不動産公正取引協議会加盟
取引態様:仲介  - 80500656
|
- スマートフォンで
この不動産会社を見る

|
- 提携サイト等より掲載されている物件情報につきましては、不動産会社詳細情報にリンクされていないものがあります。
- 物件に関するお問合せは、物件詳細ページの「情報提供会社」に表示されている不動産会社へ直接お願いいたします。
- 間取図は、現況を優先させていただきます。
- 映像は物件の一部を撮影したものです。物件の契約にあたっての最終判断はご自身の判断に基づいて行ってください。
- 仲介手数料について

アットホームは物件情報の適正化に努めております。
内容に誤りがある場合にはこちらへご連絡ください。