長崎県佐世保市湊町(佐世保中央駅)の賃貸:物件詳細
交通 所在地 |
駅徒歩 |
賃料 管理費等 |
敷金/保証金 礼金 |
間取り 面積 |
物件種目 築年月 |
|
松浦鉄道西九州線/佐世保中央
長崎県佐世保市湊町
|
6分
|
4.2万円
3,000円
|
なし / なし
1ヶ月
|
ワンルーム
23.12m²
|
賃貸マンション
1991年3月(築34年8ヶ月)
|
オール電化
|
|
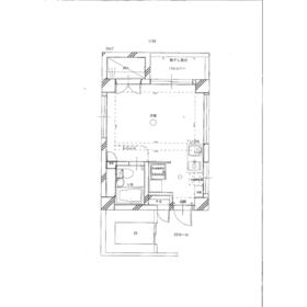
間取図
|
外観
|
その他の画像
|
| 交通 | 松浦鉄道西九州線 佐世保中央駅 徒歩6分 |
| 所在地 |
長崎県佐世保市湊町
|
| 物件種目 |
賃貸マンション |
| 賃料 |
4.2万円 |
管理費等 |
3,000円 |
| 敷金 / 保証金 |
なし / なし |
礼金 |
1ヶ月 |
| 敷引 |
- |
保証金償却 |
- |
| その他一時金 |
なし、鍵交換代等:13,200円~ |
保険等 |
要 2年 19,000円 火災 |
| 維持費等 |
- |
| 間取り |
ワンルーム(洋 8) |
専有面積 |
23.12m² |
| 築年月 |
1991年3月(築34年8ヶ月)
|
階建 / 階 |
8階建 / 3階 |
| 建物構造 |
鉄骨造 |
総戸数 |
- |
| 主要採光面 |
|
駐車場 |
無 |
| バイク置き場 |
無 |
駐輪場 |
無 |
| 建物名・部屋番号 |
ベイヒルズ湊 302 |
ペット |
-
|
| リフォーム履歴 |
- |
| リノベーション履歴 |
- |
| 備考 |
賃貸保証等:加入要(初回のみ家賃の80%)
管理形態/管理員の勤務形態:-/-
CATVは地デジのみプランが賃料に含まれます。
|
| エネルギー消費性能 |
- |
| 断熱性能 |
- |
| 目安光熱費 |
- |
| バス・トイレ |
洗面台、バス・トイレ同室 |
| キッチン |
電気コンロ |
| セキュリティー |
- |
| 収納 |
収納スペース |
| 設備・サービス |
室内洗濯機置場、エアコン |
| TV・通信 |
ケーブルTV |
| その他 |
バルコニー、エレベーター |
| 契約期間 |
2年 |
現況 |
空家 |
| 条件等 |
- |
入居可能時期 |
相談 |
| 更新料 |
なし |
物件番号 |
6975080005 |
| 情報公開日 |
2025年4月18日 |
次回更新予定日 |
2025年10月31日 |
| ケータイ用バーコード |
- スマートフォンでこの物件を見る
- スマートフォンからもこの物件をご覧になれます。
|
※「-」と表示されている項目については、情報提供会社にご確認ください。
| 周辺施設 |
デイリーヤマザキ佐世保栄町店 |
| 距離 |
181m |
| 周辺施設 |
スターバックスコーヒー佐世保四ヶ町店 |
| 距離 |
252m |
| 周辺施設 |
地方独立行政法人佐世保市総合医療センター |
| 距離 |
531m |
ここから簡単にお問い合わせをすることができます。
(SSLでの暗号化での送信を希望されるお客さまは
こちら
よりお問い合わせください)
お問い合わせを行う前に
「個人情報の取り扱いについて」を必ずお読みください。
「個人情報の取り扱いについて」に同意いただいた場合は「上記にご同意の上 確認画面へ進む」のボタンをクリックしてください。
個人情報の取り扱いについて
皆さまが送付された個人情報はアットホーム(株)のサーバを経由し、お問い合わせ先の不動産会社にメールまたはFAXにて転送されるためアットホーム(株)にも保管されます。アットホーム(株)で保管された個人情報の取り扱いについては、【こちら】をご覧ください。
また、本画面でご記入いただいた個人情報は、お問い合わせ先の不動産会社でも保管します。 お問い合わせ先の不動産会社が保管する個人情報の取り扱いについては、不動産会社に直接お問い合わせください。
長崎県知事免許(1)第4173号 |
|---|
- 交通:
- 松浦鉄道西九州線/佐世保中央駅 徒歩4分 【バス】 島瀬町 停歩1分
- 長崎県佐世保市島瀬町4-20
- TEL:
- 0956-22-2122
- FAX:
- 0956-22-2124
- 所属団体:
- (公社)長崎県宅地建物取引業協会会員(一社)九州不動産公正取引協議会加盟
取引態様:仲介  - 80505902
|
- スマートフォンで
この不動産会社を見る

|
- 提携サイト等より掲載されている物件情報につきましては、不動産会社詳細情報にリンクされていないものがあります。
- 物件に関するお問合せは、物件詳細ページの「情報提供会社」に表示されている不動産会社へ直接お願いいたします。
- 間取図は、現況を優先させていただきます。
- 映像は物件の一部を撮影したものです。物件の契約にあたっての最終判断はご自身の判断に基づいて行ってください。
- 仲介手数料について

アットホームは物件情報の適正化に努めております。
内容に誤りがある場合にはこちらへご連絡ください。