千葉県木更津市太田2丁目(木更津駅)の賃貸:物件詳細
交通 所在地 |
駅徒歩 |
賃料 管理費等 |
敷金/保証金 礼金 |
間取り 面積 |
物件種目 築年月 |
|
JR内房線/木更津
千葉県木更津市太田2丁目
|
24分
|
4.3万円
なし
|
なし / なし
なし
|
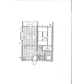
2DK
34.65m²
|
賃貸アパート
1994年6月(築31年7ヶ月)
|
角部屋、最上階、南向き、高齢者相談、2面採光
|
|
間取図
|
外観
|
<
その他の画像
>
|
| 交通 | JR内房線 木更津駅 徒歩24分 |
|---|
| その他の交通 | JR久留里線 祇園駅 徒歩23分 |
| 所在地 |
千葉県木更津市太田2丁目
|
| 物件種目 |
賃貸アパート |
| 賃料 |
4.3万円 |
管理費等 |
なし |
| 敷金 / 保証金 |
なし / なし |
礼金 |
なし |
| 敷引 |
- |
保証金償却 |
- |
| その他一時金 |
住まいレスキュー24(2年間):13,200円、クリーニング費用(ご入居時):59,400円 |
保険等 |
要 2年 16,600円 |
| 維持費等 |
- |
| 間取り |
2DK(和 6 洋 6 DK 4.5) |
専有面積 |
34.65m² |
| 築年月 |
1994年6月(築31年7ヶ月)
|
階建 / 階 |
2階建 / 2階 |
| 建物構造 |
木造 |
総戸数 |
- |
| 主要採光面 |
南 |
駐車場 |
有 無料 |
| バイク置き場 |
無 |
駐輪場 |
無 |
| 建物名・部屋番号 |
ハイツラン 201 |
ペット |
-
|
| アピールポイント |
☆敷金、礼金0円(法人契約または契約内容によっては対象外となる場合があります。)
ツタヤ・スシロー・コンビニ徒歩圏
2DKで43,000円! 駐車場1台無料 木更津駅徒歩24分 エアコン 洗面所 室内洗濯機置場
☆2年間の定期借家契約☆
再契約手数料2万円(税別)、家財保険料・住まいレスキュー24別途かかります。 |
| リフォーム履歴 |
- |
| リノベーション履歴 |
- |
| 備考 |
賃貸保証等:加入要(初回21500円、月額430円(集送金手数料330円))
管理形態/管理員の勤務形態:-/-
区画整理地内
☆敷金、礼金0円(法人契約または契約内容によっては対象外となる場合があります。)
ツタヤ・スシロー・コンビニ徒歩圏
2DKで43,000円! 駐車場1台無料 木更津駅徒歩24分 エアコン 洗面所 室内洗濯機置場
☆2年間の定期借家契約☆
再契約手数料2万円(税別)、家財保険料・住まいレスキュー24別途かかります。
|
| エネルギー消費性能 |
- |
| 断熱性能 |
- |
| 目安光熱費 |
- |
| バス・トイレ |
バス・トイレ別、洗面台、シャワー、トイレ |
| キッチン |
ガスコンロ可 |
| セキュリティー |
- |
| 収納 |
収納スペース |
| 設備・サービス |
室内洗濯機置場、プロパンガス給湯、給湯、出窓、フローリング、プロパンガス、エアコン |
| TV・通信 |
ケーブルTV |
| その他 |
バルコニー |
| 契約期間 |
2年 |
現況 |
空家 |
| 条件等 |
定期借家 |
入居可能時期 |
相談 |
| 更新料 |
- |
物件番号 |
6975256779 |
| 情報公開日 |
2025年10月17日 |
次回更新予定日 |
2025年12月18日 |
| ケータイ用バーコード |
- スマートフォンでこの物件を見る
- スマートフォンからもこの物件をご覧になれます。
|
※「-」と表示されている項目については、情報提供会社にご確認ください。
| 周辺施設 |
VERY FOODS尾張屋木更津店 |
| 距離 |
762m |
| 周辺施設 |
セブンイレブン木更津3丁目店 |
| 距離 |
807m |
ここから簡単にお問い合わせをすることができます。
(SSLでの暗号化での送信を希望されるお客さまは
こちら
よりお問い合わせください)
お問い合わせを行う前に
「個人情報の取り扱いについて」を必ずお読みください。
「個人情報の取り扱いについて」に同意いただいた場合は「上記にご同意の上 確認画面へ進む」のボタンをクリックしてください。
個人情報の取り扱いについて
皆さまが送付された個人情報はアットホーム(株)のサーバを経由し、お問い合わせ先の不動産会社にメールまたはFAXにて転送されるためアットホーム(株)にも保管されます。アットホーム(株)で保管された個人情報の取り扱いについては、【こちら】をご覧ください。
また、本画面でご記入いただいた個人情報は、お問い合わせ先の不動産会社でも保管します。 お問い合わせ先の不動産会社が保管する個人情報の取り扱いについては、不動産会社に直接お問い合わせください。
千葉県知事免許(12)第6099号 |
|---|
- 交通:
- JR内房線/木更津駅 徒歩25分
- 千葉県木更津市東太田1丁目1-25
- TEL:
- 0438-98-4311
- FAX:
- 0438-98-9509
- 所属団体:
- (一社)千葉県宅地建物取引業協会会員(公社)首都圏不動産公正取引協議会加盟
取引態様:仲介  - 00261465
|
- スマートフォンで
この不動産会社を見る

|
- 提携サイト等より掲載されている物件情報につきましては、不動産会社詳細情報にリンクされていないものがあります。
- 物件に関するお問合せは、物件詳細ページの「情報提供会社」に表示されている不動産会社へ直接お願いいたします。
- 間取図は、現況を優先させていただきます。
- 映像は物件の一部を撮影したものです。物件の契約にあたっての最終判断はご自身の判断に基づいて行ってください。
- 仲介手数料について

アットホームは物件情報の適正化に努めております。
内容に誤りがある場合にはこちらへご連絡ください。