神奈川県茅ヶ崎市東海岸北3丁目(茅ケ崎駅)の賃貸:物件詳細
交通 所在地 |
駅徒歩 |
賃料 管理費等 |
敷金/保証金 礼金 |
間取り 面積 |
物件種目 築年月 |
|
JR東海道本線/茅ケ崎
神奈川県茅ヶ崎市東海岸北3丁目
|
8分
|
15万円
なし
|
2ヶ月 / なし
1ヶ月
|
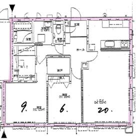
2SLDK
91.00m²
|
賃貸マンション
2010年1月(築16年5ヶ月)
|
角部屋、南向き、二人入居可、2面採光、24時間換気システム、バリアフリー、閑静な住宅街
|
|
間取図
|
|
<
その他の画像
>
|
| 交通 | JR東海道本線 茅ケ崎駅 徒歩8分 |
| 所在地 |
神奈川県茅ヶ崎市東海岸北3丁目
|
| 物件種目 |
賃貸マンション |
| 賃料 |
15万円 |
管理費等 |
なし |
| 敷金 / 保証金 |
2ヶ月 / なし |
礼金 |
1ヶ月 |
| 敷引 |
- |
保証金償却 |
- |
| その他一時金 |
なし |
保険等 |
要 2年 20,000円 火災保険 |
| 維持費等 |
- |
| 間取り |
2SLDK(洋 6・9 LDK 20) |
専有面積 |
91.00m² |
| 築年月 |
2010年1月(築16年5ヶ月)
|
階建 / 階 |
3階建 / 1階 |
| 建物構造 |
鉄骨造 |
総戸数 |
- |
| 主要採光面 |
南 |
駐車場 |
無 |
| バイク置き場 |
有 無料 |
駐輪場 |
有 無料 |
| 建物名・部屋番号 |
カリエンテ東海岸 101 |
ペット |
-
|
| リフォーム履歴 |
- |
| リノベーション履歴 |
- |
| 備考 |
管理形態/管理員の勤務形態:-/-
非喫煙者限定
【茅ヶ崎市東海岸北3-9-22 カリエンテ東海岸】重量鉄骨MS・駅8分・収納スペース豊富
積水ハウス施工・WIC・玄関収納・フレッツ光・外シャワー・屋根付き駐輪場・ディンプルキー
|
| エネルギー消費性能 |
- |
| 断熱性能 |
- |
| 目安光熱費 |
- |
| バス・トイレ |
バス・トイレ別、浴室乾燥機、追焚機能、シャワー付洗面化粧台、洗面所独立、シャワー、温水洗浄便座 |
| キッチン |
システムキッチン、食器洗浄乾燥機、3口以上コンロ |
| セキュリティー |
モニター付インターホン、ディンプルキー、ダブルロックドア、電動シャッター、シャッター雨戸、火災警報器(報知機) |
| 収納 |
ウォークインクローゼット、収納スペース、シューズボックス |
| 設備・サービス |
エアコン2台以上、床暖房、室内洗濯機置場、給湯、全居室フローリング、フローリング、都市ガス、エアコン、複層ガラス |
| TV・通信 |
光ファイバー、BS端子 |
| その他 |
バイク置き場、バルコニー、駐輪場 |
| 契約期間 |
1年 |
現況 |
空家 |
| 条件等 |
- |
入居可能時期 |
即時 |
| 更新料 |
なし |
物件番号 |
6976187257 |
| 情報公開日 |
2026年3月14日 |
次回更新予定日 |
2026年5月15日 |
| ケータイ用バーコード |
- スマートフォンでこの物件を見る
- スマートフォンからもこの物件をご覧になれます。
|
※「-」と表示されている項目については、情報提供会社にご確認ください。
ここから簡単にお問い合わせをすることができます。
(SSLでの暗号化での送信を希望されるお客さまは
こちら
よりお問い合わせください)
お問い合わせを行う前に
「個人情報の取り扱いについて」を必ずお読みください。
「個人情報の取り扱いについて」に同意いただいた場合は「上記にご同意の上 確認画面へ進む」のボタンをクリックしてください。
個人情報の取り扱いについて
皆さまが送付された個人情報はアットホーム(株)のサーバを経由し、お問い合わせ先の不動産会社にメールまたはFAXにて転送されるためアットホーム(株)にも保管されます。アットホーム(株)で保管された個人情報の取り扱いについては、【こちら】をご覧ください。
また、本画面でご記入いただいた個人情報は、お問い合わせ先の不動産会社でも保管します。 お問い合わせ先の不動産会社が保管する個人情報の取り扱いについては、不動産会社に直接お問い合わせください。
神奈川県知事免許(6)第22579号 |
|---|
- 交通:
- JR東海道本線/茅ケ崎駅 徒歩7分
- 神奈川県茅ヶ崎市東海岸北3丁目9-22 カリエンテ東海岸102号
- TEL:
- 0467-57-2505
- FAX:
- 0467-57-2506
- 所属団体:
- (公社)神奈川県宅地建物取引業協会会員(公社)首都圏不動産公正取引協議会加盟
取引態様:仲介  - 00352974
|
- スマートフォンで
この不動産会社を見る

|
- 提携サイト等より掲載されている物件情報につきましては、不動産会社詳細情報にリンクされていないものがあります。
- 物件に関するお問合せは、物件詳細ページの「情報提供会社」に表示されている不動産会社へ直接お願いいたします。
- 間取図は、現況を優先させていただきます。
- 映像は物件の一部を撮影したものです。物件の契約にあたっての最終判断はご自身の判断に基づいて行ってください。
- 仲介手数料について

アットホームは物件情報の適正化に努めております。
内容に誤りがある場合にはこちらへご連絡ください。