岩手県一関市赤荻字荻野(一ノ関駅)の賃貸:物件詳細
交通 所在地 |
駅徒歩 |
賃料 管理費等 |
敷金/保証金 礼金 |
間取り 面積 |
物件種目 築年月 |
東北新幹線/一ノ関
岩手県一関市赤荻字荻野
|
4500m
|
8.4万円
3,000円
|
1ヶ月 / なし
なし
|
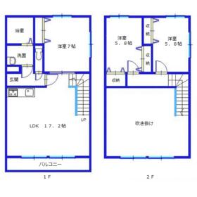
3LDK
79.78m²
|
賃貸マンション
2006年3月(築19年8ヶ月)
|
ペット相談、最上階、二人入居可、メゾネット
|
間取図
|
外観
|
<
その他の画像
>
|
交通 | 東北新幹線 一ノ関駅 徒歩4500m |
所在地 |
岩手県一関市赤荻字荻野
|
物件種目 |
賃貸マンション |
賃料 |
8.4万円 |
管理費等 |
3,000円 |
敷金 / 保証金 |
1ヶ月 / なし |
礼金 |
なし |
敷引 |
- |
保証金償却 |
- |
その他一時金 |
- |
保険等 |
要 2年 16,000円 SBI日本少額短期 |
維持費等 |
町内会費:450円/月 |
間取り |
3LDK(洋 7・5.8・5.8) |
専有面積 |
79.78m² |
築年月 |
2006年3月(築19年8ヶ月)
|
階建 / 階 |
4階建 / メゾネット3階~4階部分 |
建物構造 |
RC |
総戸数 |
8戸 |
主要採光面 |
|
駐車場 |
有 無料 |
バイク置き場 |
- |
駐輪場 |
有 無料 |
建物名・部屋番号 |
205 |
ペット |
小型犬可・ 猫可 |
アピールポイント |
☆駐車場2台可能
☆ペット飼育可能
☆全室フローリング!!
・ゆったり一人暮らしから、3人くらいのファミリーまで。リモートワーク需要が増えている昨今、ご夫婦ともに自宅での作業という方も多いので、ゆったりとしたリビングと二部屋という間取りも重宝されそうです!
【初期費用例 205号室】
初回賃料 84,000円
共益費 3,000円
敷金 84,000円
町内会費 450円
仲介手数料92,400円
賃貸保証料70,224円(保証料一括払プラン)
火災保険 16,000円(2年プラン)
--------------------------------------------
合計 350,074円~
(入居日、保証プランによって金額変動があります)
弊社日曜日定休日となっておりますが、土曜祝日は営業しております!!
当社スタッフが親身にお部屋探しをサポートします!お気軽にお問い合わせください☆ |
リフォーム履歴 |
- |
リノベーション履歴 |
- |
備考 |
賃貸保証等:加入要(アーク賃貸保証利用 初回保証委託料:賃料等合計額の80%)
管理形態/管理員の勤務形態:-/-
非喫煙者限定
駐車場1台無料!二台目3,300円(消費税10%込)
契約更新時 更新事務手数料16,500円
火災保険 2年16,000円~(参考)
|
エネルギー消費性能 |
- |
断熱性能 |
- |
目安光熱費 |
- |
バス・トイレ |
バス・トイレ別、追焚機能、洗面所、シャワー、トイレ |
キッチン |
ガスコンロ付 |
セキュリティー |
モニター付インターホン、カードキー |
収納 |
全居室収納、収納スペース、クローゼット、シューズボックス |
設備・サービス |
室内洗濯機置場、給湯、全居室フローリング、フローリング、エアコン、暖房、冷房、照明器具 |
TV・通信 |
- |
その他 |
バルコニー、駐輪場 |
契約期間 |
2年 |
現況 |
空家 |
条件等 |
- |
入居可能時期 |
相談 |
仲介手数料 |
1.1ヶ月 |
|
|
更新料 |
- |
物件番号 |
6976431789 |
情報公開日 |
2024年9月10日 |
次回更新予定日 |
2025年10月28日 |
ケータイ用バーコード |
- スマートフォンでこの物件を見る
- スマートフォンからもこの物件をご覧になれます。
|
※「-」と表示されている項目については、情報提供会社にご確認ください。
周辺施設 |
イオン一関店 |
距離 |
2518m |
写真を見る |
周辺施設 |
ファミリーマート一関赤荻店 |
距離 |
777m |
写真を見る |
周辺施設 |
岩手県立一関第二高校 |
距離 |
1609m |
写真を見る |
周辺施設 |
一関市立赤荻小学校 |
距離 |
783m |
写真を見る |
周辺施設 |
認定こども園赤荻保育園 |
距離 |
777m |
写真を見る |
周辺施設 |
独立行政法人国立病院機構岩手病院 |
距離 |
2786m |
写真を見る |
周辺施設 |
岩手県立一関清明支援学校 |
距離 |
178m |
写真を見る |
ここから簡単にお問い合わせをすることができます。
(SSLでの暗号化での送信を希望されるお客さまは
こちら
よりお問い合わせください)
お問い合わせを行う前に
「個人情報の取り扱いについて」を必ずお読みください。
「個人情報の取り扱いについて」に同意いただいた場合は「上記にご同意の上 確認画面へ進む」のボタンをクリックしてください。
個人情報の取り扱いについて
皆さまが送付された個人情報はアットホーム(株)のサーバを経由し、お問い合わせ先の不動産会社にメールまたはFAXにて転送されるためアットホーム(株)にも保管されます。アットホーム(株)で保管された個人情報の取り扱いについては、【こちら】をご覧ください。
また、本画面でご記入いただいた個人情報は、お問い合わせ先の不動産会社でも保管します。 お問い合わせ先の不動産会社が保管する個人情報の取り扱いについては、不動産会社に直接お問い合わせください。
岩手県知事免許(7)第1862号 |
---|
- 交通:
- 東北新幹線/一ノ関駅 徒歩13分
- 岩手県一関市地主町7番8-1号
- TEL:
- 0191-48-5173
- FAX:
- 0191-48-5172
- 所属団体:
- (一社)岩手県宅地建物取引業協会会員東北地区不動産公正取引協議会加盟
取引態様:仲介  - 20002667
|
- スマートフォンで
この不動産会社を見る

|
- 提携サイト等より掲載されている物件情報につきましては、不動産会社詳細情報にリンクされていないものがあります。
- 物件に関するお問合せは、物件詳細ページの「情報提供会社」に表示されている不動産会社へ直接お願いいたします。
- 間取図は、現況を優先させていただきます。
- 映像は物件の一部を撮影したものです。物件の契約にあたっての最終判断はご自身の判断に基づいて行ってください。
- 仲介手数料について

アットホームは物件情報の適正化に努めております。
内容に誤りがある場合にはこちらへご連絡ください。