東京都世田谷区砧8丁目(祖師ヶ谷大蔵駅)の賃貸:物件詳細
交通 所在地 |
駅徒歩 |
賃料 管理費等 |
敷金/保証金 礼金 |
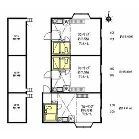
間取り 面積 |
物件種目 築年月 |
|
小田急小田原線/祖師ヶ谷大蔵
東京都世田谷区砧8丁目
|
6分
|
5.1万円
1,000円
|
1ヶ月 / なし
1ヶ月
|
ワンルーム
14.41m²
|
賃貸アパート
1991年4月(築34年9ヶ月)
|
角部屋、2面採光
|
|
間取図
|
外観
|
<
その他の画像
>
|
| 交通 | 小田急小田原線 祖師ヶ谷大蔵駅 徒歩6分 |
|---|
| その他の交通 | 小田急小田原線 成城学園前駅 徒歩12分 |
| 所在地 |
東京都世田谷区砧8丁目
|
| 物件種目 |
賃貸アパート |
| 賃料 |
5.1万円 |
管理費等 |
1,000円 |
| 敷金 / 保証金 |
1ヶ月 / なし |
礼金 |
1ヶ月 |
| 敷引 |
- |
保証金償却 |
- |
| その他一時金 |
なし |
保険等 |
要 2年 15,000円 |
| 維持費等 |
- |
| 間取り |
ワンルーム |
専有面積 |
14.41m² |
| 築年月 |
1991年4月(築34年9ヶ月)
|
階建 / 階 |
2階建 / 2階 |
| 建物構造 |
木造 |
総戸数 |
6戸 |
| 主要採光面 |
東 |
駐車場 |
無 |
| バイク置き場 |
無 |
駐輪場 |
無 |
| 建物名・部屋番号 |
|
ペット |
-
|
| アピールポイント |
インターネットwi-fi付120M無料(JCOM) |
| リフォーム履歴 |
■内装:2022年9月 床(フローリング等)、壁・天井(クロス・塗装等) 新規リフォームフロア貼り・壁クロス一部貼替・玄関土間クッションフロア貼り・シューズボックス新規設置・ハウスクリーニング等々 ※実施年月は最も古い履歴を表示 |
| リノベーション履歴 |
- |
| 備考 |
管理形態/管理員の勤務形態:-/-
|
| エネルギー消費性能 |
- |
| 断熱性能 |
- |
| 目安光熱費 |
- |
| バス・トイレ |
バス・トイレ同室 |
| キッチン |
ガスコンロ可 |
| セキュリティー |
- |
| 収納 |
シューズボックス |
| 設備・サービス |
室内洗濯機置場、冷蔵庫、エアコン、照明器具 |
| TV・通信 |
インターネット使用料無料、CATVインターネット、ケーブルTV |
| その他 |
- |
| 契約期間 |
3年 |
現況 |
空家 |
| 条件等 |
定期借家 |
入居可能時期 |
即時 |
| 更新料 |
なし |
物件番号 |
6977159283 |
| 情報公開日 |
2025年10月18日 |
次回更新予定日 |
2025年12月27日 |
| ケータイ用バーコード |
- スマートフォンでこの物件を見る
- スマートフォンからもこの物件をご覧になれます。
|
※「-」と表示されている項目については、情報提供会社にご確認ください。
| 周辺施設 |
スーパーオオゼキ砧店 |
| 距離 |
250m |
写真を見る |
| 周辺施設 |
まいばすけっと砧6丁目店 |
| 距離 |
280m |
写真を見る |
| 周辺施設 |
ローソン世田谷砧五丁目店 |
| 距離 |
300m |
写真を見る |
| 周辺施設 |
私立日本大学商学部 |
| 距離 |
300m |
写真を見る |
ここから簡単にお問い合わせをすることができます。
(SSLでの暗号化での送信を希望されるお客さまは
こちら
よりお問い合わせください)
お問い合わせを行う前に
「個人情報の取り扱いについて」を必ずお読みください。
「個人情報の取り扱いについて」に同意いただいた場合は「上記にご同意の上 確認画面へ進む」のボタンをクリックしてください。
個人情報の取り扱いについて
皆さまが送付された個人情報はアットホーム(株)のサーバを経由し、お問い合わせ先の不動産会社にメールまたはFAXにて転送されるためアットホーム(株)にも保管されます。アットホーム(株)で保管された個人情報の取り扱いについては、【こちら】をご覧ください。
また、本画面でご記入いただいた個人情報は、お問い合わせ先の不動産会社でも保管します。 お問い合わせ先の不動産会社が保管する個人情報の取り扱いについては、不動産会社に直接お問い合わせください。
東京都知事免許(4)第89793号 |
|---|
- 交通:
- 小田急小田原線/祖師ヶ谷大蔵駅 徒歩2分
- 東京都世田谷区砧8丁目8-23
- TEL:
- 03-3417-0031
- FAX:
- 03-3417-0032
- 所属団体:
- (公社)全日本不動産協会会員(公社)首都圏不動産公正取引協議会加盟
取引態様:仲介  - 00100158
|
- スマートフォンで
この不動産会社を見る

|
- 提携サイト等より掲載されている物件情報につきましては、不動産会社詳細情報にリンクされていないものがあります。
- 物件に関するお問合せは、物件詳細ページの「情報提供会社」に表示されている不動産会社へ直接お願いいたします。
- 間取図は、現況を優先させていただきます。
- 映像は物件の一部を撮影したものです。物件の契約にあたっての最終判断はご自身の判断に基づいて行ってください。
- 仲介手数料について

アットホームは物件情報の適正化に努めております。
内容に誤りがある場合にはこちらへご連絡ください。