佐賀県佐賀市水ヶ江4丁目(佐賀駅)の賃貸:物件詳細
交通 所在地 |
駅徒歩 |
賃料 管理費等 |
敷金/保証金 礼金 |
間取り 面積 |
物件種目 築年月 |
|
JR長崎本線/佐賀 [バス利用可] バス 9分 横小路 停歩1分
佐賀県佐賀市水ヶ江4丁目
|
36分
|
13.5万円
8,000円
|
1ヶ月 / なし
2ヶ月
|
4LDK
84.59m²
|
賃貸マンション
2006年1月(築20年5ヶ月)
|
分譲タイプ、角部屋、最上階、南向き
|
|
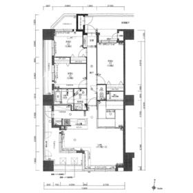
間取図
4LDK、84.59㎡
|
リビング
リビング①
|
<
その他の画像
>
|
| 交通 | JR長崎本線 佐賀駅 徒歩36分 [バス利用可] バス 9分 横小路 停歩1分 |
| 所在地 |
佐賀県佐賀市水ヶ江4丁目
|
| 物件種目 |
賃貸マンション |
| 賃料 |
13.5万円 |
管理費等 |
8,000円 |
| 敷金 / 保証金 |
1ヶ月 / なし |
礼金 |
2ヶ月 |
| 敷引 |
- |
保証金償却 |
- |
| その他一時金 |
クリーニング特約:110,000円 |
保険等 |
要 |
| 維持費等 |
- |
| 間取り |
4LDK(和 4.5 洋 7・5・5 LDK 17.7) |
専有面積 |
84.59m² |
| 築年月 |
2006年1月(築20年5ヶ月)
|
階建 / 階 |
15階建 / 15階 |
| 建物構造 |
RC |
総戸数 |
41戸 |
| 主要採光面 |
南 |
駐車場 |
有 12,000円/月 |
| バイク置き場 |
- |
駐輪場 |
- |
| 建物名・部屋番号 |
エイルマンション城内の杜 |
ペット |
-
|
| アピールポイント |
分譲マンション15階最上階角部屋。駐車場2台付。内覧可能日は4月中旬予定です。 |
| リフォーム履歴 |
- |
| リノベーション履歴 |
- |
| 備考 |
賃貸保証等:加入要(総額賃料の80%)
管理形態/管理員の勤務形態:-/日勤
バルコニー:21.54m²
管理人日勤
分譲マンション15階最上階角部屋。駐車場2台付。内覧可能日は4月中旬予定です。
|
| エネルギー消費性能 |
- |
| 断熱性能 |
- |
| 目安光熱費 |
- |
| バス・トイレ |
- |
| キッチン |
- |
| セキュリティー |
- |
| 収納 |
- |
| 設備・サービス |
- |
| TV・通信 |
- |
| その他 |
- |
| 契約期間 |
2年 |
現況 |
空家 |
| 条件等 |
- |
入居可能時期 |
2026年4月下旬予定 |
| 更新料 |
- |
物件番号 |
6977192741 |
| 情報公開日 |
2026年3月16日 |
次回更新予定日 |
2026年5月12日 |
| ケータイ用バーコード |
- スマートフォンでこの物件を見る
- スマートフォンからもこの物件をご覧になれます。
|
※「-」と表示されている項目については、情報提供会社にご確認ください。
ここから簡単にお問い合わせをすることができます。
(SSLでの暗号化での送信を希望されるお客さまは
こちら
よりお問い合わせください)
お問い合わせを行う前に
「個人情報の取り扱いについて」を必ずお読みください。
「個人情報の取り扱いについて」に同意いただいた場合は「上記にご同意の上 確認画面へ進む」のボタンをクリックしてください。
個人情報の取り扱いについて
皆さまが送付された個人情報はアットホーム(株)のサーバを経由し、お問い合わせ先の不動産会社にメールまたはFAXにて転送されるためアットホーム(株)にも保管されます。アットホーム(株)で保管された個人情報の取り扱いについては、【こちら】をご覧ください。
また、本画面でご記入いただいた個人情報は、お問い合わせ先の不動産会社でも保管します。 お問い合わせ先の不動産会社が保管する個人情報の取り扱いについては、不動産会社に直接お問い合わせください。
佐賀県知事免許(4)第2316号 |
|---|
- 交通:
- JR長崎本線/佐賀駅 徒歩22分
- 佐賀県佐賀市兵庫北2丁目31-43 アクアルーチェ1F
- TEL:
- 0952-36-9608
- FAX:
- 0952-31-2880
- 所属団体:
- (公社)全日本不動産協会会員(一社)九州不動産公正取引協議会加盟
取引態様:仲介  - 80500849
|
- スマートフォンで
この不動産会社を見る

|
- 提携サイト等より掲載されている物件情報につきましては、不動産会社詳細情報にリンクされていないものがあります。
- 物件に関するお問合せは、物件詳細ページの「情報提供会社」に表示されている不動産会社へ直接お願いいたします。
- 間取図は、現況を優先させていただきます。
- 映像は物件の一部を撮影したものです。物件の契約にあたっての最終判断はご自身の判断に基づいて行ってください。
- 仲介手数料について

アットホームは物件情報の適正化に努めております。
内容に誤りがある場合にはこちらへご連絡ください。