不動産 賃貸 マンション等の住宅情報:埼玉住まい情報


東京都港区赤坂9丁目(赤坂駅)の賃貸:物件詳細

  • 物件詳細
  • 情報の見方
  • 印刷用画面
交通
所在地
駅徒歩 賃料
管理費等
敷金/保証金
礼金
間取り
面積
物件種目
築年月

東京メトロ千代田線/赤坂

東京都港区赤坂9丁目

11分

24.8万円

20,000円

0.5ヶ月 / なし

1ヶ月

2DK

48.00m²

賃貸マンション

1972年11月(築53年2ヶ月)

おすすめPOINT最上階、事務所使用可、SOHO向き、管理人常駐

おすすめコメント

2016年建物外壁、共用部、居室内、リノベーション済み、アンティークなテイストに生まれ変わったフルリニューアル物件です。諸条件ご相談下さい。

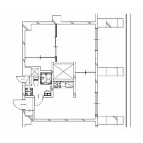
間取図

間取図

室内

室内

<
その他の画像
  • 室内
  • 室内
  • 室内
  • リビング
  • 洗面
  • トイレ
  • キッチン
  • バルコニー
  • 共有部分
  • 共有部分
  • 共有部分
  • 共有部分
  • 共有部分
  • エントランス
  • ショッピング施設
  • コンビニ
  • 飲食店
  • 飲食店
  • 販売店
  • 郵便局
  • 公園
>
    • とりあえず保存
    • お問い合わせ
    交通

    東京メトロ千代田線 赤坂駅 徒歩11分

    その他の交通

    東京メトロ日比谷線 六本木駅 徒歩11分

    都営大江戸線 六本木駅 徒歩9分

    所在地 東京都港区赤坂9丁目
    物件種目 賃貸マンション
    賃料 24.8万円 管理費等 20,000円
    敷金 / 保証金 0.5ヶ月 / なし 礼金 1ヶ月
    敷引 保証金償却
    その他一時金 セキュリティカード:5,000円 保険等 要 2年 20,000円
    維持費等 クレジットカード決済 初期費用可
    間取り 2DK 専有面積 48.00m²
    築年月 1972年11月(築53年2ヶ月) 階建 / 階 7階建 / 7階
    建物構造 SRC 総戸数
    主要採光面 駐車場 有 55,000円/月
    バイク置き場 駐輪場
    建物名・部屋番号 ninetytwo13 ペット
    アピールポイント 共用部には、キッチン付きのラウンジ、ミーティングルーム、スタジオがあります。アンティークなデザインのとてもおしゃれな物件です。SOHO・事務所・店舗利用等も可能ですので、諸条件含めてお気軽に弊社までご相談くださいませ。
    リフォーム履歴
    リノベーション履歴 2016年12月
    建物外壁、共用部、居室内、リノベーション済み
    ※実施年月は最も古い履歴を表示
    備考
    賃貸保証等:加入要(貸主指定)
    管理形態/管理員の勤務形態:-/常駐
    ※事業用でご利用の場合は、賃料管理費とは別に消費税がかかります。また、敷金2ヶ月となります。
    エネルギー消費性能
    断熱性能
    目安光熱費
    バス・トイレ バス・トイレ別、シャワールーム、シャワー、トイレ
    キッチン ガスコンロ付
    セキュリティー
    収納 収納スペース
    設備・サービス 室内洗濯機置場、洗濯機置場、全居室フローリング、フローリング、都市ガス
    TV・通信
    その他 フィットネス施設、バルコニー、駐輪場、エレベーター
    契約期間 2年 現況 空家
    条件等 定期借家定期借家 入居可能時期 即時
    更新料 物件番号 6977244971
    情報公開日 2025年11月4日 次回更新予定日 2025年12月27日
    ケータイ用バーコード

    QRコード

    スマートフォンでこの物件を見る
    スマートフォンからもこの物件をご覧になれます。
    ※「-」と表示されている項目については、情報提供会社にご確認ください。

    この物件の周辺情報

    周辺施設 東京ミッドタウン
    距離 379m
    周辺施設 ローソン港赤坂九丁目店
    距離 226m
    周辺施設 スターバックスコーヒー東京ミッドタウンコンプレックススタジオ店
    距離 451m
    周辺施設 サブウェイ乃木坂店
    距離 417m
    周辺施設 TSUTAYA TokyoMidtown
    距離 492m
    周辺施設 東京ミッドタウン郵便局
    距離 302m
    周辺施設 ミッドタウンガーデン
    距離 165m
    周辺施設 栄光パーキング赤坂6丁目
    距離 289m

    クイックお問い合わせ

    ここから簡単にお問い合わせをすることができます。
    (SSLでの暗号化での送信を希望されるお客さまは こちら よりお問い合わせください)

    お問い合わせ内容(必須)
    お名前(必須) 姓  名 
    メールアドレス(必須)
    ※携帯電話のメールアドレスをご入力される方はこちらをご確認ください
    電話番号(必須)
    - -

    ※入力いただいた電話番号へSMSまたは音声でパスワードをご連絡します。

    携帯電話の番号をご入力の方へ

    携帯電話の番号をご入力の方へ
    確認画面にて送信ボタンをクリックするとSMSが携帯電話に届きます。
    そのSMSに記載のパスワード(認証番号)を入力し、お問い合わせを完了してください。
    尚、SMSの送信者番号は 0005 202 760 となります。
    これはアットホームの固定番号です。

    備考欄 希望条件、物件案内希望日、質問などがございましたらご記入ください。
    お問い合わせを行う前に「個人情報の取り扱いについて」を必ずお読みください。
    「個人情報の取り扱いについて」に同意いただいた場合は「上記にご同意の上 確認画面へ進む」のボタンをクリックしてください。

    個人情報の取り扱いについて

    皆さまが送付された個人情報はアットホーム(株)のサーバを経由し、お問い合わせ先の不動産会社にメールまたはFAXにて転送されるためアットホーム(株)にも保管されます。アットホーム(株)で保管された個人情報の取り扱いについては、【こちら】をご覧ください。
    また、本画面でご記入いただいた個人情報は、お問い合わせ先の不動産会社でも保管します。 お問い合わせ先の不動産会社が保管する個人情報の取り扱いについては、不動産会社に直接お問い合わせください。

    情報提供会社

    情報提供会社

    (株)CLS

    東京都知事免許(3)第95311号

    交通:
    東京メトロ日比谷線/六本木駅 徒歩7分
    東京都港区西麻布3丁目24-4 
    TEL:
    03-3408-5328
    FAX:
    03-5771-5328
    所属団体:
    (公社)全日本不動産協会会員
    (公社)首都圏不動産公正取引協議会加盟

    取引態様:仲介

    • 会社情報
    • 00108862
    スマートフォンで
    この不動産会社を見る
    QRコード
    • とりあえず保存
    • お問い合わせ
    • 提携サイト等より掲載されている物件情報につきましては、不動産会社詳細情報にリンクされていないものがあります。
    • 物件に関するお問合せは、物件詳細ページの「情報提供会社」に表示されている不動産会社へ直接お願いいたします。
    • 間取図は、現況を優先させていただきます。
    • 映像は物件の一部を撮影したものです。物件の契約にあたっての最終判断はご自身の判断に基づいて行ってください。
    • 仲介手数料について仲介手数料

    アットホームは物件情報の適正化に努めております。 内容に誤りがある場合にはこちらへご連絡ください。

    【埼玉住まい情報】では、日本全国の物件から賃貸マンションや賃貸アパート・賃貸一戸建て等の賃貸住宅情報、新築マンション・分譲マンションや中古マンション等の売買マンション情報、新築一戸建てや中古一戸建てなどの戸建住宅、 土地など、総合的な不動産住宅情報検索サービスを提供致します。
    【埼玉住まい情報】から、選りすぐりの不動産物件を探してみましょう。

    【免責事項】
    このコーナーの運営はアットホーム株式会社(https://www.athome.co.jp/)が行っています。
    このコーナーに掲載している物件情報は、「アットホーム不動産情報ネットワーク」に加盟する不動産会社等(情報提供元)から提供されています。信頼性の高い情報提供が行えるよう、最大限の努力をしておりますが、その内容を保証するものではありません。 利用者のみなさまと各情報提供元との取引に起因する損害および情報が掲載されたことに起因する損害等については、株式会社イーシティ埼玉、およびアットホームは一切責任を負いません。
    各物件情報の内容や画像等はすべて現況を優先させていただきます。
    お取引等(お取引の準備、資金調達等を含みます)の際には、内容や契約条件等について、各情報提供元より十分な説明を受け、ご自身でご確認の上、判断してください。
    このコーナーへの物件情報のご掲載、その他不動産業務ソリューション等についての不動産会社様のお問合せはこちらからお願いいたします。

    物件画像: