東京都台東区元浅草3丁目(新御徒町駅)の賃貸:物件詳細
交通 所在地 |
駅徒歩 |
賃料 管理費等 |
敷金/保証金 礼金 |
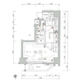
間取り 面積 |
物件種目 築年月 |
|
つくばエクスプレス/新御徒町
東京都台東区元浅草3丁目
|
7分
|
11万円
15,000円
|
なし / なし
1ヶ月
|
1K
26.45m²
|
賃貸マンション
2019年2月(築6年11ヶ月)
|
保証人不要
|
|
間取図
|
|
<
その他の画像
>
|
| 交通 | つくばエクスプレス 新御徒町駅 徒歩7分 |
|---|
| その他の交通 | 東京メトロ銀座線 稲荷町駅 徒歩6分 東京メトロ日比谷線 上野駅 徒歩11分 |
| 所在地 |
東京都台東区元浅草3丁目
|
| 物件種目 |
賃貸マンション |
| 賃料 |
11万円 |
管理費等 |
15,000円 |
| 敷金 / 保証金 |
なし / なし |
礼金 |
1ヶ月 |
| 敷引 |
- |
保証金償却 |
- |
| その他一時金 |
24時間サポート:16,500円、クリーニング費用(入居時預託):38,500円、エアコンクリーニング費用(入居時預託):14,300円、鍵交換代等:22,000円~ |
保険等 |
要 2年 17,000円 ホープ少額短期 |
| 維持費等 |
決済料:330円/月 |
クレジットカード決済 |
賃料可 |
| 間取り |
1K(洋 7.9) |
専有面積 |
26.45m² |
| 築年月 |
2019年2月(築6年11ヶ月)
|
階建 / 階 |
13階建 / 2階 |
| 建物構造 |
RC |
総戸数 |
24戸 |
| 主要採光面 |
北 |
駐車場 |
- |
| バイク置き場 |
- |
駐輪場 |
- |
| 建物名・部屋番号 |
GENOVIA新御徒町skygarden 201 |
ペット |
-
|
| リフォーム履歴 |
- |
| リノベーション履歴 |
- |
| 備考 |
賃貸保証等:加入要(いえらぶ 総賃料50%、毎年1万円)
管理形態/管理員の勤務形態:-/巡回
バルコニー:3.45m²
管理人巡回
更新事務手数料:11,000円、短期解約違約金あり(正式図面参照)
|
| エネルギー消費性能 |
- |
| 断熱性能 |
- |
| 目安光熱費 |
- |
| バス・トイレ |
バス・トイレ別、浴室乾燥機、洗面所独立、洗面所、洗面台、シャワー、温水洗浄便座、トイレ |
| キッチン |
2口コンロ、ガスコンロ付 |
| セキュリティー |
オートロック、ディンプルキー、ダブルロックドア |
| 収納 |
収納スペース、クローゼット、シューズボックス |
| 設備・サービス |
室内洗濯機置場、室内物干し、都市ガス、エアコン |
| TV・通信 |
ケーブルTV、CS、BS端子 |
| その他 |
バルコニー、エレベーター |
| 契約期間 |
2年 |
現況 |
空家 |
| 条件等 |
- |
入居可能時期 |
即時 |
| 更新料 |
新賃料 1ヶ月 |
物件番号 |
6977718411 |
| 情報公開日 |
2025年12月13日 |
次回更新予定日 |
2025年12月27日 |
| ケータイ用バーコード |
- スマートフォンでこの物件を見る
- スマートフォンからもこの物件をご覧になれます。
|
※「-」と表示されている項目については、情報提供会社にご確認ください。
| 周辺施設 |
ミニストップ元浅草3丁目店 |
| 距離 |
203m |
| 周辺施設 |
セブンイレブン台東松が谷1丁目店 |
| 距離 |
368m |
ここから簡単にお問い合わせをすることができます。
(SSLでの暗号化での送信を希望されるお客さまは
こちら
よりお問い合わせください)
お問い合わせを行う前に
「個人情報の取り扱いについて」を必ずお読みください。
「個人情報の取り扱いについて」に同意いただいた場合は「上記にご同意の上 確認画面へ進む」のボタンをクリックしてください。
個人情報の取り扱いについて
皆さまが送付された個人情報はアットホーム(株)のサーバを経由し、お問い合わせ先の不動産会社にメールまたはFAXにて転送されるためアットホーム(株)にも保管されます。アットホーム(株)で保管された個人情報の取り扱いについては、【こちら】をご覧ください。
また、本画面でご記入いただいた個人情報は、お問い合わせ先の不動産会社でも保管します。 お問い合わせ先の不動産会社が保管する個人情報の取り扱いについては、不動産会社に直接お問い合わせください。
nekofu中目黒 ミナシアプロジェクト(同)東京都知事免許(2)第101694号 |
|---|
- 交通:
- 東急東横線/中目黒駅 徒歩7分
- 東京都目黒区中目黒3丁目6-30 岡田ビル1階
- TEL:
- 03-6427-9123
- FAX:
- 03-6427-9323
- 所属団体:
- (公社)全日本不動産協会会員(公社)首都圏不動産公正取引協議会加盟
取引態様:代理 |
- 提携サイト等より掲載されている物件情報につきましては、不動産会社詳細情報にリンクされていないものがあります。
- 物件に関するお問合せは、物件詳細ページの「情報提供会社」に表示されている不動産会社へ直接お願いいたします。
- 間取図は、現況を優先させていただきます。
- 映像は物件の一部を撮影したものです。物件の契約にあたっての最終判断はご自身の判断に基づいて行ってください。
- 仲介手数料について

アットホームは物件情報の適正化に努めております。
内容に誤りがある場合にはこちらへご連絡ください。