東京都中野区江古田4丁目(沼袋駅)の賃貸:物件詳細
交通 所在地 |
駅徒歩 |
賃料 管理費等 |
敷金/保証金 礼金 |
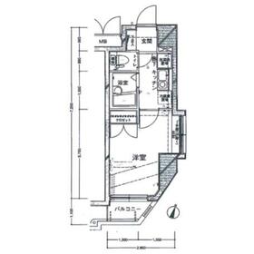
間取り 面積 |
物件種目 築年月 |
|
西武新宿線/沼袋
東京都中野区江古田4丁目
|
9分
|
7.4万円
8,000円
|
1ヶ月 / なし
1ヶ月
|
1K
19.94m²
|
賃貸マンション
2001年5月(築24年11ヶ月)
|
分譲タイプ、常時ゴミ出し可能、角部屋、南向き、2面採光
|
|
間取図
|
外観
|
<
その他の画像
>
|
| 交通 | 西武新宿線 沼袋駅 徒歩9分 |
|---|
| その他の交通 | 西武新宿線 野方駅 徒歩13分 都営大江戸線 新江古田駅 徒歩22分 |
| 所在地 |
東京都中野区江古田4丁目
|
| 物件種目 |
賃貸マンション |
| 賃料 |
7.4万円 |
管理費等 |
8,000円 |
| 敷金 / 保証金 |
1ヶ月 / なし |
礼金 |
1ヶ月 |
| 敷引 |
- |
保証金償却 |
- |
| その他一時金 |
退去時クリーニング費用 税別:40,000円、退去時エアコン内部洗浄費用 税別:12,000円、契約時24時間サポート費用(2年分)税別:18,000円、更新時事務手数料 税別:5,000円、鍵交換代等:22,000円~ |
保険等 |
要 2年 18,000円 AIG損保 |
| 維持費等 |
- |
| 間取り |
1K |
専有面積 |
19.94m² |
| 築年月 |
2001年5月(築24年11ヶ月)
|
階建 / 階 |
9階建 / 3階 |
| 建物構造 |
RC |
総戸数 |
- |
| 主要採光面 |
南 |
駐車場 |
- |
| バイク置き場 |
- |
駐輪場 |
有 無料 |
| 建物名・部屋番号 |
クレアシオン中野北 301 |
ペット |
-
|
| アピールポイント |
不審者の侵入に目を光らせる防犯カメラ完備、更に鍵面に掘られた微妙な凸凹で空き巣も困らせるディンプルキー仕様だから、ピッキングに手間どらせる点が防犯につながります。また出張時や旅行前でも収集日にしばられることがない常時ゴミ出し可の住戸で、その上システムキッチン採用なので、食事の準備も片付けもスムーズに取り組めます。ちなみに南向の住居です。単身のシンプルライフに最適の1K。是非その目でお確かめください。 |
| リフォーム履歴 |
- |
| リノベーション履歴 |
- |
| 備考 |
賃貸保証等:加入要(初回保証料:総賃料の50%~(エルズサポート、日本セーフティー)、更新保証料:10,000円/年、海外審査相談可)
管理形態/管理員の勤務形態:-/-
バルコニー:1.8m²
短期解約違約金有(1年未満の解約で賃料1ヶ月分)、解約予告1ヶ月前
|
| エネルギー消費性能 |
- |
| 断熱性能 |
- |
| 目安光熱費 |
- |
| バス・トイレ |
バス・トイレ別、洗面台、シャワー、温水洗浄便座、トイレ |
| キッチン |
システムキッチン、ガスコンロ付 |
| セキュリティー |
オートロック、ディンプルキー、防犯カメラ |
| 収納 |
収納スペース、クローゼット、シューズボックス |
| 設備・サービス |
室内洗濯機置場、フローリング、都市ガス、エアコン、照明器具 |
| TV・通信 |
インターネット対応、ケーブルTV |
| その他 |
バルコニー、駐輪場、エレベーター |
| 契約期間 |
2年 |
現況 |
居住中 |
| 条件等 |
- |
入居可能時期 |
2026年5月上旬予定 |
| 仲介手数料 |
不要 |
|
|
| 更新料 |
新賃料 1ヶ月 |
物件番号 |
6978251833 |
| 情報公開日 |
2026年3月12日 |
次回更新予定日 |
2026年3月26日 |
| ケータイ用バーコード |
- スマートフォンでこの物件を見る
- スマートフォンからもこの物件をご覧になれます。
|
※「-」と表示されている項目については、情報提供会社にご確認ください。
| 周辺施設 |
まいばすけっと沼袋駅北店 |
| 距離 |
610m |
| 周辺施設 |
ファミリーマート中野沼袋四丁目店 |
| 距離 |
379m |
| 周辺施設 |
ローソンストア100江古田店 |
| 距離 |
356m |
| 周辺施設 |
松のや沼袋店(マイカリー食堂併設) |
| 距離 |
632m |
| 周辺施設 |
ドトールコーヒーショップ沼袋店 |
| 距離 |
654m |
ここから簡単にお問い合わせをすることができます。
(SSLでの暗号化での送信を希望されるお客さまは
こちら
よりお問い合わせください)
お問い合わせを行う前に
「個人情報の取り扱いについて」を必ずお読みください。
「個人情報の取り扱いについて」に同意いただいた場合は「上記にご同意の上 確認画面へ進む」のボタンをクリックしてください。
個人情報の取り扱いについて
皆さまが送付された個人情報はアットホーム(株)のサーバを経由し、お問い合わせ先の不動産会社にメールまたはFAXにて転送されるためアットホーム(株)にも保管されます。アットホーム(株)で保管された個人情報の取り扱いについては、【こちら】をご覧ください。
また、本画面でご記入いただいた個人情報は、お問い合わせ先の不動産会社でも保管します。 お問い合わせ先の不動産会社が保管する個人情報の取り扱いについては、不動産会社に直接お問い合わせください。
東京都知事免許(4)第90999号 |
|---|
- 交通:
- JR中央線/四ツ谷駅 徒歩7分
- 東京都新宿区四谷2丁目11 アシストビル8F
- TEL:
- 03-5312-5401
- FAX:
- 03-5312-5402
- 所属団体:
- (公社)全日本不動産協会会員(公社)首都圏不動産公正取引協議会加盟
取引態様:貸主  - 00101812
|
- スマートフォンで
この不動産会社を見る

|
- 提携サイト等より掲載されている物件情報につきましては、不動産会社詳細情報にリンクされていないものがあります。
- 物件に関するお問合せは、物件詳細ページの「情報提供会社」に表示されている不動産会社へ直接お願いいたします。
- 間取図は、現況を優先させていただきます。
- 映像は物件の一部を撮影したものです。物件の契約にあたっての最終判断はご自身の判断に基づいて行ってください。
- 仲介手数料について

アットホームは物件情報の適正化に努めております。
内容に誤りがある場合にはこちらへご連絡ください。