東京都三鷹市大沢2丁目(武蔵境駅)の賃貸:物件詳細
交通 所在地 |
駅徒歩 |
賃料 管理費等 |
敷金/保証金 礼金 |
間取り 面積 |
物件種目 築年月 |
|
JR中央線/武蔵境 【バス】10分 大沢 停歩10分
東京都三鷹市大沢2丁目
|
-
|
7.5万円
なし
|
1ヶ月 / なし
1ヶ月
|
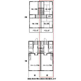
2DK
52.00m²
|
賃貸アパート
1986年3月(築39年10ヶ月)
|
角部屋、高齢者相談、ルームシェア可、二人入居可、メゾネット
|
|
間取図
|
外観
|
その他の画像
|
| 交通 | JR中央線 武蔵境駅 【バス】 10分 大沢 停歩10分 |
|---|
| その他の交通 | 西武多摩川線 多磨駅 徒歩25分 |
| 所在地 |
東京都三鷹市大沢2丁目
|
| 物件種目 |
賃貸アパート |
| 賃料 |
7.5万円 |
管理費等 |
なし |
| 敷金 / 保証金 |
1ヶ月 / なし |
礼金 |
1ヶ月 |
| 敷引 |
- |
保証金償却 |
- |
| その他一時金 |
- |
保険等 |
要 2年 宅建ファミリー共済 |
| 維持費等 |
- |
| 間取り |
2DK(和 6 DK 8) |
専有面積 |
52.00m² |
| 築年月 |
1986年3月(築39年10ヶ月)
|
階建 / 階 |
2階建 / メゾネット1階~2階部分 |
| 建物構造 |
木造 |
総戸数 |
2戸 |
| 主要採光面 |
|
駐車場 |
近有 12,000円/月 |
| バイク置き場 |
空無 |
駐輪場 |
- |
| 建物名・部屋番号 |
沢の台コーポ 1号 |
ペット |
-
|
| リフォーム履歴 |
- |
| リノベーション履歴 |
- |
| 備考 |
賃貸保証等:利用可(株式会社 プレミアライフ)
管理形態/管理員の勤務形態:-/-
非喫煙者限定
|
| エネルギー消費性能 |
- |
| 断熱性能 |
- |
| 目安光熱費 |
- |
| バス・トイレ |
バス・トイレ別、洗面台 |
| キッチン |
- |
| セキュリティー |
火災警報器(報知機) |
| 収納 |
- |
| 設備・サービス |
エアコン2台以上、室内洗濯機置場、プロパンガス |
| TV・通信 |
- |
| その他 |
バイク置き場 |
| 契約期間 |
2年 |
現況 |
空家 |
| 条件等 |
- |
入居可能時期 |
即時 |
| 更新料 |
新賃料 0.5ヶ月 |
物件番号 |
6978716843 |
| 情報公開日 |
2025年10月20日 |
次回更新予定日 |
2025年12月26日 |
| ケータイ用バーコード |
- スマートフォンでこの物件を見る
- スマートフォンからもこの物件をご覧になれます。
|
※「-」と表示されている項目については、情報提供会社にご確認ください。
| 周辺施設 |
ローソン三鷹野崎四丁目店 |
| 距離 |
473m |
| 周辺施設 |
ファミリーマート三鷹天文台通り店 |
| 距離 |
562m |
| 周辺施設 |
マクドナルド東八道路野崎店 |
| 距離 |
475m |
ここから簡単にお問い合わせをすることができます。
(SSLでの暗号化での送信を希望されるお客さまは
こちら
よりお問い合わせください)
お問い合わせを行う前に
「個人情報の取り扱いについて」を必ずお読みください。
「個人情報の取り扱いについて」に同意いただいた場合は「上記にご同意の上 確認画面へ進む」のボタンをクリックしてください。
個人情報の取り扱いについて
皆さまが送付された個人情報はアットホーム(株)のサーバを経由し、お問い合わせ先の不動産会社にメールまたはFAXにて転送されるためアットホーム(株)にも保管されます。アットホーム(株)で保管された個人情報の取り扱いについては、【こちら】をご覧ください。
また、本画面でご記入いただいた個人情報は、お問い合わせ先の不動産会社でも保管します。 お問い合わせ先の不動産会社が保管する個人情報の取り扱いについては、不動産会社に直接お問い合わせください。
東京都知事免許(17)第660号 |
|---|
- 交通:
- JR中央線/武蔵境駅 徒歩25分 【バス】8分 第2小学校前 停歩2分
- 東京都三鷹市野崎3丁目20-34 リーベスハイム101号
- TEL:
- 0422-32-1251
- FAX:
- 0422-32-1201
- 所属団体:
- (公社)東京都宅地建物取引業協会会員(公社)首都圏不動産公正取引協議会加盟
取引態様:仲介  - 00989570
|
- スマートフォンで
この不動産会社を見る

|
- 提携サイト等より掲載されている物件情報につきましては、不動産会社詳細情報にリンクされていないものがあります。
- 物件に関するお問合せは、物件詳細ページの「情報提供会社」に表示されている不動産会社へ直接お願いいたします。
- 間取図は、現況を優先させていただきます。
- 映像は物件の一部を撮影したものです。物件の契約にあたっての最終判断はご自身の判断に基づいて行ってください。
- 仲介手数料について

アットホームは物件情報の適正化に努めております。
内容に誤りがある場合にはこちらへご連絡ください。